2-Zimmer-Altbauwohnung in Feldkrich
Wohnung
- Dachgeschoß,
6800
Feldkirch
,
Ardetzenbergstraße 6a
Lage der Immobilie
Die wunderschöne Dachgeschoss-Wohnung befindet sich in ruhiger Lage in Feldkirch. In wenigen Gehminuten sind Sie in der Innenstadt von Feldkirch, mit all Ihren Vorteilen. Neben Einkaufs- und Freizeitmöglichkeiten, bietet diese absolute Toplage auch kurze Wege in die Natur. Anbindung an den öffentlichen Verkehr ist ebenso in wenigen Gehminuten erreichbar.Beschreibung der Immobilie
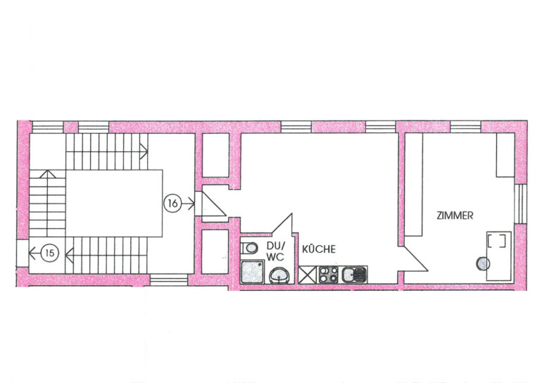
Die 2-Zimmer-Dachgeschosswohung bietet alles was zum wohlfühlen notwendig ist.
Infos im Überblick:
- Gepflegte 2-Zimmerwohnung – ideal für Singles & Paare
- 3. Obergeschoss – hell, ruhig & angenehm
- Bad mit Dusche und WC
- 1 praktisches Kellerabteil
Wichtige Hinweise:
- Kein Personenaufzug
- Kein KFZ-Abstellplatz
- → Dauerpark-Karte über das Bürgerservice Feldkirch erhältlich
- Kein Balkon oder Terrasse
- Zugang zum Haus über 2 Etagen (Außentreppen)
Diese Wohnung überzeugt durch Lage und einem attraktiven Preis-Leistungs-Verhältnis – perfekt für alle, die das Stadtleben lieben und dennoch Ruhe genießen möchten.
Unsere Angaben beziehen sich auf die Auskünfte des Eigentümers. Irrtum und Änderungen vorbehalten.
Noch nichts gefunden? Wir informieren Sie über geeignete Immobilienangebote noch vor allen anderen.
Legen Sie jetzt kostenlos Ihren individuellen Suchagenten unter folgendem Link an. Wir schicken Ihnen passende Immobilien exklusiv vorab zu.
Suchagent anlegen
Wir weisen darauf hin, dass zwischen dem Vermittler und dem zu vermittelnden Dritten ein familiäres oder wirtschaftliches Naheverhältnis besteht.
Der Immobilienmakler erklärt, dass er – entgegen dem in der Immobilienwirtschaft üblichen Geschäftsgebrauch des Doppelmaklers – einseitig nur für den Vermieter tätig ist.
Infrastruktur / Entfernungen
Gesundheit
Arzt <325m
Apotheke <250m
Krankenhaus <1.225m
Kinder & Schulen
Schule <250m
Kindergarten <450m
Höhere Schule <1.225m
Universität <500m
Nahversorgung
Supermarkt <200m
Bäckerei <300m
Einkaufszentrum <1.800m
Sonstige
Bank <150m
Geldautomat <150m
Post <325m
Polizei <400m
Verkehr
Bus <50m
Bahnhof <975m
Autobahnanschluss <1.975m
Angaben Entfernung Luftlinie / Quelle: OpenStreetMap
Eckdaten
| Objektnr: | 5681/606 |
| Art: | Wohnung - Dachgeschoß |
| Land: | Österreich |
| Baujahr: | 1903 |
| Zustand: | Teil_vollrenoviert |
| Alter: | Altbau |
| Gesamtmiete: | 827,96 € |
| Kaltmiete (netto): | 605,00 € |
| Kaltmiete: | 714,51 € |
| Provision: | Gemäß Erstauftraggeberprinzip bezahlt der Abgeber die Provision. |
| Betriebskosten: | 109,51 € |
| Heizkosten: | 35,00 € |
| MwSt Gesamt: | 78,45 € |
| Wohnfläche: | 46,00 m² |
| Zimmer: | 2 |
| Bäder: | 1 |
| WC: | 1 |
| Keller: | 3,00 m² |
| Heizwärmebedarf: | D 128,00 kWh/m²a |
| fGEE: | C 1,70 |
Ausstattung
Parkett, Gas, Zentralheizung, Wohnküche / offene Küche, Dusche, Kabel/Satelliten-TV
Internet und TV
Information zur Internet und TV Versorgung hier
Ihre persönliche Beratung
Mag. (FH) Ralph Gut
Rimo Immobilien GmbH
E info@rimo.at
H +43664 1438384
