Büro in der Pfarrgasse
Büro / Praxis
- Bürofläche,
4600
Wels
Lage der Immobilie
Zwischen Stadtplatz Wels und Ringstraße - sehr zentrale Lage Anmietung eines Tiefgaragenplatzes möglich!Beschreibung der Immobilie
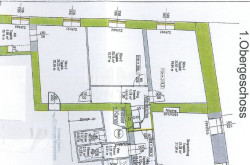
Dieses Büro befindet sich in zentraler Lage in Wels in der Pfarrgasse 15. Das Objekt liegt im 1. Obergeschoss und ist auch mittels Lift erreichbar.
Raumaufteilung: 3 Büros mit Abstellraum und Platz für kleine Teeküche. Die WC-Anlagen werden mit einem angrenzendem Büro gemeinsam genutzt.
Der Mietvertrag wird auf 5 Jahre befristet abgeschlossen.
** Servicepauschale Hausverwaltung € 285,00 (Übergabe Haustechnik, Ummeldungen Strom- und Heizungsverträge, KSV-Abfragen.
Der Vermittler ist als Doppelmakler tätig.
Infrastruktur / Entfernungen
Gesundheit
Arzt <500m
Apotheke <500m
Klinik <1.000m
Krankenhaus <2.000m
Kinder & Schulen
Schule <500m
Kindergarten <500m
Universität <500m
Nahversorgung
Supermarkt <500m
Bäckerei <500m
Einkaufszentrum <3.000m
Sonstige
Bank <500m
Geldautomat <500m
Post <500m
Polizei <500m
Verkehr
Bus <500m
Autobahnanschluss <3.000m
Bahnhof <1.000m
Flughafen <3.000m
Angaben Entfernung Luftlinie / Quelle: OpenStreetMap
Eckdaten
| Kaltmiete (netto): | 534,24 € |
| Fläche: | 89,04 m² |
| Zimmer: | 3 |
Basisdaten zur Immobilie
| Objektnr: | 1939/11742 |
| Art: | Büro / Praxis - Bürofläche |
| Land: | Österreich |
| Baujahr: | 1886 |
| Kaltmiete (netto): | 534,24 € |
| Kaltmiete: | 844,23 € |
| Miete / m²: | 6,96 € |
| Provision: | 1 Bruttomonatsmieten zzgl. 20% USt. |
| Betriebskosten: | 309,99 € |
| MwSt Gesamt: | 168,85 € |
| Gesamtfläche: | 89,04 m² |
| Bürofläche: | 89,04 m² |
| Zimmer: | 3 |
| WC: | 1 |
| Heizwärmebedarf: | C 72,50 kWh/m²a |
| fGEE: | D 1,78 |
Ausstattung
Zentralheizung, Personenaufzug
Internet und TV
Information zur Internet und TV Versorgung hier
Ihre persönliche Beratung
Anna Valentina Blecha
IMMOcontract Immobilien Vermittlung GmbH
A.Blecha@IMMOcontract.at
+43 676 841420465
