Büro und Wohnen kombiniert; Erstbezug, Schillgasse 16
Büro / Praxis
,
1210
Wien
Lage der Immobilie
Das Projekt, mit der Adresse Schillgasse 16-18, befindet sich in einer guten Lage. Für alle Naturliebhaber die gerne im Grünen sind, steht der Aupark Jedlesee, mit direktem Zugang zur Donau, in nur wenigen Minuten zu Fuß zur Verfügung. In unmittelbarer Nähe befinden sich diverse Einkaufsmöglichkeiten für den täglichen Bedarf, sowie diverse öffentliche Verkehrsmittel. Eltern mit Kindern können sich über die Nähe zum Kindergarten freuen, der lediglich 200 m entfernt ist. Auch Schulen befinden sich in einem Umkreis von ca. 1,5 km. Das Projekt bietet somit eine gute Infrastruktur für seine zukünftigen Bewohner.Beschreibung der Immobilie
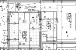
Wohnen & Büro kombiniert – 78 m²
Objektbeschreibung:
Diese helle und moderne 78 m² große Einheit bietet eine perfekte Kombination aus Wohn- und Bürofläche
Ideal für alle, die Arbeiten und Wohnen miteinander verbinden möchten, ohne Kompromisse bei Komfort und Funktionalität einzugehen.
Flächenaufteilung:
-
Wohnfläche/Bürofläche: ca. 78 m²
-
Zimmer: 2 Räume, großzügig geschnitten und durch einen Gang getrennt
-
2 Bäder mit Dusche oder Badewanne
-
Garten: ca. 13 m², ideal zum Entspannen
-
Terrasse: ca. 18 m², im Atriumstil, windgeschützt
Ausstattung:
-
Küche: Hochwertige Einbauküche der Marke HAKA mit allen Geräten
-
Böden: Edle Parkettböden
-
Heizung: Fußbodenheizung, Fernwärme Wien
-
Sonnenschutz: Integrierte Sonnenschutzsysteme
-
Barrierefreiheit: Die Einheit ist komplett barrierefrei
-
Erstbezug: Neuwertige Ausstattung
Zusätzliche Optionen:
-
Garagenplatz: Anmietbar für 110 Euro monatlich
-
Nebenkosten: 3 BMM Kaution, 3 BMM Provision
Lage:
Das Objekt liegt in einer zentralen und gut erreichbaren Lage in Wien. Die ideale Verbindung von Wohnen und Arbeiten bietet gleichzeitig Erholung im eigenen Garten und auf der großzügigen Terrasse.
Besonderheiten:
-
Erstbezug
-
Attraktive Lage
-
Optimale Raumaufteilung für Büro und Wohnen
-
Gute Verkehrsanbindung
Für Besichtigungen und weitere Informationen stehen wir Ihnen gerne zur Verfügung!
Infrastruktur / Entfernungen
Gesundheit
Arzt <500m
Apotheke <500m
Klinik <1.500m
Krankenhaus <1.500m
Kinder & Schulen
Schule <500m
Kindergarten <500m
Universität <2.000m
Höhere Schule <1.000m
Nahversorgung
Supermarkt <500m
Bäckerei <500m
Einkaufszentrum <1.000m
Sonstige
Geldautomat <1.000m
Bank <1.000m
Post <500m
Polizei <1.500m
Verkehr
Bus <500m
U-Bahn <1.500m
Straßenbahn <500m
Bahnhof <1.500m
Autobahnanschluss <1.000m
Angaben Entfernung Luftlinie / Quelle: OpenStreetMap
Verfügbare Flächen
Stiege/Bauteil
Eckdaten
| Kaltmiete (netto): | 755,42 € |
| Fläche: | 35,58 m² |
| Zimmer: | 2 |
Basisdaten zur Immobilie
| Objektnr: | 1939/164210 |
| Art: | Büro / Praxis |
| Land: | Österreich |
| Kaltmiete (netto): | 755,42 € |
| Kaltmiete: | 916,67 € |
| Miete / m²: | 11,76 € |
| Provision: | 3.300,01 € inkl. 20% USt. |
| Betriebskosten: | 161,25 € |
| MwSt Gesamt: | 183,33 € |
| Wohnfläche: | 35,58 m² |
| Nutzfläche: | 77,09 m² |
| Gesamtfläche: | 77,09 m² |
| Bürofläche: | 41,51 m² |
| Zimmer: | 2 |
| Bäder: | 2 |
| WC: | 1 |
| Terrassen: | 1 |
| Garten: | 12,73 m² |
| Heizwärmebedarf: | B 32,00 kWh/m²a |
| fGEE: | A 0,84 |
Ausstattung
Parkett, Fliesen, Fußbodenheizung, Einbauküche, Personenaufzug
Internet und TV
Information zur Internet und TV Versorgung hier
Ihre persönliche Beratung
Martin Steininger
IMMOcontract Immobilien Vermittlung GmbH
M.Steininger@IMMOcontract.at
+ 43 50/450-562
+43 676 841 420 562
