*Provisionsfrei* Erstbezug, 2-Zimmer mit Balkon nähe "alte Donau"
Wohnung
- Etage,
1220
Wien
Lage der Immobilie
Lage: Das Projekt befindet sich nur 3 Gehminuten von der alten Donau entfernt. Hier finden Sie ein umfangreiches Angebot an Freizeitaktivitäten sowie eine Vielzahl an kulinarischen Angeboten direkt am Wasser. Öffentliche Verkehrsanbindung: Linie U1 Station Donauzentrum, fußläufig in 10 Minuten erreichbar Straßenbahnlinie 25 Buslinie 93 ABeschreibung der Immobilie
Wohnen beim Freizeitparadies „Alte Donau“
Nur 170 Meter von der alten Donau entfernt, entsteht ein neues Wohnbauprojekt auf Baurechtsgrund.
Mit einer Vielzahl an verschiedenen Grundrissen und Wohnungsgrößen ist für jeden Bedarf das passende Angebot dabei.
Die Fertigstellung erfolgt im Frühjahr 2025.
Das Projekt umfasst insgesamt 19 Wohneinheiten mit 2 bis 3 Zimmer, aufgeteilt auf 4 Ebenen, wovon jede einzelne über ausreichend Freiflächen verfügt. (Garten, Terrasse, Balkon oder Loggia)
Die Wohnungsgrößen belaufen sich auf 36m² bis 81m².
Ausstattung:
3- fach verglaste Kunststoff- Alufenster
Elektr. bedienbare Raffstores
Parkettböden in den Wohnräumen
Keramischer Fliesenboden (30x60cm) in Badezimmer und WC
Handtuchwärmer
Luftwärmepumpe inkl. Kühlfunktion durch Photovoltaik unterstützt
Fußbodenheizung
Ein Tiefgaragenplatz im Haus kann zusätzlich erworben werden. Kostenpunkt: 25.000.-
E- Lademöglichkeit vorbereitet
Jeder Wohnung ist ein Kellerabteil zugeordnet
Der Baurechtsvertrag mit dem Stift Klosterneuburg ist auf 99 Jahre abgeschlossen und läuft bis zum Jahr 2120.
Der monatliche Baurechtszins beläuft sich auf ca. 1,40.-/m² Nutzfläche.
Infrastruktur / Entfernungen
Gesundheit
Arzt <500m
Apotheke <500m
Klinik <2.500m
Krankenhaus <3.500m
Kinder & Schulen
Schule <500m
Kindergarten <1.000m
Universität <2.000m
Höhere Schule <1.500m
Nahversorgung
Supermarkt <500m
Bäckerei <500m
Einkaufszentrum <500m
Sonstige
Geldautomat <500m
Bank <500m
Post <500m
Polizei <1.000m
Verkehr
Bus <500m
U-Bahn <500m
Straßenbahn <500m
Bahnhof <500m
Autobahnanschluss <2.000m
Angaben Entfernung Luftlinie / Quelle: OpenStreetMap
Eckdaten
| Kaufpreis: | 310.000,00 € |
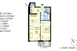
| Fläche: | 52,78 m² |
| Zimmer: | 2 |
Basisdaten zur Immobilie
| Objektnr: | 1939/163715 |
| Art: | Wohnung - Etage |
| Land: | Österreich |
| Baujahr: | 2024 |
| Zustand: | Erstbezug |
| Kaufpreis: | 310.000,00 € |
| Provision: | Provision bezahlt der Abgeber. |
| Wohnfläche: | 52,78 m² |
| Zimmer: | 2 |
| Balkone: | 1 |
| Heizwärmebedarf: | B 27,30 kWh/m²a |
| fGEE: | A+ 0,68 |
Ausstattung
Fußbodenheizung, Personenaufzug
Internet und TV
Information zur Internet und TV Versorgung hier
Ihre persönliche Beratung
Martin Steininger
IMMOcontract Immobilien Vermittlung GmbH
M.Steininger@IMMOcontract.at
+ 43 50/450-562
+43 676 841 420 562
