3 Zimmer Neubauwohnung im Grünen
Wohnung
- Dachgeschoß,
2326
Lanzendorf
Lage der Immobilie
In nur 11 Minuten entspannt mit dem Zug in Wien! Mit knapp 2000 Einwohnern strahlt Lanzendorf eine friedliche, beschauliche Atmosphäre aus und vereint perfekt die Ruhe des Landlebens mit hervorragenden Verkehrsanbindungen. Diese idyllische Gemeinde ermöglicht es, in einer natürlichen Oase zu leben, ohne auf die Annehmlichkeiten der Stadt verzichten zu müssen. Dank exzellenter Anbindung erreichen Sie den Wiener Hauptbahnhof in nur etwa 11 Minuten mit dem Zug – ein wahres Plus für Pendler und Stadtliebhaber. Auch der Flughafen Wien ist in nur 15 Minuten mit dem Auto bequem erreichbar. Naturliebhaber kommen in Lanzendorf ebenfalls voll auf ihre Kosten. Die familienfreundliche Region lädt dazu ein, dem stressigen Alltag zu entfliehen und inmitten unberührter Natur zu entspannen. Ob bei einer gemütlichen Wanderung oder einer entspannten Radtour – hier können Sie die Seele baumeln und den Alltag hinter sich lassen. Fernab von Lärm und Hektik erwarten Sie entspannende Spaziergänge und idyllische Momente der Ruhe. Ein weiteres Highlight ist der Triestingau-Radweg, der in unmittelbarer Nähe verläuft. Dieser flache, leicht befahrbare Radweg führt entlang der Triesting und durch unberührte Au-Landschaften – perfekt für entspannte Familienausflüge und unvergessliche Erlebnisse inmitten der Natur. Die neue Wohnhausanlage in Lanzendorf überzeugt nicht nur durch ihre ruhige Lage und hervorragende Anbindung, sondern auch durch eine exzellente Infrastruktur. Kindergärten und Schulen befinden sich in unmittelbarer Nähe, was die Lage besonders familienfreundlich macht. Auch Einkaufsmöglichkeiten für den täglichen Bedarf sind schnell erreichbar, sodass Sie alle wichtigen Dinge des Lebens bequem vor Ort erledigen können. Für Ihr leibliches Wohl sorgen zahlreiche Gastronomiebetriebe in der Umgebung, die eine breite Auswahl an kulinarischen Genüssen bieten. So können Sie nach einem langen Tag in einem gemütlichen Restaurant oder Café entspannen und genießen.Beschreibung der Immobilie
Diese moderne und äußerst energieeffiziente Wohnhausanlage wird in fußläufiger Nähe des Bahnhofs Lanzendorf neu errichtet. Sie bietet die perfekte Kombination aus einer optimalen Anbindung an das öffentliche Verkehrsnetz und einer ruhigen, erholsamen Lage.
Insgesamt entstehen 43 hochwertige Wohneinheiten, die von familienfreundlichen Gartenwohnungen, seniorengerechten Kompaktwohnungen, Single-Wohnungen, bis hin zu exklusiven Dachgeschosswohnungen mit atemberaubenden Dachterrassen und Fernblick reichen.
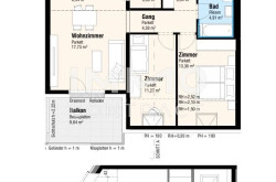
Wohnungsgrößen: von ca. 51 bis ca. 105 m²
Zimmeranzahl: 2 bis 4 Zimmer
Preisklassen: von € 245.000, -- bis € 517.000, --
Allgemeinbereiche:
• Kinderspielplatz
• Sauna mit Ruhebereich
• Großzügige Fahrradräume
• Allgemeine Grünflächen
In den beiden Untergeschossen stehen gesamt 86 Stellplätze zur Verfügung, welche erworben werden können.
Bauweise: Modernste, energieeffiziente Bauweise für höchsten Komfort und Nachhaltigkeit
Erstbezug: Alles neu und hochwertig
Die Wohnungsgrundrisse sind äußerste durchdacht, modern und optimal geplant für ein komfortables Wohnen.
Dieses Projekt bietet nicht nur ein modernes Zuhause, sondern auch einen perfekten Lebensraum für Familien, Paare und Singles, die Wert auf Qualität, Komfort und eine hervorragende Lage legen.
Wenn wir Ihr Interesse geweckt haben, kontaktieren Sie mich gerne und vereinbaren Sie noch heute einen unverbindlichen Beratungs- und Besichtigungstermin im Objekt.
Sie haben eine Immobilie zu verwerten? Mit mehr als 30 Jahren Erfahrung in der Immobilienbranchen sind Sie bei mir in den besten Händen! Gerne berate ich Sie unverbindlich über das umfangreiche Leistungsspektrum der IMMOcontract!
Infrastruktur / Entfernungen
Gesundheit
Arzt <3.500m
Apotheke <2.000m
Klinik <4.000m
Krankenhaus <9.000m
Kinder & Schulen
Schule <1.500m
Kindergarten <1.000m
Universität <7.500m
Höhere Schule <9.500m
Nahversorgung
Supermarkt <500m
Bäckerei <2.500m
Einkaufszentrum <4.000m
Sonstige
Geldautomat <1.500m
Bank <1.500m
Post <2.000m
Polizei <3.000m
Verkehr
Bus <500m
Straßenbahn <3.500m
U-Bahn <5.000m
Bahnhof <500m
Autobahnanschluss <1.500m
Flughafen <8.500m
Angaben Entfernung Luftlinie / Quelle: OpenStreetMap
Eckdaten
| Kaufpreis: | 343.000,00 € |
| Fläche: | 71,85 m² |
| Zimmer: | 3 |
Basisdaten zur Immobilie
| Objektnr: | 1939/163103 |
| Art: | Wohnung - Dachgeschoß |
| Land: | Österreich |
| Baujahr: | 2025 |
| Zustand: | Erstbezug |
| Kaufpreis: | 343.000,00 € |
| Provision: | Provision bezahlt der Abgeber. |
| Betriebskosten: | 271,00 € |
| MwSt Gesamt: | 27,10 € |
| Wohnfläche: | 71,85 m² |
| Zimmer: | 3 |
| Bäder: | 1 |
| WC: | 1 |
| Balkone: | 1 |
| Heizwärmebedarf: | B 29,80 kWh/m²a |
| fGEE: | A+ 0,67 |
Ausstattung
Erdwärme, Fußbodenheizung, Sauna
Internet und TV
Information zur Internet und TV Versorgung hier
Ihre persönliche Beratung
Martin Melcher
IMMOcontract Immobilien Vermittlung GmbH
M.Melcher@IMMOcontract.at
+43 677 6173 2439
+43 677 6173 2439
