Immobilie merken

Urban leben. Ruhig wohnen.

Wohnung , 3100 St. Pölten

Lage der Immobilie

Autobahnnähe, Bahnhofsnähe, Balkon/Terrasse hofseitig, großer Balkon/Terrasse, hofseitig, öffentl. Verkehrsmittel, repräsentativ, sonnig, Zentrum

Beschreibung der Immobilie

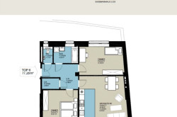
Mitten in der Landeshauptstadt St.Pölten kann Ihr Wohntraum wahr werden! Leben sie in einem vollständig modernisierten, hochwertigen Wohnhaus, in äußerst attraktiver Innenstadtlage; Sie werden sich mit Sicherheit wohlfühlen! Das Projekt: Das Bauprojekt ist ab Mai bezugsfertig und bietet 2- bis 3-Zimmer-Wohnungen in der Größe zwischen ca. 50 m² bis ca. 80 m² jeweils mit Balkonen oder Terrassen, bzw. einem eigenen kleinen Garten. Sämtliche Wohnungen sind barrierefrei ausgebaut. Das im Innenhof befindliche Gebäude bietet neben einer äußerst attraktiven und durchdachten Wohnraumplanung mit hochwertigen Ausstattungen zudem auch eine Garage im Erdgeschoß und im 1. Untergeschoß sowie Kfz-Stellplätze im Freien. Zudem stehen Fahrradabstellplätze im Erdgeschoß sowie auch im Kellerbereich des Gebäudes ebenfalls zur Verfügung. Ausstattungshighlights: - Großzügige Freiflächen für jede Wohnung - Radabstellplätze im Erdgeschoß sowie im Kellerbereich - Kellerabteile - Kinderwagenabstellplatz - Badezimmer/WC mit moderner Sanitärausstattung - Echtholzparkettfußboden in den Wohnräumen und Keramikfliesen in den Sanitärräumen - Energieeffizientes heizen mittels Fernwärme - Videogegensprechanlage Beschreibung: Die Wohnung ist mit einer attraktiven, funktionellen sowie hochwertigen Küche inklusive sämtlichen elektrischen Geräten des täglichen Bedarfs ausgestattet. Die Bodenbeläge der Wohnräume verfügen über einen schönen und langlebigen Echtholzparkettboden aus Eiche. Die Bodenbeläge im Badezimmer bzw. WC sind mit Fliesen versehen, welche nicht nur zeitlos und gleichzeitig sehr modern anmuten, sie sind zudem auch äußerst pflegeleicht. Die Beheizung erfolgt über Fernwärme und ist daher besonders umweltfreundlich, bequem und verspricht ein Höchstmaß an Wohlfühlqualität. Detailbeschreibung: Die Wohnung Top 6 mit ca. 77,28 m² liegt im 2. Obergeschoß – ein Lift ist selbstverständlich vorhanden – und verfügt über folgendes Raumprogramm: Vorraum, Wohnraum inkl. Küche, 2 Zimmer, Badezimmer, WC, Abstellraum und Balkon samt Abstellraum. Ein Kellerabteil wird prekaristisch mitvermietet. Monatliche Kosten: Die angegebene monatliche Miete beinhaltet neben dem Hauptmietzins die Betriebskosten sowie die gesetzliche Umsatzsteuer. Das monatliche Heizkostenakonto sowie die Heizkostenabrechnung werden von der zuständigen Hausverwaltung vorgeschrieben. Die verbrauchsabhängigen Stromkosten direkt mit dem Energieversorgungsunternehmen verrechnet. Vertragskonditionen: Der Mietvertrag wird auf 5 Jahre befristet abgeschlossen. Nebenkosten: Kaution: ca. 3 Brutto-Monatsmieten Parken: Autoabstellplätze in der Garage im Erdgeschoß sowie im ersten Untergeschoß bzw. im Innenhof können bei Bedarf optional mit angemietet werden. Verfügbarkeit: Das Objekt steht ab Mai 2026 zur Verfügung. Energieausweis: Ausstellungsdatum 01.09.2022 Heizwärmebedarf (HWB) 29,1 kWh/m²/a. (Einstufung Energieklasse B) Gesamtenergieeffizienz-Faktor (fGEE) 0,76. (Einstufung Energieklasse A) Hinweis auf Naheverhältnis: Wir weisen darauf hin, dass zum Vermieter ein wirtschaftliches Naheverhältnis besteht (wiederholte Beauftragungen). Objektnummer: 8117 Halten Sie bitte bei telefonischen Auskünften diese Objektnummer bereit. Gerne stehen wir Ihnen für weitere Auskünfte oder zur Vereinbarung eines Besichtigungstermins zu Verfügung. Hinweis: Die gegenständliche Wohnung ist Teil eines Neubau-/ Sanierungsprojekts, welches sich zwischen der Brunngasse und dem Rathausplatz situiert. Sollte diese Wohnung nicht ganz Ihren Anforderungen bzw. Wünschen entsprechen, würden wir Ihnen gerne in einem persönlichen Gespräch weitere Wohnungen aus diesem Projekt vorstellen. Es besteht eine große Auswahl an Wohnungen, welche größtenteils über 2 bis 3 Zimmer sowie über attraktive Freiflächen verfügen. Bei Interesse oder für nähere Informationen können Sie uns gerne jederzeit kontaktieren. Um unsere Angebote noch besser Ihren Vorstellungen anpassen zu können bitten wir Sie im Zuge Ihrer Anfrage auch um die Bekanntgabe Ihrer Suchkriterien. Dies ermöglicht es uns schnell das für Sie passende Objekt zu finden. Wir ersuchen aus organisatorischen Gründen (Datenbankpflege) und aufgrund unserer Nachweispflicht gegenüber dem Abgeber um vollständige Angabe Ihrer Kontaktdaten einschließlich Vor- und Zuname, Adresse und Telefonnummer. Wir ersuchen um Verständnis, dass wir Anfragen mit unvollständigen Kontaktdaten nicht bearbeiten können. Der Schutz Ihrer personenbezogenen Daten ist uns ein großes Anliegen. Wir verwenden Ihre Daten für die Interessenten- und Kundenverwaltung im Rahmen der Immobilienvermittlung (z.B. für die Zusendung von Immobilienangeboten). Die Rechtsgrundlage dafür bildet – sofern nicht eine gesetzliche Grundlage vorliegt – ein abgeschlossener Vertrag bzw. eine Vertragsanbahnung (Vermittlungsvertrag). Die Weitergabe personenbezogener Daten erfolgt ohne ausdrückliche separate Einwilligung nur insoweit, wie es für Vertragsabwicklungen erforderlich ist. Keinesfalls werden Ihre Daten zu Werbezwecken o.ä. weitergegeben. Unsere Mitarbeiter und unsere Dienstleistungsunternehmen sind zur Verschwiegenheit und zur Einhaltung der Datenschutzbestimmungen verpflichtet. Lesen Sie mehr in unserer Datenschutzerklärung auf unserer Homepage.

Eckdaten

Gesamtmiete: 1.197,02 €
Fläche: 77,28 m²
Zimmer: 3

Basisdaten zur Immobilie

Objektnr: 202/08117
Art: Wohnung
Land: Österreich
Baujahr: 2025
Alter: Neubau
Gesamtmiete: 1.197,02
Kaltmiete (netto): 895,00 €
Kaltmiete: 1.197,02 €
Wohnfläche: 77,28 m²
Zimmer: 3
Bäder: 1
WC: 1
Balkone: 1
Heizwärmebedarf:  B  29,10 kWh/m²a
fGEE:  A  0,76

Ausstattung

Fernwärme, Zentralheizung, Personenaufzug



Internet und TV

Information zur Internet und TV Versorgung hier




Immobilie anfragen




Ihre persönliche Beratung

Realkanzlei Edlauer Immobilientreuhänder

René HOMMEN

Realkanzlei Edlauer Immobilientreuhänder

r.hommen@edlauer.com

+43 (0) 2742 35243889

+43 (0) 660 245 22 18

F +43 (0) 2742 352438 - 3


Realkanzlei Edlauer Immobilientreuhänder - Immobilen Makler

Josefstraße 19, 3100 St. Pölten

+43/2742/352438-0

https://www.edlauer.com