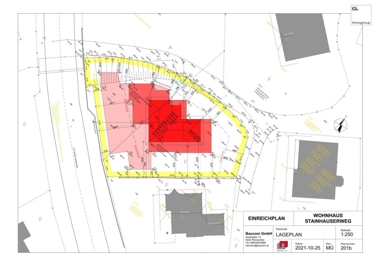
Lage der Immobilie
Ebenau liegt ca. 20 min von der Stadtgrenze Salzburg und dem Fuschlsee entfernt. Der Salzburgring ist in ca. 10 min erreichbar.Beschreibung der Immobilie
Dieses Bauträgerprojekt ist fertig geplant, projektiert und Baugenehmigt.
Der Preis ist inkl. dem Grundstück und der bereits fertiggestellten Projektierung.
Aufschließungskosten sind ebenso inkludiert. Eine eigene Planung oder gesamte neue Projektierung bzw. Um-Projektierung wäre möglich.
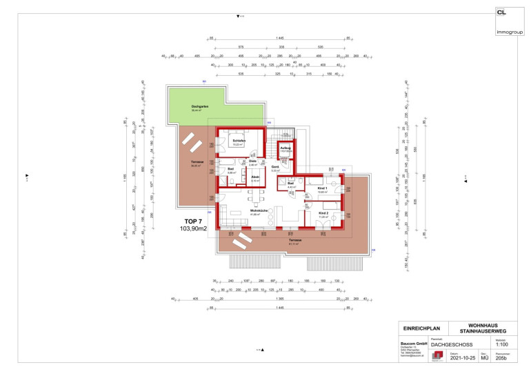
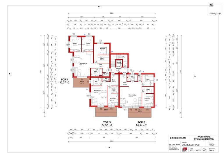
Derzeit sind 7 Wohneinheiten geplant mit Stell- und Tiefgaragenplätzen. Die Wohnflächen der 7 Tops sind zwischen 55m2 bis 104m2 (Penthouse im DG).
Nähe diesem Baugrundstück befindet sich noch ein anderes interessantes Baugrundstück (ohne Projektierung) das ebenso mit erworben werden kann.
Eckdaten
| Kaufpreis: | 790.000,00 € |
| Fläche: | 1.433,00 m² |
Basisdaten zur Immobilie
| Objektnr: | 16124 |
| Art: | Grundstück - Baugrund Eigenheim |
| Land: | Österreich |
| Kaufpreis: | 790.000,00 € |
| Kaufpreis / m²: | auf Anfrage |
| Provision: | 3% des Kaufpreises zzgl. 20% USt. |
| Grundstücksfl.: | 1.433,00 m² |
Internet und TV
Information zur Internet und TV Versorgung hier
Ihre persönliche Beratung
Ing. Christian Kornigg
CL-immogroup GmbH
c.kornigg@cl-immogroup.at
+43 699 / 13 49 99 90
