Renovierte 3 Zimmer Mietwohnung mit Balkon in saniertem Wohnhaus im Stadtzentrum!
Wohnung
,
7400
Oberwart
Beschreibung der Immobilie
Die Lage:
Die Lage in der Bezirkshauptstadt inmitten des Stadtzentrums - mit sämtlichen Annehmlichkeiten - ist sehr gut! Alles was Sie im Alltag an Infrastruktur benötigen - wie z.B. diverse Supermärkte, Kindergarten/Hort, Volksschule, NMS, Polytechnikum, Berufsschule, HBLA, Handelsakademie, Zweisprachiges Bundesgymnasium, Apotheke, Ärztezentrum, Krankenhaus, Banken, Post, Tankstelle, das EO Einkaufszentrum Oberwart etc. - ist im Umfeld vorhanden! Oberwart ist zudem ideal an das öffentliche Verkehrsnetz angebunden (zahlreiche Busverbindungen z.B. die Linie B01 nach Wien, BAST Burgenland Sammeltaxi). Aufgrund der im Nahbereich angesiedelten Grünflächen und der zahlreichen "Sport- & Freizeiteinrichtungen" (Freibad, Tennisplätze, Fußballverein, Profi-Basketballverein "Gunners", Skaterpark etc.) wird Ihnen ein größtmögliches Maß an Lebensqualität zu Teil!
Das Wohnhaus:
Das Wohnhaus wurde ursprünglich im Jahr 1957 errichtet und 2025 saniert. Es wurde eine neue Fernwärme-Zentral-heizung installiert, die Wohnung verfügt über einen eigenen Zähler, der Verbrauch von Warmwasser und Heizung wird von den Mietern direkt mit dem Energieversorger (Energie Burgenland) abgerechnet - Richtwert 2,30 Euro pro m². Weiters wurden die Wohnungen zwischenzeitlich mit Balkonen ausgetattet. Im Keller stehen Kellerabteile zur Nutzung zur Verfügung. PKW Stellplätze können bei Bedarf zum monatlichen Preis von 50,- Euro brutto pro Monat angemietet werden.
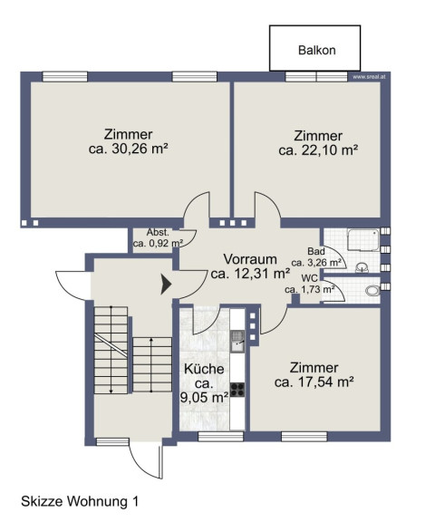
Raumaufteilung der Wohnung:
Wohnschlafraum 30,26 m²
Wohnschlafraum 22,10 m² mit Zugang zum Balkon ca. 5 m²
Wohnschlafraum 17,54 m²
Vorraum 12,31 m²
Küche mit Einbauküche 9,05 m²
Duschbadezimmer mit 3,26 m²
Toilette 1,73 m²
Abstellraum 0,92 m²
ca. 97,17 m² gesamt
Allgemeines: (frühester Mietbeginn 15.1.2026)
3 Bruttomonatsmieten Kaution. Mietdauer 5 Jahre, in Ausnahmefällen etwas länger. Ein Einkommen in entsprechender Höhe, oder eine Garantie eines erwerbstätigen Elternteils für Auszubildende, ist Voraussetzung zur Darstellung der Leistbarkeit (die monatliche Miete beträgt maximal 40% des Haushaltsnettoeinkommens). Bei einer Beschäftigungsdauer von unter 1 Jahr beträgt die Kaution 6 Bruttomonatsmieten. Anzahl der Bewohner max. 3-4 Personen. Eine Anmietung ist nur bei einem unbefristeten Aufenthaltstitel möglich!
Hier geht's zum 360° Rundgang: https://app.immoviewer.com/portal/tour/3137277?accessKey=6942
Viele weitere Rundgänge, so wie alle neuen s REAL Immobilienangebote finden Sie auf www.sreal.at.
Infrastruktur / Entfernungen
Gesundheit
Arzt <5.500m
Apotheke <1.000m
Krankenhaus <1.500m
Kinder & Schulen
Schule <500m
Kindergarten <500m
Höhere Schule <1.500m
Universität <7.500m
Nahversorgung
Supermarkt <500m
Bäckerei <500m
Einkaufszentrum <2.000m
Sonstige
Bank <500m
Geldautomat <500m
Post <500m
Polizei <500m
Verkehr
Bus <500m
Bahnhof <1.500m
Angaben Entfernung Luftlinie / Quelle: OpenStreetMap
Eckdaten
| Objektnr: | 960/74375 |
| Art: | Wohnung |
| Land: | Österreich |
| Baujahr: | 1957 |
| Zustand: | Teil_vollrenoviert |
| Alter: | Neubau |
| Gesamtmiete: | 1.005,81 € |
| Kaltmiete (netto): | 777,36 € |
| Kaltmiete: | 914,37 € |
| Provision: | Gemäß Erstauftraggeberprinzip bezahlt der Abgeber die Provision. |
| Betriebskosten: | 106,89 € |
| MwSt Gesamt: | 91,44 € |
| Wohnfläche: | 97,17 m² |
| Zimmer: | 3 |
| Bäder: | 1 |
| WC: | 1 |
| Balkone: | 1 |
| Heizwärmebedarf: | D 139,80 kWh/m²a |
| fGEE: | D 2,07 |
Ausstattung
Fliesen, Parkett, Fernwärme, Einbauküche
Internet und TV
Information zur Internet und TV Versorgung hier
Ihre persönliche Beratung
Marco Antonio Stipsits
s REAL Immobilienvermittlung GmbH
marco.stipsits@sreal.at
+43 (0)5 0100 - 26331
+43 664 8183713
