Repräsentative Lokalflächen mit Garagenbox für 2 PKW
Einzelhandel
,
1050
Wien
Lage der Immobilie
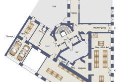
Wiedner Hauptstraße/BlechturmgasseBeschreibung der Immobilie
Zum Verkauf steht eine modernisierte Geschäftsfläche (ca. 241 m²) mit weitläufigen Grundriss, hohen Gewölben und großer Garagenbox für 2 PKW mit Lager (ca. 37 m²). Drei Eingangsbereiche und die neu angebauten Auslagenfronten erstrecken sich über Rainergasse bzw. Wiedner-Hauptstraße. Im Zuge der letzten Aus- und Umbauten wurden Lokalflächen zusammengelegt. Dadurch wurde eine einheitlich nutzbare Geschäftsfläche mit 3 Eingängen errichtet. Weitere Nebenräume wie Lager, Ruheraum mit Dusche, zwei WC sowie ein Bürobereich stehen zur Verfügung.
Zuletzt wurden die Flächen als Repräsentanz eines Einrichtungshauses genutzt. Durch die Nähe zum Franziskusspital sowie zu den umliegenden Gesundheitszentren und Arztpraxen ist die Fläche auch für den Gesundheitsbereich interessant. "Barrierefreiheit" lässt sich einfach herstellen.
Hinweise:
- Zum Kaufpreis werden keine 20 % USt. ausgewiesen.
- In den angegebenen Betriebskosten (1.047,32) ist eine Rückzahlungsrate zu einem Sanierungsdarlehen am Haus (unter Sonstiges mtl. € 79,59) inkludiert. (Darlehensanteil zum Kaufgegenstand per 2024 ca. € 13.500,-)
- Die üblichen Ankaufnebenkosten, Grunderwerbsteuer, Eintragungsgebühr, Maklerhonorar und Notar- Anwaltskosten sind dem angegebenen Kaufpreis hinzuzurechnen.
- Es besteht die Möglichkeit die 2 Geschäftslokale und Garagenbox für 2 PKW mit Abstellraum getrennt zu erwerben.(Kaufanbot Reservierung)
Bei Interesse ersuchen wir um Ihre Anfrage.
Sie erhalten auch telefonisch Auskunft unter Hr. Fahmy Mobil: +43 664 8183919
Hier geht´s zum 360° Rundgang: https://app.immoviewer.com/portal/tour/3142444?accessKey=6942
Viele weitere Rundgänge, so wie alle neuen s REAL Immobilienangebote finden Sie auf www.sreal.at
Infrastruktur / Entfernungen
Gesundheit
Arzt <500m
Apotheke <500m
Klinik <1.000m
Krankenhaus <500m
Kinder & Schulen
Schule <500m
Kindergarten <500m
Universität <500m
Höhere Schule <1.000m
Nahversorgung
Supermarkt <500m
Bäckerei <500m
Einkaufszentrum <500m
Sonstige
Geldautomat <500m
Bank <500m
Post <500m
Polizei <1.000m
Verkehr
Bus <500m
U-Bahn <1.000m
Straßenbahn <500m
Bahnhof <500m
Autobahnanschluss <3.000m
Angaben Entfernung Luftlinie / Quelle: OpenStreetMap
Eckdaten
| Kaufpreis: | 920.000,00 € |
| Fläche: | 278,00 m² |
Basisdaten zur Immobilie
| Objektnr: | 960/74436 |
| Art: | Einzelhandel |
| Land: | Österreich |
| Baujahr: | 1896 |
| Alter: | Altbau |
| Kaufpreis: | 920.000,00 € |
| Kaufpreis / m²: | 3.309,35 € |
| Provision: | 3% des Kaufpreises zzgl. 20% USt. |
| Betriebskosten: | 553,66 € |
| MwSt Gesamt: | 110,73 € |
| Nutzfläche: | 278,00 m² |
| WC: | 3 |
| Heizwärmebedarf: | E 193,77 kWh/m²a |
| fGEE: | D 1,75 |
Ausstattung
Gas, Etagenheizung, Dusche
Internet und TV
Information zur Internet und TV Versorgung hier
Ihre persönliche Beratung
Said Fahmy
s REAL Immobilienvermittlung GmbH
said.fahmy@sreal.at
+43 (0)5 0100 - 26255
+43 664 8183919
