hochwertiges Studio mit vielseitigen Nutzungsmöglichkeiten – ideal als Büro oder für Yoga oder Tanzstudio
Büro / Praxis
,
1070
Wien
,
Stuckgasse
Lage der Immobilie
StuckgasseBeschreibung der Immobilie
In bester Lage im 7. Bezirk befindet sich dieses Studio mit hochwertiger Ausstattung und ruhiger Innenhof-Atmosphäre.
Ideal auch zur Nutzung z.B. als:
- Wellnessbereich/Therapien
- Tanzstudio
- Creativstudio
- Balettschule
- Büro
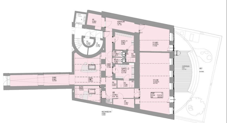
Das gesamte Studio erstreckt sich auf einer Fläche von ca. 176 m² und bietet darüber hinaus eine Außenfläche von zusätzlich 19,91 m² Hof-Terrrasse und ca. 89,26 m² Innenhofbereich.
Das Objekt ist hochwertig ausgestattet und verfügt über folgende Räume:
- großzügiger, einladender Eingangsbereich
- zwei getrennte Garderobenbereiche
- getrennte Duschen und Toiletten
- Kochnische
- kleiner Büroraum
- kleines Studio / Therapieraum / Büroraum ca. 17,70 m²
- großes Studio / Therapieraum / Büroraum ca. 46,31 m²
- Außenfläche Terrasse 19,91 m²
- Außenfläche Innenhof 89,26 m²
HINWEIS:
Die aktuellen Fotos zeigen den tatsächlichen Zustand der Räumlichkeiten, teilweise ergänzt durch KI-generierte Möblierung zur besseren Visualisierung möglicher Nutzungskonzepte.
Das Objekt ist derzeit vermietet und wird als Büro genutzt. Vor Übergabe wird die Fläche vollständig geräumt und ohne Einbauten oder Möblierung leer übergeben.
Lage und Umgebung:
Zwischen Mariahilfer Straße, Lerchenfelder Straße und Museumsquartier im beliebtesten Teil des 7. Bezirks.
Beste öffentliche Anbindung U2, Bus 13A, 48A, Straßenbahn Linie 49.
Direkt in der Umgebung befinden sich zahlreiche Cafés, Bars und Restaurants für alle Geschmäcker, individuelle, kreative Boutiquen, Galerien und Designbüros bis hin zur Einkaufsstraße schlechthin, der „Mahü“ und dem großen Museumsquartier am unteren Ende des Bezirks.
Der siebte Wiener Gemeindebezirk ist ein wahrer Hotspot für alle, die die Füße nicht still halten können und gerne in eine kreative, bunte und aufregende Welt eintauchen.
Vergebührung des Mietvertrages (§ 33 TP 5 GebG): über den Abschluss von Bestandverträgen über Räumlichkeiten, die zu anderen als Wohnzwecken gemietet werden (Geschäftsräume, neutrale Objekte), ist eine Vergebührung in Höhe von 1 % des auf die Vertragsdauer entfallenden Bruttomietzinses (inkl. USt.), höchstens das 18-fache des Jahreswertes, bei unbestimmter Vertragsdauer 1 % des dreifachen Jahreswertes, zu entrichten.
Noch nichts gefunden? Wir informieren Sie über geeignete Immobilienangebote noch vor allen anderen.
Legen Sie jetzt Ihren individuellen Suchagenten unter folgendem Link an. Wir schicken Ihnen passende Immobilien exklusiv vorab zu.
Suchagent anlegen - https://accenta-immobilien.service.immo/registrieren/de
Hinweis gemäß Energieausweisvorlagegesetz: Ein Energieausweis wurde vom Eigentümer bzw. Verkäufer, nach unserer Aufklärung über die generell geltende Vorlagepflicht, sowie Aufforderung zu seiner Erstellung noch nicht vorgelegt. Daher gilt zumindest eine dem Alter und der Art des Gebäudes entsprechende Gesamtenergieeffizienz als vereinbart. Wir übernehmen keinerlei Gewähr oder Haftung für die tatsächliche Energieeffizienz der angebotenen Immobilie.
Der Vermittler ist als Doppelmakler tätig.
Sie möchten Ihre Immobilie verkaufen oder vermieten?
Vertrauen Sie auf unsere Erfahrung – mit geprüfter Qualität und transparenter Abwicklung.
Die Immobilien Card garantiert Ihnen, dass Sie mit einem geprüften Profi für Verkauf und Vermietung sprechen.
Infrastruktur / Entfernungen
Gesundheit
Arzt <250m
Apotheke <250m
Klinik <500m
Krankenhaus <1.500m
Kinder & Schulen
Schule <250m
Kindergarten <250m
Universität <500m
Höhere Schule <750m
Nahversorgung
Supermarkt <250m
Bäckerei <250m
Einkaufszentrum <500m
Sonstige
Geldautomat <250m
Bank <500m
Post <500m
Polizei <500m
Verkehr
Bus <250m
U-Bahn <500m
Straßenbahn <250m
Bahnhof <750m
Autobahnanschluss <4.250m
Angaben Entfernung Luftlinie / Quelle: OpenStreetMap
Eckdaten
| Kaltmiete (netto): | 2.333,07 € |
| Fläche: | 285,04 m² |
Basisdaten zur Immobilie
| Objektnr: | 11460 |
| Art: | Büro / Praxis |
| Land: | Österreich |
| Zustand: | Modernisiert |
| Alter: | Altbau |
| Kaltmiete (netto): | 2.333,07 € |
| Kaltmiete: | 2.658,34 € |
| Provision: | 3 Bruttomonatsmieten zzgl. 20% USt. |
| Betriebskosten: | 325,27 € |
| MwSt Gesamt: | 531,66 € |
| Nutzfläche: | 285,04 m² |
| Gesamtfläche: | 175,87 m² |
| Bäder: | 2 |
| WC: | 2 |
| Terrassen: | 1 |
| Garten: | 89,26 m² |
Internet und TV
Information zur Internet und TV Versorgung hier
Ihre persönliche Beratung
Martina Schütz
Accenta Immobilien e.U.
martina.schuetz@accenta-immo.at
+43 1 9971293
+43 699 17089345
F +43 1 997129310
