Lage der Immobilie
Nähe Meidlinger HauptstraßeBeschreibung der Immobilie
Topsaniertes Büro, nahe Meidlinger Hauptstraße
Genießen Sie den Flair dieses hochwertig ausgestatteten Büros. Es befindet sich im Erdgeschoß eines kleinen und familiären Wohnhauses. Die regelmäßigen Investitionen und der hohe Qualitätsanspruch des Hauseigentümers sind sofort erkennbar.
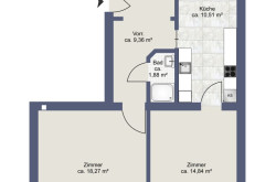
Geboten werden Vorraum, Toilette, Bad mit Dusche, 2 Zimmer und Küche (neuwertig und mit Miele Geräten ausgestattet). Ein netter Innenhof steht zur Nutzung zur Verfügung.
Geheizt wird über eine Gasetagenheizung.
Der Mietvertrag wird vorerst auf 5 Jahre befristet abgeschlossen. Als Kaution sind € 3.000,-- zu hinterlegen. Die monatl. Gesamtmiete beträgt netto € 930,14 (inkl. BK) zzgl. 20% Ust.
Heiz- und Stromkosten sind verbrauchsabhängig und dadurch zusätzlich direkt an den jeweiligen Versorger zu begleichen.
Die Infrastruktur ist hervorragend. Die ums Eck liegende Meidlinger Hauptstrasse sowie U-Bahn Station Niederhofstrasse (U6) garantieren eine optimale Nahversorgung und öffentliche Verkehrsanbindung.
Infrastruktur / Entfernungen
Gesundheit
Arzt <500m
Apotheke <500m
Klinik <500m
Krankenhaus <1.500m
Kinder & Schulen
Schule <500m
Kindergarten <500m
Universität <1.000m
Höhere Schule <500m
Nahversorgung
Supermarkt <500m
Bäckerei <500m
Einkaufszentrum <500m
Sonstige
Geldautomat <500m
Bank <500m
Post <500m
Polizei <500m
Verkehr
Bus <500m
U-Bahn <500m
Straßenbahn <500m
Bahnhof <500m
Autobahnanschluss <3.000m
Angaben Entfernung Luftlinie / Quelle: OpenStreetMap
Eckdaten
| Objektnr: | 960/73153 |
| Art: | Büro / Praxis |
| Land: | Österreich |
| Baujahr: | 1890 |
| Zustand: | Voll_saniert |
| Alter: | Altbau |
| Kaltmiete (netto): | 786,60 € |
| Kaltmiete: | 930,14 € |
| Miete / m²: | 14,08 € |
| Provision: | 3.348,50 € inkl. 20% USt. |
| Betriebskosten: | 143,54 € |
| MwSt Gesamt: | 186,03 € |
| Wohnfläche: | 55,86 m² |
| Zimmer: | 2 |
| Bäder: | 1 |
| WC: | 1 |
| Heizwärmebedarf: | D 103,00 kWh/m²a |
| fGEE: | C 1,33 |
Ausstattung
Fliesen, Parkett, Gas, Etagenheizung, Einbauküche, Dusche
Internet und TV
Information zur Internet und TV Versorgung hier
Ihre persönliche Beratung
Alain Zeiler
s REAL Immobilienvermittlung GmbH
alain.zeiler@sreal.at
+43 (0)5 0100 - 26251
+43 664 8182934
