* Bauträgergrundstück Bauland Kerngebiet _ 6 Wohneinheiten _ 1 Geschäftslokal *
Grundstück
,
2500
Baden
Beschreibung der Immobilie
Projektplanung für 6 Wohneinheiten gesamt 303m² Wohnfläche und 60m² Geschäftslokal
Das attraktive Baugrundstück im Kerngebiet von Baden bietet eine hervorragende Gelegenheit für Projektentwickler und Investoren. Die Liegenschaft ist als Bauland–Kerngebiet gewidmet und ermöglicht die Errichtung von bis zu 6 Wohneinheiten. Ein Planungsentwurf liegt bereits vor, wodurch sich der Realisierungsprozess deutlich verkürzt und optimal vorbereitet ist.
Eckdaten und Highlights:
- Bauland Kerngebiet - 6WE
- aufgeschlossen
- Vermessen
- Anschlüsse: Gas, Strom, Wasser, Kanal, Internet
- NÖ Landeskindergarten 1min zu Fuß
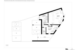
Bebauungs-und Flächenwidmungsplan
Nähere Infos --> gerne auf Anfrage
„Alleingänge beim Ansuchen um Kredit" …
können teuer werden. Wir garantieren Ihnen - aufgrund von Erfahrung und Verhandlungsgeschick - günstigere Konditionen, als wenn Sie selbst mit der Bank verhandeln. Testen Sie gleich jetzt unseren Kreditrechner um sich einen ersten Überblick zu verschaffen
Sie wollen Ihr Eigenheim verkaufen?
Sie haben bereits eine Wohnung oder ein Haus in Ihrem Eigentum und möchten diese(s) aufgrund eines Umzugs verkaufen? Kein Problem, wir finden den richtigen Käufer für Ihre Immobile. Berechnen Sie jetzt kostenlos den Wert Ihres Eigenheims in nur wenigen Schritten unter www.immolution.at
und möchten diese(s) aufgrund eines Umzugs verkaufen? Kein Problem, wir finden den richtigen Käufer für Ihre Immobi
Der Vermittler ist als Doppelmakler tätig.
Infrastruktur / Entfernungen
Gesundheit
Arzt <500m
Apotheke <500m
Klinik <1.500m
Krankenhaus <1.000m
Kinder & Schulen
Kindergarten <500m
Schule <500m
Höhere Schule <9.000m
Nahversorgung
Supermarkt <500m
Bäckerei <500m
Einkaufszentrum <5.000m
Sonstige
Bank <1.000m
Geldautomat <1.000m
Post <1.000m
Polizei <1.000m
Verkehr
Bus <500m
Bahnhof <500m
Autobahnanschluss <3.000m
Straßenbahn <500m
Flughafen <4.500m
Angaben Entfernung Luftlinie / Quelle: OpenStreetMap
Eckdaten
| Kaufpreis: | 415.000,00 € |
| Fläche: | 363,00 m² |
Basisdaten zur Immobilie
| Objektnr: | 1495 |
| Art: | Grundstück |
| Land: | Österreich |
| Kaufpreis: | 415.000,00 € |
| Kaufpreis / m²: | 1.143,25 € |
| Provision: | 3% des Kaufpreises zzgl. 20% USt. |
| Grundstücksfl.: | 363,00 m² |
Internet und TV
Information zur Internet und TV Versorgung hier
Ihre persönliche Beratung
Emanuel Berger
Immolution GmbH
emb@immolution.at
0664/1958892
