NEUER PREIS! - 5-Zimmer-Wohnung - Homeoffice/Büro/Ordination möglich - 2 Eingänge - im attraktiven Wildgarten-Viertel - Provisionsfrei
Wohnung
,
1120
Wien
,
Lore-Kutschera-Weg 12
Beschreibung der Immobilie
Der Wildgarten ist ein modernes, vielseitiges Wohnquartier, das sowohl urbane und ländliche Qualitäten verbindet und für ein gemeinschaftliches Miteinander steht.
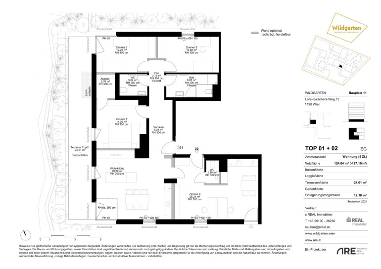
Hier befindet sich im Erdgeschoß diese ca. 124 m² große Wohnung, die über 2 Eingänge verfügt, und sich sehr gut für eine Kombination aus Wohnen und Arbeiten eignet. Eine ca. 24 m² große Terrasse lädt zum Entspannen ein.
Die Wohnung wird als Edelrohbau, wie Sie es auf den Fotos sehen, verkauft. Sie können daher die Fläche noch nach Ihren Wünschen und auf Ihre Kosten gestalten.
Auf dem Plan sehen Sie, wie die Unterteilung für eine 5-Zimmer-Wohnung aussehen könnte.
Die Sanitärbereiche sind zwar fertig und bestehen aus Bad mit Dusche und WC, und zwei weiteren WCs. Eventuell müssen Sie sie nach Ihren Wünschen noch adaptieren.
Die Anschlüsse für eine Air Condition sind vorhanden.
Was macht das attraktive Wohnen im Wildgarten aus?
Das autofreie Quartier verfügt über eine sehr vielseitige Bebauung sowie zahlreichen Grünflächen, Ruhe- und Begegnungszonen, Gemeinschaftsgärten mit Hochbeeten und Naschhecken und einem offenen Freiraumkonzept. Das Nachbarschaftszentrum bietet zusätzliche Indoor-Räumlichkeiten wie Büros, Veranstaltungsräume und einer Werkstatt. Zusätzlich gibt es im Wildgarten einen Co-Working Space, wo flexibel oder auch dauerhaft Arbeitsplätze gemietet werden können.
Das Infrastrukturangebot bietet derzeit einen Billa direkt im Wohnqaurtier sowie eine Pizzeria. Für alle jene, die ein Auto besitzen, können Tiefgaragenplätze in der Sammelgarage gemietet werden. Außenliegende Parkplätze stehen entlang des Quartiers zur Verfügung. Die öffentliche Anbindung ist durch die Buslinie 63A gewährleistet (Richtung U4 Meidling Hauptstraße und U6 Niederhofstraße). Ab vorauss. 2032 soll es eine neue S-Bahn Station in der Benyastraße geben.
Highlights Wildgarten
- autofreies Gelände
- Tiefgaragenplätze zur Miete
- Begegnungszonen, Gemeinschaftsgärten und Naschgärten
- Kindergarten und Spielplätze im Grünen
- Billa direkt am Gelände
- Fußbodenheizung
- provisionsfrei für Käufer:innen
Gerne präsentieren wir Ihnen den Wildgarten und die verfügbaren Wohnungen im Rahmen einer Besichtigung. Auch bei Fragen rund um die Finanzierung unterstützen wir Sie gerne und freuen uns über Ihre Anfrage!
Infrastruktur / Entfernungen
Gesundheit
Arzt <1.025m
Apotheke <825m
Klinik <1.500m
Krankenhaus <1.025m
Kinder & Schulen
Schule <575m
Kindergarten <250m
Universität <3.700m
Höhere Schule <3.500m
Nahversorgung
Supermarkt <300m
Bäckerei <500m
Einkaufszentrum <1.525m
Sonstige
Geldautomat <1.250m
Bank <1.275m
Post <1.475m
Polizei <1.500m
Verkehr
Bus <200m
U-Bahn <1.625m
Straßenbahn <1.325m
Bahnhof <1.375m
Autobahnanschluss <1.700m
Angaben Entfernung Luftlinie / Quelle: OpenStreetMap
Eckdaten
| Kaufpreis: | 459.000,00 € |
| Fläche: | 124,04 m² |
| Zimmer: | 5 |
Basisdaten zur Immobilie
| Objektnr: | 960/74662 |
| Art: | Wohnung |
| Land: | Österreich |
| Kaufpreis: | 459.000,00 € |
| Provision: | PROVISIONSFREI |
| Wohnfläche: | 124,04 m² |
| Zimmer: | 5 |
| Bäder: | 1 |
| WC: | 3 |
| Terrassen: | 1 |
| Keller: | 12,10 m² |
| Heizwärmebedarf: | B 26,73 kWh/m²a |
| fGEE: | A+ 0,67 |
Ausstattung
Personenaufzug, Dusche
Internet und TV
Information zur Internet und TV Versorgung hier
Ihre persönliche Beratung
Mag. Alexander Kepka
s REAL Immobilienvermittlung GmbH
alexander.kepka@sreal.at
+43 (0)5 0100 - 26330
+43 664 8181970
