Traum in Baden bei Wien - Reihenhaus am Mitterberg mit Garagenstellplatz
Haus
- Reiheneckhaus,
2500
Baden
Beschreibung der Immobilie
Der Mitterberg in Baden bei Wien gilt als eine der exklusivsten und gefragtesten Wohnlagen der Stadt, die für ihre ruhige Grünlage bei gleichzeitiger Nähe zum Stadtzentrum bekannt ist.
Im Stadtteil Mitterberg begeistert dieses Reihenhaus durch seine Südausrichtung in einer ruhigen Wohngegend.
Objektbeschreibung
Dieses Reihenhaus mit seiner Südausrichtung bietet ca. 131 m² Wohnfläche im Erd-, Ober- und Dachgeschoss und einem ca. 51 m² Kellergeschoss an und wurde 2004 erbaut.
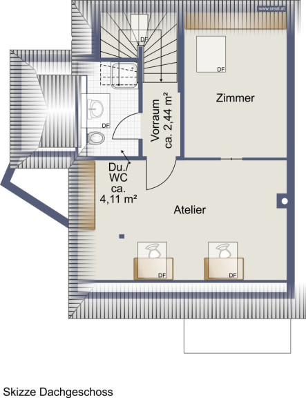
Die Räumlichkeiten des Erdgeschosses sind in ein großzügiges Wohn-Esszimmer mit Zugang in den Wintergarten (ca. 12 m²) und die Küche. Im Obergeschoss bieten 3 Zimmer, das Badezimmer und ein Balkon mit Blick in den vorderen Garten einen großartigen Grundriss an. Das Dachgeschoß inkludiert 2 Zimmer und 1 Badezimmer.
Das Kellergeschoß hat einen Wellnessbereich mit einer Sauna, Badewanne und Dusche im Badezimmer sowie zusätzlich großzügige Lagerräume auf.
Beheizt wird das Haus mittels einer Gasheizung und der Warmwasserboiler wird mittels Solaranlage beheizt.
Infrastruktur
In privilegierter Lage, knapp außerhalb des Zentrums von Baden befindet sich diese Liegenschaft am Mitterberg.
Die Bezirkshauptstadt Baden ist dank ihrer herausragenden Infrastruktur und ihres Charmes nicht nur ein dynamischer Treffpunkt für nationale und internationale Besucher, sondern auch, insbesondere dank des kürzlich erlangten Status als UNESCO-Weltkulturerbe, eine touristische Pflichtstation.
Die perfekte Infrastruktur und die mondäne Fußgängerzone mit zahlreichen renommierten Geschäften und Lokalen machen Baden zu einer bedeutenden und beliebten Einkaufsstadt, die sich auch durch seine verkehrsgünstige Lage - einerseits durch gute Bus- und Bahnverbindungen (Südbahn, Badener-Bahn) und andererseits durch die Autobahnnähe - auszeichnet.
Entspannung beim Besuch eines der vielen bekannten Heurigen, unzählige Ausflugs- und
Wandermöglichkeiten in die Umgebung sowie ein breit gefächertes und abwechslungsreiches
Kulturprogramm, das für jeden Geschmack das Richtige bereithält, bieten hohe Lebensqualität. Als Kurstadt aber auch in Sachen Lifestyle hat Baden einiges zu bieten und ist weit über seine Stadtgrenzen hinaus bekannt.
Fußläufig gelangen Sie zum Badener Innenstadt in 15 Minuten und vom Bahnhof Baden gibt es sehr gute Anbindungen nach Wien. Eine Bushaltestelle vis-a-vis ermöglicht eine bequeme und schnelle Fahrt in das Zentrum Badens.
Mit dem Auto erreichen Sie in wenigen Minuten die Südautobahn A2, in ca. 30 Minuten die Stadtgrenze Wiens und den Flughafen Wien Schwechat in ca. 35 Minuten.
Habe ich Ihr Interesse geweckt? Dann vereinbaren Sie noch heute einen Besichtigungstermin und überzeugen Sie sich von diesem großartigen Angebot.
Machen Sie sich einen guten Überblick mit dem 360° Rundgang: https://app.immoviewer.com/portal/tour/3142449?accessKey=6948
Viele weitere Rundgänge, so wie alle neuen s REAL-Immobilienangebote finden Sie auf www.sreal.at.
Kauf und Finanzierung aus einer Hand – nutzen Sie die Synergien der Erste Bank & Sparkassen-Unternehmensgruppe. Gerne arrangieren wir für Sie ein unverbindliches Finanzierungsgespräch mit den Finanzierungsspezialisten der Erste Bank & Sparkasse.
Bei einem Abschluss für eine Finanzierung oder eine Veranlagung belohnt s REAL Sie mit einer Gutschrift über € 300,-
Unsere Angaben beziehen sich auf die Auskünfte des Eigentümers. Angebot freibleibend und vorbehaltlich Irrtum und Zwischenverkauf.
Infrastruktur / Entfernungen
Gesundheit
Arzt <1.000m
Apotheke <1.500m
Klinik <1.000m
Krankenhaus <3.000m
Kinder & Schulen
Schule <1.000m
Kindergarten <1.000m
Höhere Schule <8.500m
Universität <8.500m
Nahversorgung
Supermarkt <1.500m
Bäckerei <500m
Einkaufszentrum <6.500m
Sonstige
Bank <1.000m
Geldautomat <1.000m
Post <1.000m
Polizei <2.000m
Verkehr
Bus <500m
Bahnhof <1.500m
Autobahnanschluss <4.500m
Straßenbahn <1.500m
Flughafen <6.000m
Angaben Entfernung Luftlinie / Quelle: OpenStreetMap
Eckdaten
| Kaufpreis: | 680.000,00 € |
| Fläche: | 131,00 m² |
| Zimmer: | 6 |
Basisdaten zur Immobilie
| Objektnr: | 960/74446 |
| Art: | Haus - Reiheneckhaus |
| Land: | Österreich |
| Baujahr: | 2004 |
| Zustand: | Gepflegt |
| Möbliert: | Teil |
| Alter: | Neubau |
| Kaufpreis: | 680.000,00 € |
| Provision: | 3% des Kaufpreises zzgl. 20% USt. |
| Betriebskosten: | 195,45 € |
| MwSt Gesamt: | 19,55 € |
| Wohnfläche: | 131,00 m² |
| Zimmer: | 6 |
| Bäder: | 3 |
| WC: | 3 |
| Balkone: | 1 |
| Terrassen: | 1 |
| Stellplätze: | 1 |
| Garten: | 205,00 m² |
| Keller: | 51,00 m² |
| Heizwärmebedarf: | C 56,80 kWh/m²a |
| fGEE: | B 0,85 |
Ausstattung
Fliesen, Laminatboden, Gas, Etagenheizung, Einbauküche, Südbalkon, Bad mit Fenster, Badewanne, Dusche, Garage, Sauna
Internet und TV
Information zur Internet und TV Versorgung hier
Ihre persönliche Beratung
Karl Fröschl
s REAL Immobilienvermittlung GmbH
karl.froeschl@sreal.at
+43 (0)5 0100 - 26340
+43 664 88544117
