Immobilie merken

Exklusive Dachgeschosswohnung mit großzügiger Dachterrasse!

Wohnung - Dachgeschoß, 3100 St. Pölten

Lage der Immobilie

Autobahnnähe, Bahnhofsnähe, öffentl. Verkehrsmittel, Zentrum

Beschreibung der Immobilie

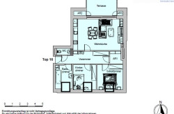
Exklusive Dachgeschosswohnung mit großzügiger Dachterrasse! KURZBESCHREIBUNG: sehr gute öffentliche Verkehrsanbindung, hervorragende Individualverkehrsanbindung, Einkaufsmöglichkeiten und Infrastruktur im nahen Umkreis, Generalsanierung 2019; DETAILBESCHREIBUNG: Lage: Das Wohnhaus befindet sich direkt im Zentrum von St.Pölten. Besonders erwähnenswert ist die ausgezeichnete Verkehrsanbindung. Sowohl in öffentlicher als auch privater Hinsicht ist die Wohnung sehr gut gelegen. Diese gute Lage spiegelt sich auch auf den Bereich Infrastruktur und Einkaufsmöglichkeiten wieder. Keine 2 Minuten Gehzeit entfernt befindet sich der St.Pöltner Hauptbahnhof und auch diverse Einkaufsmöglichkeiten befinden sich nur wenige Meter entfernt. Beschreibung/Raumaufteilung: Das gesamte Gebäude wurde 2019 generalsaniert, in den Wohnräumen wurde durchgehend hochwertiger Parkettboden verlegt, beziehungsweise der vorhandene Boden neu aufbereitet. Das Badezimmer, sowie das WC wurden neu verfliest und verfügen über eine hochwertige Sanitärausstattung. Desweiteren sind sämtliche Wohnungen mit modernen Einbauküchen ausgestattet. Die im DG befindliche Mietwohnung weist eine Gesamtnutzfläche von ca. 72,25 m² auf und gliedert sich wie folgt: Vorraum, zwei Schlafzimmer, Wohnküche, Badezimmer, Terrasse, Abstellraum und WC. Parkmöglichkeiten: Es besteht die Möglichkeit einen Parkplatz (je nach Verfügbarkeit) in der hauseigenen Tiefgarage um EUR 79,80 (inkl. USt) anzumieten. Beheizung: Die Beheizung der Wohnung erfolgt mittels Fernwärme. Monatliche Kosten: Die monatliche Miete von EUR 1.094,01 versteht sich inklusive Betriebskosten und gesetzlicher Umsatzsteuer. Zudem ist ein Heizkosten- und Warmwasserakonto von monatlich EUR 90,09 zzgl. USt. vorgeschrieben. Die verbrauchsabhängigen Kosten für Strom werden direkt mit dem Energieversorgungsunternehmen verrechnet. Nebenkosten: Kaution diese ist spätestens bei Vertragsunterzeichnung zu erlegen. Vertragskonditionen: Der Mietvertrag wird auf einen Zeitraum von 5 Jahren befristet. Eine Kündigung seitens des Mieters ist frühestens nach Ablauf eines Jahres unter Einhaltung einer dreimonatigen Kündigungsfrist möglich. Verfügbarkeit: Das Objekt steht ab sofort zur Verfügung. Besichtigung: Eine Besichtigung ist nach vorheriger Terminvereinbarung selbstverständlich möglich. Energiekennzahl: Die Liegenschaft besitzt die Kennzahl A bei einem Heizwärmebedarf (HWB) von 24,30 kWh/m² und einem Gesamt-Energieeffizienz-Faktor (fGEE) von 0,78. Hinweis auf Naheverhältnis: Wir weisen darauf hin, dass zum Vermieter ein wirtschaftliches Naheverhältnis besteht (wiederholte Beauftragungen). Gerne stehen wir Ihnen für etwaige Auskünfte oder zur Vereinbarung eines Besichtigungstermins zu Verfügung. Objektnummer: 6984 Halten Sie bitte bei telefonischen Auskünften diese Objektnummer bereit. Wir ersuchen aus organisatorischen Gründen (Datenbankpflege) und aufgrund unserer Nachweispflicht gegenüber dem Abgeber um vollständige Angabe Ihrer Kontaktdaten einschließlich Vor- und Zuname, Adresse und Telefonnummer. Der Schutz Ihrer personenbezogenen Daten ist uns ein großes Anliegen. Wir verwenden Ihre Daten für die Interessenten- und Kundenverwaltung im Rahmen der Immobilienvermittlung (z.B. für die Zusendung von Immobilienangeboten). Die Rechtsgrundlage dafür bildet – sofern nicht eine gesetzliche Grundlage vorliegt – ein abgeschlossener Vertrag bzw. eine Vertragsanbahnung (Vermittlungsvertrag). Die Weitergabe personenbezogener Daten erfolgt ohne ausdrückliche separate Einwilligung nur insoweit, wie es für Vertragsabwicklungen erforderlich ist. Keinesfalls werden Ihre Daten zu Werbezwecken o.ä. weitergegeben. Unsere Mitarbeiter und unsere Dienstleistungsunternehmen sind zur Verschwiegenheit und zur Einhaltung der Datenschutzbestimmungen verpflichtet. Lesen Sie mehr in unserer Datenschutzerklärung auf unserer Homepage.

Eckdaten

Gesamtmiete: 1.094,01 €
Fläche: 72,25 m²
Zimmer: 3

Basisdaten zur Immobilie

Objektnr: 202/06984
Art: Wohnung - Dachgeschoß
Land: Österreich
Gesamtmiete: 1.094,01
Kaltmiete (netto): 700,00 €
Kaltmiete: 1.094,01 €
Wohnfläche: 72,25 m²
Zimmer: 3
Bäder: 1
WC: 1
Terrassen: 1
Heizwärmebedarf:  A  24,30 kWh/m²a
fGEE:  A  0,78

Ausstattung

Fernwärme, Zentralheizung, Personenaufzug



Internet und TV

Information zur Internet und TV Versorgung hier




Immobilie anfragen




Ihre persönliche Beratung

Realkanzlei Edlauer Immobilientreuhänder

Gregor LAMP

Realkanzlei Edlauer Immobilientreuhänder

g.lamp@edlauer.com

+43/2742/35243854

+43/660/507 90 96

F +43/2742/352438 - 3


Realkanzlei Edlauer Immobilientreuhänder - Immobilen Makler

Josefstraße 19, 3100 St. Pölten

+43/2742/352438-0

https://www.edlauer.com