KFZ Werkstatt im Industriegebiet Liesing
Halle / Lager / Produktion
- Werkstatt,
1230
Wien
Lage der Immobilie
Lage und Infrastruktur: Das Industriezentrum Liesing zählt zu den wichtigsten Wirtschaftsstandorten im Süden Wiens. Die Werkstatt ist sowohl mit dem Auto als auch öffentlich optimal erreichbar (Anbindung an A2, A23, S1, B17 Buslinien in der Nähe). In unmittelbarer Umgebung befinden sich zahlreiche Gewerbebetriebe, Zulieferer und potenzielle Geschäftspartner.Beschreibung der Immobilie
Objektbeschreibung:
Zur Vermietung gelangt eine voll ausgestattete KFZ-Werkstatt im begehrten Industriezentrum Wien Liesing. Die Immobilie bietet ideale Voraussetzungen für den sofortigen Start oder die Erweiterung eines bestehenden KFZ-Betriebs. Die Werkstatt befindet sich in einem etablierten Gewerbegebiet mit hervorragender Infrastruktur und ausgezeichneter Verkehrsanbindung.
Highlights der Immobilie:
Top-Lage im Industriezentrum Wien Liesing
Gute Sichtbarkeit und frequentierte Umgebung
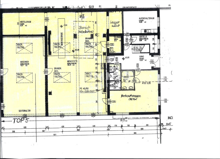
Ca. 540 m² Nutzfläche
Mehrere Einfahrtstore, auch für LKW geeignet
Hebebühnen und Werkstatteinrichtung (optional – je nach Vereinbarung)
Lackierhalle am Gelände vorhanden
Sanitär- und Sozialräume vorhanden
Verkaufsflächen integriert
10 Parkplätze auf Eigengrund
Mietkonditionen:
Miete: 9.000.- netto
Betriebskosten: 500.- netto
Kaution: 3 Brutto Monatsmieten
Verfügbar ab: Sofort
Besichtigung und Kontakt:
Überzeugen Sie sich selbst von dieser attraktiven Gewerbeimmobilie. Gerne stehen wir für eine persönliche Besichtigung zur Verfügung.
Herr Martin MELCHER 0677 617 324 39
Der Vermittler ist als Doppelmakler tätig.
Infrastruktur / Entfernungen
Gesundheit
Arzt <1.500m
Apotheke <1.000m
Klinik <1.500m
Krankenhaus <2.500m
Kinder & Schulen
Schule <1.500m
Kindergarten <500m
Universität <3.500m
Höhere Schule <4.500m
Nahversorgung
Supermarkt <500m
Bäckerei <2.000m
Einkaufszentrum <1.000m
Sonstige
Geldautomat <1.000m
Bank <1.000m
Post <500m
Polizei <1.500m
Verkehr
Bus <500m
U-Bahn <2.500m
Straßenbahn <2.000m
Bahnhof <1.500m
Autobahnanschluss <1.000m
Angaben Entfernung Luftlinie / Quelle: OpenStreetMap
Eckdaten
| Kaltmiete (netto): | 9.000,00 € |
Basisdaten zur Immobilie
| Objektnr: | 1939/131573 |
| Art: | Halle / Lager / Produktion - Werkstatt |
| Land: | Österreich |
| Baujahr: | 1990 |
| Zustand: | Gepflegt |
| Kaltmiete (netto): | 9.000,00 € |
| Kaltmiete: | 9.500,00 € |
| Provision: | 3 Bruttomonatsmieten zzgl. 20% USt. |
| Betriebskosten: | 500,00 € |
| MwSt Gesamt: | 1.900,00 € |
| Heizwärmebedarf: | D 114,00 kWh/m²a |
| fGEE: | D 1,65 |
Ausstattung
Hebebühne
Internet und TV
Information zur Internet und TV Versorgung hier
Ihre persönliche Beratung
Martin Melcher
IMMOcontract Immobilien Vermittlung GmbH
M.Melcher@IMMOcontract.at
+43 677 6173 2439
+43 677 6173 2439
