8355: Große Liegenschaft: ehem. Seniorenwohnheim + Wohnhaus + Wohnungen - mit viel Potenzial und großem Grund zu einem fairen Preis in sonniger Ruhelage
Haus
- Mehrfamilienhaus,
8355
Tieschen
Lage der Immobilie
ruhige sonnige Lage im Südoststeirischen Thermen- & Vulkanland mit herrlicher Aussicht auf den KönigsbergBeschreibung der Immobilie
W1 – ehemaliges Seniorenwohnheim mit ca. 379,07 m2 Wohnnutzfläche + extra Wohneinheit mit ca. 82,73 m2 Wohnfläche
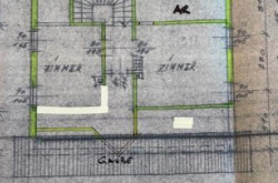
Dieser Teil wurde zwischen 1980 und 2004 errichtet bzw. erweitert und umgebaut. Das behinderten- und rollstuhlgerechte Heim unterteilt sich u.a. in Aufenthaltsraum, Pflegeraum, Gemeinschaftsraum, Küche mit Speis/Lager, Waschraum und Stadions Bad, Gang und Windfang, sowie 7 Doppelzimmer mit eigenem Nassbereich und einem Einzelzimmer mit eigenem Nassbereich.
Die Wohnung besteht aus Vorraum, Bad und WC, teilweise offene Küche, einem Wohn-/Essbereich und 2 Zimmern.
W2 – gemütliche Dachgeschosswohnung mit ca. 97,58 m2 Wohnfläche + Loggia mit ca. 16,80 m2
Diese neuwertige Einheit wurde 2004 errichtet und bisher als Feriendomizil genutzt. Sie teilt sich in Windfang, Vorraum, Gäste WC, Badezimmer, Schlafzimmer mit Schrankraum, Büro oder Zimmer, offene Küche mit Wohn- und Essbereich mit direktem Zugang auf die Loggia mit Fernblick auf den Königsberg.
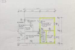
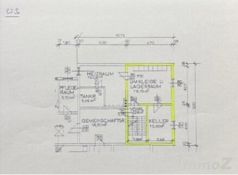
W3 – beziehbares Wohnhaus mit ca. 123 m2 Wohnfläche
Diese Einheit wurde 1968 errichtet und laufend saniert. Im Kellergeschoss gehören 2 große Räume Ihnen (durch den Heizraum ebenerdig zu begehen). Im Erdgeschoss befinden sich der Vorraum, die Küche mit Essbereich, Bad und WC, ein großes Wohnzimmer und das Schlafzimmer. Im Dachgeschoss befinden sich 2 weitere Schlafzimmer mit Stauraum.
Neben der Terrasse beim Eingangsbereich gehören auch ein Carport, ein eigener Garten mit ca. 193 m2 und die riesige Veranda zum Angebot.
Im allgemeinen Teil (Durchfahrt – Garage und Kellerräumlichkeiten; ebenfalls ebenerdig befahr- bzw. begehbar) gibt es auch noch entsprechenden Lagerraum.
Allgemeiner Teil
Zufahrten und Wege
Durchfahrt – Garage und Kellerräumlichkeiten (ebenerdig)
Heiz- und Tankraum (Öl Zentralheizung und Solaranlage)
Potential und Vorteile:
Der jetzige Bestand bietet Ihnen sehr viele Möglichkeiten. Nicht außer Acht zu lassen ist auch die bestehende, unverbaute Grundfläche (Bauland „WA“ mit einer Dichte von 0,2 bis 0,5).
Da einige Umbau und Adaptierungsarbeiten notwendig sind bzw. sein werden und die Liegenschaft in seinem aktuellen Zustand verkauft wird, haben Sie hier ein wahrliches Schnäppchen gefunden.
Lage und Infrastruktur:
In der näheren Umgebung befinden sich einige namhafte Winzer, gemütliche Buschenschänken, einige Golfanlagen, mehrere Thermen, herrliche Rad-/Wander- und Reitwege und vieles vieles mehr; einfach ein herrliches Platzerl in der Genussregion Steiermark mit vielen Sonnenstunden im Vulkanland.
Die nächsten größeren Städte, die eine sehr gute Infrastruktur aufweisen sind u.a. Bad Radkersburg (ca. 15 km), Bad Gleichenberg (ca. 12 km) und Leibnitz (ca. 25 km). Die Landeshauptstadt Graz ist in etwa ca. 77 km entfernt.
Für weitere Informationen und einer gemeinsamen Besichtigung stehe ich Ihnen sehr gerne zur Verfügung, ich freue mich auf Ihre Kontaktaufnahme.
Eckdaten
| Kaufpreis: | 695.000,00 € |
| Fläche: | 681,92 m² |
| Zimmer: | 22 |
Basisdaten zur Immobilie
| Objektnr: | O2100167864 |
| Art: | Haus - Mehrfamilienhaus |
| Land: | Österreich |
| Baujahr: | 1968 |
| Zustand: | Teil_vollrenoviert |
| Möbliert: | Teil |
| Alter: | Neubau |
| Kaufpreis: | 695.000,00 € |
| Provision: | 3 % zzgl. 20% MwSt. vom Gesamtkaufpreis |
| Wohnfläche: | 681,92 m² |
| Grundstücksfl.: | 5.683,00 m² |
| Gesamtfläche: | 814,00 m² |
| Lagerfläche: | 8,00 m² |
| Zimmer: | 22 |
| Bäder: | 12 |
| WC: | 4 |
| Balkone: | 1 |
| Terrassen: | 3 |
| Stellplätze: | 8 |
| Garten: | 4.783,90 m² |
| Keller: | 80,00 m² |
| Heizwärmebedarf: | D 125,00 kWh/m²a |
| fGEE: | G 4,15 |
Ausstattung
Kunststoffboden, Öl, Zentralheizung, Einbauküche, Kabel/Satelliten-TV, Garage
Internet und TV
Information zur Internet und TV Versorgung hier
Ihre persönliche Beratung
Walter Scheucher
Steindorff Immobilien GmbH
scheucher@steindorff.at
+43 664 18 41 617
