Beschreibung der Immobilie
Zum Verkauf steht ein gepflegtes Einfamilienhaus in ruhiger Lage von Pöchlarn mit durchdachter Raumaufteilung, moderner Haustechnik und großzügigem Grundstück.
Eckdaten:
- Wohnfläche: ca. 154 m²
- Grundfläche: ca. 971 m²
- Baujahr: 2010
- Bauweise: Holzriegelbauweise
- Fassade: Lärchenfassade, waagrechte Verschalung
- Fenster: 3-fach verglaste Holz-Alu-Fenster
- Beschattung: Südseitig Raffstore, übrige Fenster mit Rollläden
Raum & Ausstattung:
Das Haus überzeugt durch helle, freundliche Wohnräume und eine familiengerechte Raumaufteilung. Die hochwertige Holzriegelbauweise sorgt für ein angenehmes Raumklima und hervorragende Dämmwerte.
- Wohnraumlüftung (ohne Kühlung) für kontrollierten Luftaustausch
- Angebauter Abstellraum
- Überdachter Abstellplatz (Carport)
- Gartenhaus mit zusätzlichem Stauraum
Raumaufteilung:
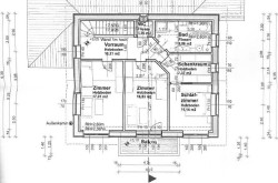
Erdgeschoss:
- Vorraum
- Technikraum
- Büro
- offene Küche mit Wohn- und Essbereich und Ausgang zur südseitigen Terrasse
- Bad/WC
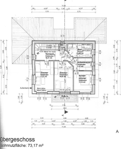
Obergeschoss:
- Vorraum
- 3 Zimmer
- Schrankraum
- Bad
- WC
- Balkon
Energie & Technik
Das Haus ist mit moderner und nachhaltiger Haustechnik ausgestattet:
- Erdwärmeheizung mittels Flächenkollektoren
- Solaranlage mit ca. 10 m²
- Energieeffiziente 3-fach-Verglasung
- Kabelplus-Anschluss vorhanden
Die Kombination aus Erdwärme und Solaranlage sorgt für niedrige Betriebskosten und zukunftssichere Energieversorgung.
Außenbereich
Das großzügige Grundstück mit ca. 971 m² bietet viel Platz für Gartenliebhaber, Familien oder individuelle Gestaltungsmöglichkeiten. Der gepflegte Garten sowie das separate Gartenhaus runden das attraktive Gesamtbild dieser Immobilie ab.
Dieses Einfamilienhaus vereint nachhaltige Bauweise, moderne Technik und großzügiges Wohnen in angenehmer Lage von Pöchlarn. Ideal für Familien oder Paare, die Wert auf Qualität, Energieeffizienz und ein ruhiges Wohnumfeld legen.
Infrastruktur / Entfernungen
Gesundheit
Arzt <500m
Apotheke <500m
Krankenhaus <10.000m
Kinder & Schulen
Schule <500m
Kindergarten <500m
Universität <9.500m
Nahversorgung
Supermarkt <500m
Bäckerei <500m
Einkaufszentrum <4.000m
Sonstige
Bank <500m
Geldautomat <500m
Post <500m
Polizei <500m
Verkehr
Bus <500m
Autobahnanschluss <2.000m
Bahnhof <1.000m
Angaben Entfernung Luftlinie / Quelle: OpenStreetMap
Eckdaten
| Kaufpreis: | 469.000,00 € |
| Fläche: | 154,02 m² |
| Zimmer: | 5 |
Basisdaten zur Immobilie
| Objektnr: | 960/74725 |
| Art: | Haus - Einfamilienhaus |
| Land: | Österreich |
| Baujahr: | 2010 |
| Alter: | Neubau |
| Kaufpreis: | 469.000,00 € |
| Provision: | 3% des Kaufpreises zzgl. 20% USt. |
| Wohnfläche: | 154,02 m² |
| Grundstücksfl.: | 971,00 m² |
| Zimmer: | 5 |
| Bäder: | 2 |
| WC: | 2 |
| Balkone: | 1 |
| Terrassen: | 1 |
| Stellplätze: | 2 |
| Garten: | 836,00 m² |
| Heizwärmebedarf: | B 29,70 kWh/m²a |
| fGEE: | A++ 0,39 |
Ausstattung
Erdwärme, Fußbodenheizung, Carport
Internet und TV
Information zur Internet und TV Versorgung hier
Ihre persönliche Beratung
Ing. Andres SCHATZ
s REAL Immobilienvermittlung GmbH
andres.schatz@sreal.at
+43 676 5635992
+43 676 5635992
