Provisionsfreier Erstbezug_ Ihre moderne Terrassenwohnung in Simmering
Wohnung
,
1110
Wien
,
Studenygasse 16
Lage der Immobilie
Die stadtrandnahe Lage garantiert eine ruhige Wohnatmosphäre bei gleichzeitig sehr guter öffentlicher Anbindung — das Stadtzentrum ist gut erreichbar . Zahlreiche tägliche Versorgungsmöglichkeiten und Einrichtungen befinden sich in fußläufiger Nähe. Für Freizeit und Erholung bieten sich vielfältige Optionen: Vor der Türe liegt der Seeschlachtpark, Badespaß findet man im Simmeringer Bad, nostalgischen Vergnügungscharme im Böhmischen Prater sowie ein umfangreiches Einkaufs‑ und Freizeiterlebnis im Huma Eleven. Entfernungen zu öffentlichen Verkehrsmitteln: U-Bahn- Station U3 Simmering etwa 700m S-Bahn S80 Simmering etwa 700m Buslinien 69a und 72a etwa 200 bis 300m Straßenbahnlininien 11 und 71 etwa 450mBeschreibung der Immobilie
Ihr neues Zuhause in Simmering — modern, ruhig, provisionsfrei
Im lebendigen Wiener Bezirk Simmering entsteht ein zeitgemäßes Wohnbauprojekt mit 82 freifinanzierten Eigentumswohnungen — provisionsfrei für Käufer. Das fünfgeschossige Gebäude bietet durchdachte 2‑ und 3‑Zimmer‑Einheiten mit Wohnflächen von ca. 39 bis 62 m². Jede Wohnung verfügt über eine private Freifläche (Loggia, Balkon, Terrasse oder Eigengarten) und eröffnet so zusätzlichen persönlichen Außenraum für Erholung und Alltag.
Benötigen Sie mehr Platz, berät Sie unser Vertriebsteam gern: Auf Wunsch lassen sich benachbarte 2‑Zimmer‑Einheiten verbinden oder übereinanderliegende Wohnungen zu einer Maisonette (z. B. 4 Zimmer) zusammenlegen.
Alle Einheiten werden schlüsselfertig übergeben — Sanitärinstallationen, Fliesen und Parkett sind im Kaufpreis enthalten. Genauere Angaben zur Ausstattung entnehmen Sie bitte der Leistungsbeschreibung im Booklet.
Ihr Vorteil: Provisonsfrei kaufen! Sparen Sie 3,6% Provsionsgebühr incl. USt
Das Projekt im Überblick
- 82 freifinanzierte, provisionsfreie Eigentumswohnungen (ca. 39–62 m²)
- 2‑ und 3‑Zimmer‑Grundrisse
- Jede Wohnung mit privater Freifläche (Loggia, Balkon, Terrasse, Eigengarten)
- Möglichkeit zur Zusammenlegung von Einheiten (Maisonette/Verbundlösungen)
- 37 PKW‑Stellplätze in der hauseigenen Tiefgarage
- Schlüsselfertige Übergabe (inkl. Sanitär, Fliesen, Parkett)
- Ruhige stadtrandnahe Lage mit guter öffentlicher Anbindung
Ausstattungshighlights
- Eichenparkettböden
- Heizsystem: Luft-Wasser-Wärmepumpen (oder gleichwertiges System)
- Fußbodenheizung
- Schallschutzfenster
-
Außenliegender Sonnenschutz
Lage
Die stadtrandnahe Lage garantiert eine ruhige Wohnatmosphäre bei gleichzeitig sehr guter öffentlicher Anbindung — das Stadtzentrum ist gut erreichbar . Zahlreiche tägliche Versorgungsmöglichkeiten und Einrichtungen befinden sich in fußläufiger Nähe. Für Freizeit und Erholung bieten sich vielfältige Optionen: Vor der Türe liegt der Seeschlachtpark, Badespaß findet man im Simmeringer Bad, nostalgischen Vergnügungscharme im Böhmischen Prater sowie ein umfangreiches Einkaufs‑ und Freizeiterlebnis im Huma Eleven.
Entfernungen zu öffentlichen Verkehrsmitteln:
- U-Bahn- Station U3 Simmering etwa 700m
- S-Bahn S80 Simmering etwa 700m
- Buslinien 69a und 72a etwa 200 bis 300m
- Straßenbahnlininien 11 und 71 etwa 450m
Renderings: Symbolbilder (c) bildraum.at / IC-KI Visualisierungen
Wir weisen darauf hin, dass zwischen dem Vermittler und dem zu vermittelnden Dritten ein familiäres oder wirtschaftliches Naheverhältnis besteht.
Der Vermittler ist als Doppelmakler tätig.
Infrastruktur / Entfernungen
Gesundheit
Arzt <475m
Apotheke <325m
Klinik <2.275m
Krankenhaus <3.950m
Kinder & Schulen
Schule <175m
Kindergarten <475m
Universität <2.900m
Höhere Schule <3.125m
Nahversorgung
Supermarkt <50m
Bäckerei <350m
Einkaufszentrum <1.275m
Sonstige
Geldautomat <525m
Bank <525m
Post <500m
Polizei <500m
Verkehr
Bus <175m
U-Bahn <650m
Straßenbahn <475m
Bahnhof <700m
Autobahnanschluss <1.925m
Angaben Entfernung Luftlinie / Quelle: OpenStreetMap
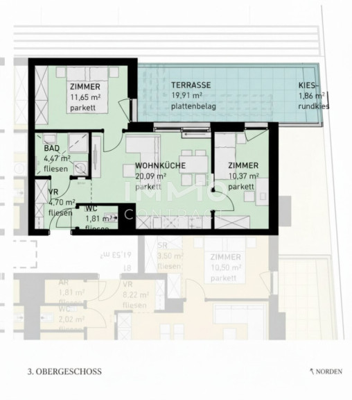
Eckdaten
| Kaufpreis: | 369.500,00 € |
| Fläche: | 53,09 m² |
| Zimmer: | 3 |
Basisdaten zur Immobilie
| Objektnr: | 1939/216446 |
| Art: | Wohnung |
| Land: | Österreich |
| Zustand: | Erstbezug |
| Alter: | Neubau |
| Kaufpreis: | 369.500,00 € |
| Provision: | provisionsfrei |
| Wohnfläche: | 53,09 m² |
| Nutzfläche: | 53,09 m² |
| Gesamtfläche: | 58,53 m² |
| Zimmer: | 3 |
| Terrassen: | 1 |
| Keller: | 2,32 m² |
| Heizwärmebedarf: | B 30,30 kWh/m²a |
| fGEE: | A 0,75 |
Ausstattung
Parkett, Fliesen, Fußbodenheizung, Wohnküche / offene Küche, Personenaufzug, Tiefgarage
Internet und TV
Information zur Internet und TV Versorgung hier
Ihre persönliche Beratung
Ahmed Hassan
IMMOcontract Immobilien Vermittlung GmbH
A.Hassan@IMMOcontract.at
+43 699 12545439
