Immobilie merken

*** Neubau *** Attraktive Geschäftsflächen vis á vis vom Bezirksgericht in Klagenfurt

Büro / Praxis , 9020 Klagenfurt am Wörthersee

Lage der Immobilie

ideale verkehrsgünstige, zentrumsnahe Lage, vis á vis vom Bezirksgericht und dem Schubertpark

Beschreibung der Immobilie

*** Neubau *** Geschäftsflächen in zentrumsnaher Lage von Klagenfurt

Diese – in einem Neubauprojekt – entstandenen Geschäftsflächen heben sich sowohl durch die gute Erreichbarkeit als auch die frequentierte Lage in unmittelbarer Innenstädtnähe hervor. Ausreichend  Schaufensterflächen hin zum begrünten Vorplatz können optimal für Werbemaßnahmen und Präsentationen genutzt werden. Die bauliche Ausführung im Erdgeschoss in Form von Arkaden lies eine kleine Geschäftsmeile“ entstehen, die durch einen Supermarkt sowie einen Gastronomiebetrieb zusätzliche Frequenz erhält.

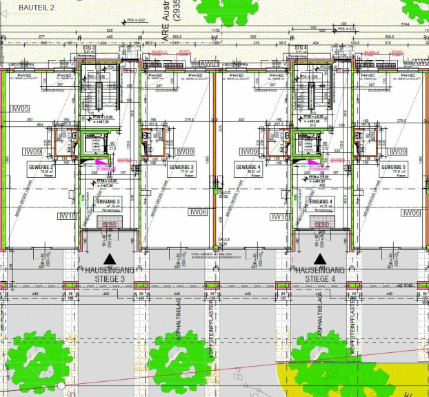
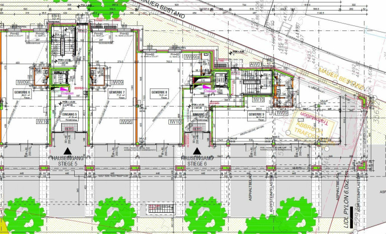
Es stehen Geschäftseinheiten mit Nutzflächen zwischen 73 und 117 m² zur Verfügung, die als offener Raum ausgeführt sind und somit optimal Voraussetzungen für die individuelle Nutzung gewähren.

Ausgestattet werden die Gewerbeflächen „belagsfertig“, d.h. Sie haben die Möglichkeit die Räumlichkeiten selbst zu gestalten.

Die lästige Parkplatzsuche entfällt, da Kunden die Möglichkeit zum bequemen Besuch unmittelbar vor den Geschäftsflächen haben.

Flächen:
10 Geschäfts- Gewerbeeinheiten zwischen rd. 73 m² und rd. 117 m² Nfl.
PKW-Freistellplätze + PKW-Stellplätze in der Tiefgarage

Geschäft 2:  80,59 m² Nfl.
Geschäft 3:  77,06 m² Nfl.
Geschäft 4:  80,22 m² Nfl.
Geschäft 5:  77,06 m² Nfl.
Geschäft 6:  80,22 m² Nfl.  -> Vermietet
Geschäft 7:  77,06 m² Nfl.  -> Vermietet
Geschäft 8:  73,29 m² Nfl.  -> Vermietet
Geschäft 9:112,70 m² Nfl.  -> Vermietet

Ausstattung:
- Sanitärbereiche und Anschlüsse für eine Teeküche
- ZH-Fernwärme // WW über ZH
- Elektro-Grundinstallation

Bezug: ab sofort

Mietkonditionen:
Miete: EUR 11,95 / m² (netto)
BK´s:  EUR   1,95 / m² (netto) zzgl. Heizung, Wasser, Strom
Ges.:  EUR 13,90 / m² (netto)

PKW-Stellplatz: EUR 50,- (netto) pro Monat

Kaution: 3 Bruttomonatsmieten

Vermittlungshonorar: 3 Bruttomonatsmieten zzgl. 20 % Mwst.

Allgemeiner Hinweis:
Aufgrund der Nachweispflicht gegenüber dem Eigentümer sowie in Entsprechung des FAGG (Fern- und Auswärtsgeschäfte-Gesetz) wird um Verständnis ersucht, dass nur Anfragen mit zumindest vollständigem Namen, E-Mailadresse und Telefonnummer bearbeitet werden. Ohne diese Angaben werden keine weiteren Auskünfte erteilt / keine Objektunterlagen übergeben.

Die angegebenen Daten stammen vom Eigentümer und/oder Dritten und wurden mit Sorgfalt erhoben. Für die Richtigkeit und Vollständigkeit kann jedoch keine Haftung übernommen werden. Zahlenangaben können gegebenenfalls gerundet oder geschätzt sein. Das Anbot ist freibleibend und unverbindlich. Irrtümer und Änderungen sind vorbehalten. Nachdruck/ Vervielfältigung nur mit Genehmigung der Firma Realitäten Perkonig Immobilientreuhand KG.

Eckdaten

Miete / m²: 11,95 €
Fläche: 81,00 m²

Basisdaten zur Immobilie

Objektnr: 6011
Art: Büro / Praxis
Land: Österreich
Baujahr: 2021
Zustand: Erstbezug
Miete / m²: 11,95 €
Provision: Provisionspflichtig, Vermittlungsprovision: 2 - 3 BMM (abhängig von der Mietvertragsdauer) zzgl. 20 % Mwst.
Nutzfläche: 81,00 m²
Heizwärmebedarf:  B  40,68 kWh/m²a
fGEE:  A+  0,60

Ausstattung

Zentralheizung, Fernwärme



Internet und TV

Information zur Internet und TV Versorgung hier




Immobilie anfragen




Ihre persönliche Beratung

Realitäten Perkonig Immobilientreuhand KG

Mag. Paul Perkonig

Realitäten Perkonig Immobilientreuhand KG

office@realitaeten-perkonig.at

+43 463 50 20 60 - 0

+43 664 342 75 20

F +43 463 50 20 60 - 15


Realitäten Perkonig Immobilientreuhand KG - Immobilen Makler

Villacher Straße 25 / 4, 9020 Klagenfurt am Wörthersee

+43 463 50 20 60 - 0

https://www.realitaeten-perkonig.at/