ANLEGER AUFGEPASST - Desselbrunn 121 (Top 7) - VERMIETET
Wohnung
,
4693
Desselbrunn
Beschreibung der Immobilie
Die Lage des Neubauprojektes in Desselbrunn besticht durch seine naturnahe Umgebung. Sie profitieren von einer ländlichen Wohngegend, die zu erholsamen Spaziergängen, Wanderungen und Radtouren einlädt. Dies macht Desselbrunn zu einem attraktiven Wohnort für Familien, Naturliebhaber und Menschen, die eine ausgeglichende Lebensweise schätzen.
Es entstand ein modernes dreigeschossiges Wohngebäude mit insgesamt 12 Wohnungen. Aufgrund der Hanglage präsentiert sich das Gebäude auf der Ostseite mit 3 Geschossen und auf der Westseite mit 2 Geschossen. Der Zugang zu den Wohnungen erfolgt bequem über die Westseite, wo Sie einen einladenden Eingangsbereich vorfinden.
Es kommen insgesamt 22 freie Stellplätze zur Ausführung, wobei jeweils 2 Stellplätze bereits im Kaufpreis inkludiert sind.
Die Beheizung der Wohnungen erfolgt umweltfreundlich und energieeffizient mittels Luft-Wärmepumpe. Dadurch wird nicht nur die Umwelt geschont, sondern auch Ihre Heizkosten reduziert. Eine komfortable Fußbodenheizung sorgt für wohlige Wärme und ein angenehmes Raumklima in den Wohnungen.
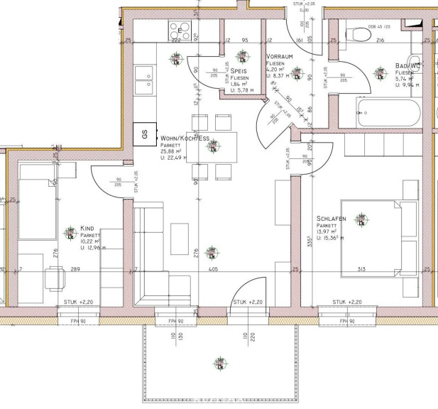
Mit den Wohnungsgrößen zwischen 61 und 91 m² ist für jeden Geschmack und Lebensstil das Passende dabei. Genießen Sie großzügige Wohnräume, moderne Bäder und Ausstattungsdetails, die zum Wohlfühlen einladen. Für erweiterten Stauraum sorgen die zugeordneten Abstellräume.
Top 7 ist bereits vermietet. Vermietungsdauer 3 Jahre. Nähere Auskünfte bzw. Kaufpreis für Vorsteuerabzugsberechtigte auf Anfrage!
Gerne zeige ich Ihnen dieses Neubauprojekt - ich freue mich auf Sie!
Infrastruktur / Entfernungen
Gesundheit
Arzt <2.000m
Apotheke <3.500m
Klinik <6.000m
Kinder & Schulen
Schule <3.000m
Kindergarten <3.000m
Höhere Schule <10.000m
Nahversorgung
Supermarkt <3.000m
Bäckerei <3.500m
Einkaufszentrum <8.500m
Sonstige
Bank <2.500m
Geldautomat <2.500m
Post <4.000m
Polizei <3.500m
Verkehr
Bus <500m
Bahnhof <3.500m
Autobahnanschluss <3.500m
Angaben Entfernung Luftlinie / Quelle: OpenStreetMap
Eckdaten
| Kaufpreis: | 264.000,00 € |
| Fläche: | 62,00 m² |
| Zimmer: | 3 |
Basisdaten zur Immobilie
| Objektnr: | 1068/4510 |
| Art: | Wohnung |
| Land: | Österreich |
| Baujahr: | 2023 |
| Zustand: | Erstbezug |
| Alter: | Neubau |
| Kaufpreis: | 264.000,00 € |
| Wohnfläche: | 62,00 m² |
| Zimmer: | 3 |
| Bäder: | 1 |
| WC: | 1 |
| Balkone: | 1 |
| Stellplätze: | 7 |
| Keller: | 3,01 m² |
| Heizwärmebedarf: | B 28,00 kWh/m²a |
| fGEE: | A+ 0,60 |
Ausstattung
Zentralheizung
Internet und TV
Information zur Internet und TV Versorgung hier
Ihre persönliche Beratung
Margit Haider
Traunsee Immobilien
m.haider@remax-traunsee.at
+43 7612 89 232
+43 699 16 89 23 20
F +43 7612 89 23230
