Das Penthouse in Altmünster - Haus am See - wenige Schritte zum See und ins Zentrum
Wohnung
,
4813
Altmünster
Beschreibung der Immobilie
In bester Lage von Altmünster präsentieren wir Ihnen ein hochwertiges Neubauprojekt, das fünf außergewöhnliche Eigentumswohnungen mit Tiefgarage vereint. Am Ackerweg 1 gelegen, bietet diese moderne Wohnanlage Komfort und Lebensqualität auf hohem Niveau.
Erstklassige Lage mit Anbindung: Diese elegante Wohnanlage profitiert von einer idealen Lage, die Ihnen das Beste von Altmünster bietet. Geschäfte des täglichen Bedarfs, Ärzte, Schulen und Kindergärten sind in wenigen Minuten zu Fuß erreichbar. Nur einen kurzen Spaziergang entfernt lockt die traumhafte Esplanade am Traunsee mit stilvollen Cafés und Restaurants. Die Umgebung lädt zu zahlreichen Freizeitaktivitäten wie Tennis, Wassersport und Wanderungen ein – ein idealer Ausgangspunkt für aktive und entspannte Stunden gleichermaßen.
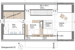
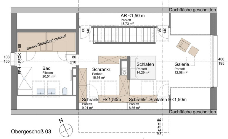
Hochwertige Architektur und durchdachte Raumplanung: Die moderne Architektur und die sorgfältige Bauweise sorgen für ein ansprechendes Wohngefühl, das sowohl ästhetische als auch funktionale Ansprüche erfüllt. Jede der barrierefreien Wohnungen zeichnet sich durch großzügige Raumkonzepte und gehobene Ausstattungsdetails aus. Große Fensterfronten lassen viel Licht in die Wohnungen und bieten herrliche Ausblicke auf den Traunsee und den Traunstein. Loggien, Balkone oder Terrassen laden dazu ein, diese atemberaubende Kulisse in vollen Zügen zu genießen.
Mit Wohnflächen von 42 m² bis 198 m² bieten die Wohnungen flexible Gestaltungsmöglichkeiten, die sich ideal an individuelle Bedürfnisse anpassen lassen. Außenbereiche wie private Gärten oder großzügige Terrassen schaffen zusätzlichen Raum für entspanntes Wohnen im Freien.
Modernste Technik für zeitgemäßes Wohnen: Das Projekt überzeugt nicht nur architektonisch, sondern auch durch modernste technische Ausstattung. Eine Luftwärmepumpe und Photovoltaikanlage sorgen für eine umweltfreundliche Energieversorgung. Die intelligente Haussteuerung von Loxone und ein Komfortlüftungssystem garantieren ein angenehmes Raumklima sowie maximale Benutzerfreundlichkeit.
Tiefgarage und Komfort: Die Wohnanlage bietet eine moderne Tiefgarage mit ausreichend Stellplätzen, die optional erworben werden können. So sind Ihre Fahrzeuge sicher und bequem untergebracht, während Sie die Vorzüge Ihrer neuen Wohnumgebung in vollen Zügen genießen können.
Lebensqualität im Herzen von Altmünster: Dieses Neubauprojekt bietet Ihnen die Möglichkeit, in einer der gefragtesten Lagen Altmünsters zu wohnen – in unmittelbarer Nähe zum Traunsee und gleichzeitig zentral gelegen. Hier trifft modernes Wohnen auf naturnahe Erholung. Sichern Sie sich eine der letzten verfügbaren Wohnungen und erleben Sie ein stilvolles Zuhause, das hohen Ansprüchen gerecht wird. Kontaktieren Sie uns gerne für weitere Informationen oder um einen persönlichen Besichtigungstermin zu vereinbaren.
Seit 01. Jänner 2021 gilt Altmünster als Vorbehaltsgebiet, aus diesem Grund ist die Begründung eines Freizeitwohnsitzes ausschließlich nach grundverkehrsbehördlicher Prüfung und Genehmigung möglich.
Projektseite: https://www.remax.at/de/pr-ackerweg
Infrastruktur / Entfernungen
Gesundheit
Arzt <500m
Apotheke <500m
Krankenhaus <2.000m
Klinik <2.000m
Kinder & Schulen
Schule <500m
Kindergarten <500m
Nahversorgung
Supermarkt <500m
Bäckerei <500m
Einkaufszentrum <3.500m
Sonstige
Bank <500m
Geldautomat <500m
Post <500m
Polizei <2.500m
Verkehr
Bus <500m
Straßenbahn <2.500m
Bahnhof <1.500m
Autobahnanschluss <6.500m
Flughafen <9.500m
Angaben Entfernung Luftlinie / Quelle: OpenStreetMap
Eckdaten
| Kaufpreis: | 2.586.000,00 € |
| Fläche: | 228,26 m² |
| Zimmer: | 4,50 |
Basisdaten zur Immobilie
| Objektnr: | 1068/4724 |
| Art: | Wohnung |
| Land: | Österreich |
| Baujahr: | 2024 |
| Zustand: | Erstbezug |
| Alter: | Neubau |
| Kaufpreis: | 2.586.000,00 € |
| Provision: | 3% des Kaufpreises zzgl. 20% USt. |
| Wohnfläche: | 228,26 m² |
| Zimmer: | 4,50 |
| Bäder: | 2 |
| WC: | 2 |
| Balkone: | 1 |
| Terrassen: | 1 |
| Keller: | 18,45 m² |
| Heizwärmebedarf: | B 42,50 kWh/m²a |
| fGEE: | A 0,72 |
Ausstattung
Zentralheizung, Personenaufzug, Kabel/Satelliten-TV
Internet und TV
Information zur Internet und TV Versorgung hier
Ihre persönliche Beratung
Sabine Wenzel
Traunsee Immobilien
s.wenzel@remax-traunsee.at
+43 7612 89 232
+43 676 300 40 62
F +43 7612 89 232-30
