Lage der Immobilie
Diese Wohnung in 2340 Mödling besticht durch ihre ideale Lage mit westlicher Ausrichtung. Nur wenige Gehminuten vom Zentrum entfernt, profitieren Sie von bester Infrastruktur: Ärzte, Apotheke, Klinik, Schulen, Kindergarten, Supermarkt, Bäckerei, Bank, Post, Polizei und Busverbindungen sind bequem erreichbar – perfekt für Ihren Alltag!Beschreibung der Immobilie
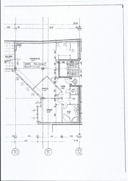
Perfekt geschnittene 3-Zimmer-Wohnung mit Balkon und vielen besonderen Details
Diese hervorragend geplante 3-Zimmer-Wohnung überzeugt durch ihre durchdachte Raumaufteilung und ihre besonders angenehme Wohnatmosphäre. Sämtliche Räume sind hofseitig ausgerichtet, wodurch die Wohnung nicht nur angenehm ruhig, sondern auch wunderbar hell und freundlich ist.
Das großzügige Wohnzimmer bildet das Herzstück der Wohnung und geht fließend in die offene Küche der Qualitätsmarke EWE über. Ein gemütlicher Schwedenofen sorgt hier zusätzlich für eine besonders behagliche Atmosphäre.
Das Badezimmer ist komfortabel ausgestattet und bietet sowohl eine Dusche als auch eine Badewanne.
Ein besonderes Detail findet sich im Schlafzimmer: Hier wurde ein maßgefertigtes Schrankbüro integriert, das eine praktische und zugleich elegante Lösung für Homeoffice oder Stauraum bietet.
Ein weiteres Highlight der Wohnung ist der wunderbare 11m² große Balkon. Er lädt sowohl zum entspannten Sonnenbaden ein als auch – dank teilweise angenehmer Beschattung – zum Verweilen an heißen Sommertagen.
Ein weiterer Pluspunkt: Ein Garagenplatz ist bereits im Kaufpreis inkludiert und macht dieses Angebot besonders attraktiv.
Die Betriebskosten von € 543,84 setzen sich zusammen aus: allg. Betriebskosten (Wohnung & Garage), Aufzug, Reparaturrücklage, extra Rücklage für Fassade & Garage
Infrastruktur / Entfernungen
Gesundheit
Arzt <500m
Apotheke <500m
Klinik <500m
Krankenhaus <1.500m
Kinder & Schulen
Schule <500m
Kindergarten <500m
Höhere Schule <1.000m
Nahversorgung
Supermarkt <1.000m
Bäckerei <1.000m
Einkaufszentrum <1.500m
Sonstige
Bank <500m
Geldautomat <500m
Post <500m
Polizei <1.000m
Verkehr
Bus <500m
U-Bahn <6.000m
Bahnhof <1.500m
Straßenbahn <4.500m
Autobahnanschluss <3.500m
Angaben Entfernung Luftlinie / Quelle: OpenStreetMap
Eckdaten
| Kaufpreis: | 455.000,00 € |
| Fläche: | 104,36 m² |
| Zimmer: | 3 |
Basisdaten zur Immobilie
| Objektnr: | 960/74749 |
| Art: | Wohnung |
| Land: | Österreich |
| Baujahr: | 1994 |
| Kaufpreis: | 455.000,00 € |
| Provision: | 3% des Kaufpreises zzgl. 20% USt. |
| Betriebskosten: | 543,84 € |
| Wohnfläche: | 104,36 m² |
| Nutzfläche: | 104,36 m² |
| Zimmer: | 3 |
| Bäder: | 1 |
| WC: | 2 |
| Balkone: | 1 |
| Heizwärmebedarf: | C 56,30 kWh/m²a |
| fGEE: | D 1,96 |
Ausstattung
Fliesen, Parkettboden, Fernwärme, Einbauküche, Wohnküche / offene Küche, Personenaufzug, Westbalkon, Badewanne, Dusche, Garage
Internet und TV
Information zur Internet und TV Versorgung hier
Ihre persönliche Beratung
Gunda Straub
s REAL Immobilienvermittlung GmbH
gunda.straub@sreal.at
+43 (0)5 0100 - 26229
+43 664 88899325
