Provisionsfrei! 2-Zi-EG-Wohnung mit Garten, Terrasse & U-Bahn-Nähe in 1220 Wien – Erstbezug!
Wohnung
,
1220
Wien
,
Wulzendorfstraße 101
Lage der Immobilie
Die Immobilie In Aspern, 1220 Wien, besticht durch ihre zentrale Lage mit hervorragender Infrastruktur. Ärzte, Apotheke und Klinik sind schnell erreichbar. Schulen, Kindergarten sowie Supermärkte und Bäckereien befinden sich in unmittelbarer Nähe. Bank, Post, Polizei sowie zahlreiche öffentliche Verkehrsmittel wie Bus, U-Bahn, Straßenbahn und Bahnhof garantieren optimale Anbindung und Komfort.Beschreibung der Immobilie
Ihr Zuhause Zwischen Stadt und Natur
Angrenzend an ein bestehendes Bauvorhaben erweitert das Projekt das Quartier um 80 freifinanzierte, provisionsfreie Eigentumswohnungen sowie 37 PKW-Tiefgaragenstellplätze. Die gut geplanten zwei und drei Zimmer Grundrisse mit Wohnflächen von ca. 34 bis 87 m² decken unterschiedliche Lebenssituationen ab und bieten praxisorientierte Raumaufteilungen. Jede Einheit verfügt über eine private Außenfläche – Loggia, Balkon, Terrasse oder Eigengarten – und schafft zusätzlichen Außenraum für Entspannung und Alltag.
Bei Bedarf an mehr Wohnfläche berät das Vertriebsteam gern: Auf Wunsch lassen sich übereinanderliegende Einheiten zu einer Maisonette (4 Zimmer) verbinden oder nebeneinanderliegende Wohnungen zu größeren Einheiten zusammenlegen. Für Eigentümer besteht optional die Möglichkeit eines eigenen Gartenabteils; alle Gartenflächen werden mit Strom und Wasseranschluss versehen.
Die schlüsselfertige Übergabe umfasst Sanitärinstallationen, Fliesen und Parkettböden, sodass ein bezugsfertiges Wohnen gewährleistet ist. Die Beheizung erfolgt über eine Fußbodenheizung; die Wärmeversorgung läuft energieeffizient mittels Luft Wasser Wärmepumpe. Ausführliche Ausstattungsinformationen finden Sie in der Leistungsbeschreibung im Booklet.
Das Projekt im Überblick
- 80 freifinanzierte, provisionsfreie Eigentumswohnungen
- Wohnflächen von ca. 34 m²– 87 m², 2-3 Zimmer
- Jede Wohnung mit privater Freifläche (Loggia, Balkon, Terrasse, Eigengarten)
- Option zur Zusammenlegung von Einheiten
- Optionales Gartenabteil mit Strom- und Wasseranschluss
- 37 PKW-Stellplätze in der hauseigenen Tiefgarage
- Beziehbar ab Juni 2028
Ausstattungshighlights
- Fußbodenheizung in allen Wohneinheiten
- Energieeffiziente Luft- Wasser- Wärmepumpe
- Schlüsselfertige Ausführung mit hochwertigen Parkettböden und Fliesen
- Moderne Sanitärinstallationen (inklusive im Kaufpreis)
- Fenster: Kunststofffenster mit Aluminium‑Deckschale, 3‑fach Wärme‑ und Schallschutzverglasung.
- Lüftung: Mechanische Abluft in Bad/WC mit Nachlauf; Küchenlüftung über nutzerseitige Umluft‑Dunstabzugshaube.
- Außenanlagen & Garten: Vorgärten, Wege, Spielplatz; Gärten mit Strom (230 V) und Wasseranschluss vorbereitet.
Lage
Diese Lage vereint das Beste aus zwei Welten: Maximale Zeitersparnis im Alltag und hochwertige Erholung direkt vor der Haustür.
Dank der exzellenten Infrastruktur erreichen Sie Nahversorger (Billa, 190 m) sowie Bildungs- und Gesundheitseinrichtungen bequem zu Fuß. Ein besonderes Plus für die Lebensqualität: Das Donauzentrum, Wiens größtes Shopping- und Entertainmentcenter, liegt in unmittelbarer Nähe und bietet unendliche Möglichkeiten für Einkaufstouren und Freizeitgestaltung. Auch die medizinische Versorgung ist durch das nahegelegene Donauspital (SMZ Ost) erstklassig abgesichert.
Die Freizeitqualität ist durch das Mühlwasser und den angrenzenden Nationalpark unschlagbar – ideal für Sport und Entspannung im Grünen. Gleichzeitig garantiert die perfekte Anbindung an die U2 sowie die Autobahnen eine schnelle Erreichbarkeit der Wiener Innenstadt und des Flughafens.
Fazit: Ein ideales Zuhause für alle, die kurze Wege, urbane Vielfalt und direkte Naturnähe schätzen.
Hinweis zum Kaufpreis: Es handelt sich um provisionsfreie Angebote für Käufer – Sie sparen die übliche Vermittlungsprovision in Höhe von 3,6 % (inkl. MwSt.).
Bei Interesse oder zur Vereinbarung eines Besichtigungstermins kontaktieren Sie mich gern jederzeit.
Renderings: Symbolic images (c) bildraum.at / IC-KI Visualisierungen
Wir weisen darauf hin, dass zwischen dem Vermittler und dem zu vermittelnden Dritten ein familiäres oder wirtschaftliches Naheverhältnis besteht.
Der Vermittler ist als Doppelmakler tätig.
Infrastruktur / Entfernungen
Gesundheit
Arzt <225m
Apotheke <725m
Klinik <825m
Krankenhaus <1.125m
Kinder & Schulen
Schule <450m
Kindergarten <250m
Universität <2.625m
Höhere Schule <2.525m
Nahversorgung
Supermarkt <125m
Bäckerei <650m
Einkaufszentrum <3.175m
Sonstige
Geldautomat <625m
Bank <700m
Post <675m
Polizei <500m
Verkehr
Bus <100m
U-Bahn <825m
Straßenbahn <500m
Bahnhof <975m
Autobahnanschluss <2.325m
Angaben Entfernung Luftlinie / Quelle: OpenStreetMap
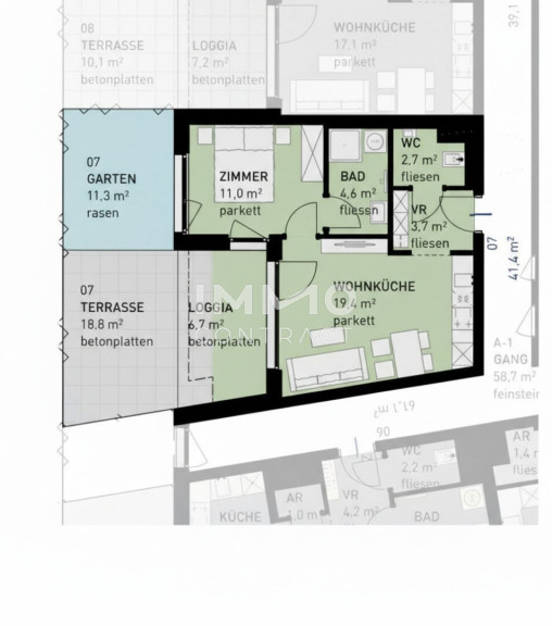
Eckdaten
| Kaufpreis: | 324.500,00 € |
| Fläche: | 41,40 m² |
| Zimmer: | 2 |
Basisdaten zur Immobilie
| Objektnr: | 1939/216017 |
| Art: | Wohnung |
| Land: | Österreich |
| Baujahr: | 2026 |
| Zustand: | Erstbezug |
| Alter: | Neubau |
| Kaufpreis: | 324.500,00 € |
| Provision: | Provisionsfrei |
| Wohnfläche: | 41,40 m² |
| Nutzfläche: | 41,40 m² |
| Gesamtfläche: | 53,68 m² |
| Zimmer: | 2 |
| Terrassen: | 1 |
| Garten: | 11,30 m² |
| Keller: | 2,80 m² |
| Heizwärmebedarf: | B 34,30 kWh/m²a |
| fGEE: | A 0,74 |
Ausstattung
Estrichboden, Fußbodenheizung, Wohnküche / offene Küche, Personenaufzug, Tiefgarage
Internet und TV
Information zur Internet und TV Versorgung hier
Ihre persönliche Beratung
Ahmed Hassan
IMMOcontract Immobilien Vermittlung GmbH
A.Hassan@IMMOcontract.at
+43 699 12545439
