Geräumige Wohnung mit Loggia, südlicher Ausrichtung – Nähe Vet-Med, U6 Floridsdorf
Wohnung
,
1210
Wien
,
Siegfriedgasse
Lage der Immobilie
Floridsdorfer Bahnhof, U6, SiegfriedgasseBeschreibung der Immobilie
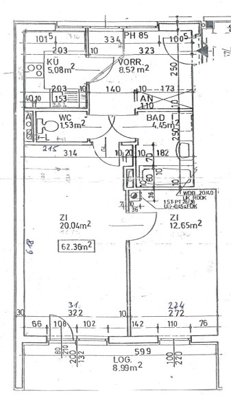
In einem gepflegten Neubau befindet sich diese charmante, helle 2-Zimmer-Wohnung mit separater Küche und Loggia in einer ruhigen Gasse zwischen der Veterinärmedizinischen Universität und dem Floridsdorfer Bahnhof.
Man betritt die Wohnung über einen freundlichen, lichtdurchfluteten Vorraum, von dem aus sich ein wunderschöner Weitblick Richtung Norden bietet. Vom Vorraum gelangen Sie in die voll ausgestattete Küche, das Badezimmer sowie ein separates WC.
Das Wohnzimmer und das Schlafzimmer verfügen jeweils über einen Ausgang auf die ca. 9 m² große Loggia mit südlicher Ausrichtung.
Die Fenster auf der Südseite wurden vor Kurzem durch moderne 3-fach isolierverglaste Fenster ersetzt. Diese sind mit außenliegenden Jalousien sowie teilweise mit Fliegengittern ausgestattet.
Zur Wohnung gehört ein Kellerabteil.
Ein Garagenplatz im Haus kann optional um 25.000,- Euro erworben werden.
Lage und Umgebung:
Die Lage der Wohnung ist ausgezeichnet: zentral und dennoch ruhig. In ca. 5 Minuten erreichen Sie die Straßenbahnlinien 25 und 26 (Station Fultonstraße) mit Anbindung an die U1 Richtung Kagran sowie an die U6 und Schnellbahn Floridsdorf. Mit dem Auto sind Sie rasch auf der A22, an der Nordbrücke und der Floridsdorfer Brücke.
Noch nichts gefunden? Wir informieren Sie über geeignete Immobilienangebote noch vor allen anderen.
Legen Sie jetzt Ihren individuellen Suchagenten unter folgendem Link an. Wir schicken Ihnen passende Immobilien exklusiv vorab zu.
Suchagent anlegen - https://accenta-immobilien.service.immo/registrieren/de
Der Vermittler ist als Doppelmakler tätig.
Sie möchten Ihre Immobilie verkaufen oder vermieten?
Vertrauen Sie auf unsere Erfahrung – mit geprüfter Qualität und transparenter Abwicklung.
Die Immobilien Card garantiert Ihnen, dass Sie mit einem geprüften Profi für Verkauf und Vermietung sprechen.
Infrastruktur / Entfernungen
Gesundheit
Arzt <250m
Apotheke <500m
Klinik <1.500m
Krankenhaus <1.500m
Kinder & Schulen
Schule <250m
Kindergarten <500m
Universität <1.250m
Höhere Schule <1.500m
Nahversorgung
Supermarkt <500m
Bäckerei <500m
Einkaufszentrum <1.250m
Sonstige
Geldautomat <750m
Bank <750m
Post <750m
Polizei <500m
Verkehr
Bus <250m
U-Bahn <1.250m
Straßenbahn <500m
Bahnhof <1.250m
Autobahnanschluss <1.750m
Angaben Entfernung Luftlinie / Quelle: OpenStreetMap
Eckdaten
| Kaufpreis: | 299.000,00 € |
| Fläche: | 53,37 m² |
| Zimmer: | 2 |
Basisdaten zur Immobilie
| Objektnr: | 10627 |
| Art: | Wohnung |
| Land: | Österreich |
| Baujahr: | 1996 |
| Alter: | Neubau |
| Kaufpreis: | 299.000,00 € |
| Kaufpreis / m²: | auf Anfrage |
| Provision: | 3% des Kaufpreises zzgl. 20% USt. |
| Betriebskosten: | 110,71 € |
| MwSt Gesamt: | 11,07 € |
| Wohnfläche: | 53,37 m² |
| Nutzfläche: | 62,36 m² |
| Zimmer: | 2 |
| Bäder: | 1 |
| WC: | 1 |
| Heizwärmebedarf: | C 49,90 kWh/m²a |
| fGEE: | C 1,06 |
Ausstattung
Parkett, Fernwärme, Einbauküche, Personenaufzug, Südbalkon, Badewanne, Garage
Internet und TV
Information zur Internet und TV Versorgung hier
Ihre persönliche Beratung
Martina Schütz
Accenta Immobilien e.U.
martina.schuetz@accenta-immo.at
+43 1 9971293
+43 699 17089345
F +43 1 997129310
