Reihenhaus in Bruck an der Großglocknerstraße
Haus
- Reihenmittelhaus,
5671
Bruck an der Großglocknerstraße
Beschreibung der Immobilie
Grundstück: ca. 195 m² Wohnhaus inkl. Carport
Nutzfläche: ca. 125 m² ( ohne Keller)
Kaufpreis: € 595.000,--
Betriebskosten: laut Verbrauch
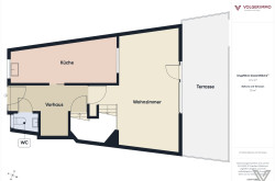
Einteilung:
Kellergeschoß: Heiz- und Lager/Hobbyraum;
Erdgeschoß: Vorraum, WC, Küche, Wohnzimmer mit Ausgang in den Garten mit überdachter Terrasse;
Obergeschoß: 3 Schlafzimmer, Bad mit Badewanne und WC;
Dachgeschoß: 1 großes Schlafzimmer mit Ausgang auf die Terrasse und ein Bad mit Dusche/WC;
- die Einbauküche und der Einbauschrank im Vorhaus bleiben im Haus, ansonsten wird das Wohnhaus unmöbliert übergeben;
- geheizt wird mit einer Fußbodenheizung per Gas;
- die Zimmer sind mit Fliesen, Vinyl und Laminatböden ausgestattet;
- Kleiner netter Garten mit überdachter Terrasse
- 1 Carport für 2 Autos ist im Kaufpreis inbegriffen;
- Energieausweis ist in Arbeit;
Das Wohnhaus befindet sich in ruhiger Lage, am Ortsrand von Bruck an der Großglocknerstraße. Der Ort Bruck an der Großglocknerstr. bietet sowohl im Sommer, als auch im Winter viele Freizeit-, Urlaubs- und Ausflugsmöglichkeiten und verfügt über eine umfassende Infrastruktur. Die bekannte Region Zell am See/Kaprun ist unweit entfernt.
Ihr Ansprechpartner
Josef Volger
0043 (0)664/2261096
info@volger.immobilien
Der Vermittler ist als Doppelmakler tätig.
Eckdaten
| Kaufpreis: | 595.000,00 € |
| Fläche: | 125,00 m² |
| Zimmer: | 5 |
Basisdaten zur Immobilie
| Objektnr: | 503 |
| Art: | Haus - Reihenmittelhaus |
| Land: | Österreich |
| Kaufpreis: | 595.000,00 € |
| Provision: | 3% des Kaufpreises zzgl. 20% USt. |
| Nutzfläche: | 125,00 m² |
| Grundstücksfl.: | 195,00 m² |
| Zimmer: | 5 |
| Bäder: | 2 |
| WC: | 3 |
| Terrassen: | 1 |
Internet und TV
Information zur Internet und TV Versorgung hier
Ihre persönliche Beratung
Josef Volger
Immobilien Josef Volger
info@volger.immobilien
+43 6642261096
