Einfamilienhaus in Taxenbach zu verkaufen
Haus
,
5660
Taxenbach
Beschreibung der Immobilie
Grundstück : ca. 1.179 m²
Nutzfläche Wohnhaus: ca. 228 m² inkl. Keller
Wohnfläche Wohnhaus: ca. 130 m² ohne Dachraum (zurzeit Büro)
Kaufpreis: € 659.000,-
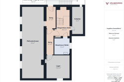
Einteilung:
Kellergeschoß: Waschraum inkl. Boiler, Erdkeller, Lagerraum, sowie ein großer Allzweckraum, der bis jetzt als Werkstatt genutzt wurde;
Erdgeschoß: großzügiger Eingangsbereich inkl. einem Abstellraum, Wohnzimmer mit Kachelofen und Ausgang auf den Balkon mit Durchgang zur Terrasse, Küche mit Holzherd, Speis, 1 Zimmer in dem derzeit eine Infrarotkabine steht (kann natürlich auch als Büro oder Schlafzimmer genutzt werden), kleines Bad mit Dusche/WC;
Obergeschoß: 2 Schlafzimmer (beide mit Ausgang auf den Balkon), 1 Dachraum (wird derzeit als Büro genutzt), Badezimmer mit Badewanne und Dusche, und WC;
- das Wohnhaus wurde in Holzbauweise errichtet;
- die Liegenschaft wird teilmöbliert übergeben, private Dinge werden mitgenommen, die Infrarotkabine im Erdgeschoss kann eventuell übernommen werden;
- geheizt wird elektrisch, im Wohnzimmer sorgt ein Kachelofen für gemütliche Wärme, in der Küche steht ein Holzherd zur Verfügung;
- die Zimmer sind mit Fliesen, Parkett und Holzböden ausgestattet;
- 1 offene Garage, sowie ausreichend Parkplätze stehen zur Verfügung;
Besonders interessant: ruhige Lage, viel Platz im Innen- und Außenbereich, vielseitig nutzbare Kellerräume, somit sowohl für Familien, als auch für "Home-Office-Nutzer" usw. bestens geeignet! Durch die durchdachte Raumaufteilung, die vielen praktischen Details und insbesondere die Ruhelage bietet die Liegenschaft viele Vorzüge!
Das Wohnhaus befindet sich im Ortsteil Höf (Richtung Rauris), welcher zur Ortsgemeinde Taxenbach gehört. Der Ort Taxenbach bietet sowohl im Sommer, als auch im Winter viele Freizeit-, Urlaubs- und Ausflugsmöglichkeiten und verfügt über eine umfassende Infrastruktur. Die bekannte Region Zell am See/Kaprun ist unweit entfernt.
Ihr Ansprechpartner
Josef Volger
0043 (0)664/2261096
info@volger.immobilien
Der Vermittler ist als Doppelmakler tätig.
Eckdaten
| Kaufpreis: | 659.000,00 € |
| Fläche: | 130,00 m² |
Basisdaten zur Immobilie
| Objektnr: | 499 |
| Art: | Haus |
| Land: | Österreich |
| Baujahr: | 1992 |
| Zustand: | Gepflegt |
| Kaufpreis: | 659.000,00 € |
| Provision: | 3% des Kaufpreises zzgl. 20% USt. |
| Wohnfläche: | 130,00 m² |
| Nutzfläche: | 228,00 m² |
| Grundstücksfl.: | 1.179,00 m² |
| Heizwärmebedarf: | 118,00 kWh/m²a |
| fGEE: | 1,32 |
Internet und TV
Information zur Internet und TV Versorgung hier
Ihre persönliche Beratung
Josef Volger
Immobilien Josef Volger
info@volger.immobilien
+43 6642261096
