Lage der Immobilie
An der Adresse 8020 Graz, Payer-Weyprechtstrasse 33-35 entstehen im Dachgeschoss des Objektes zwei Wohnungen für gehobene Ansprüche.Beschreibung der Immobilie
Liebe Interessentin.
Lieber Interessent.
An der Adresse 8020 Graz, Payer-Weyprechtstrasse 33-35 entstehen im Dachgeschoss des Objektes zwei Wohnungen für gehobene Ansprüche. Eine 76 m2 Wohnung mit schönen Blick auf dem Schlossberg und eine Luxuspenthouse-Wohnung mit 200 m2 Wohnfläche und sagenhaften 270 m2 Dachterrasse auf einer Ebene. Selbstverständlich ist bei dieser Wohnung ein eigener Lift bis in den Vorraum sowie 4 Abstellplätze in der Garage vorhanden.
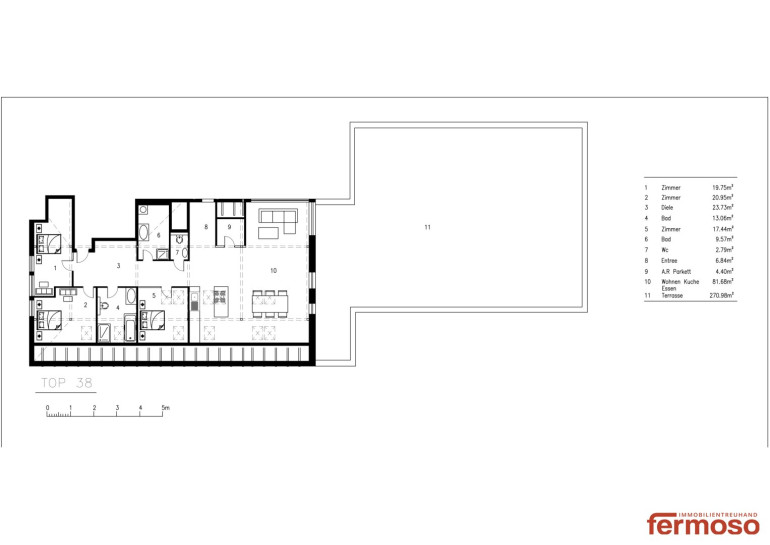
Luxuspenthouse mit (Aufteilung laut Beilage) Diese unvergleichbare Wohnung bietet auf einer Ebene 200 m2 Wohnfläche und 270 m2 Dachterrasse mit bester Aussicht über Graz, der Lift aus der eigenen Garage mit 50 m2 führt direkt in den Vorraum der Wohnung. Die Terrasse ist so ausgeführt das auch ein großes Swimmingpool errichtbar ist und man eine vielseitige Nutzung auf dieser riesigen Ebene durchführen kann
Details:
Vorzimmer
2x Badezimmer
Toilette
Küche
Abstellraum
Wohnzimmer
3x Zimmer
Kellerabteil
Die sehr grüne Lage umgeben von Einfamilienhäusern und Einkaufsmöglichkeiten macht einen sehr grünen Gesamteindruck der direkten Wohnlage fassbar. Der Blick bis zum Schlossberg über das gesamte Grazer Stadtgebiet ist unvergleichbar. Die Gesamtliegenschaft wird umfassend saniert und das Projekt wird mit einer kleinen Neubauwohnanlage mit Gärten und Carports noch verschönert.
Der Energieausweis, wird laut Eigentümer nachgereicht und ist in Arbeit.
Noch nichts gefunden? Wir informieren Sie über geeignete Immobilienangebote noch vor allen anderen.
Legen Sie jetzt Ihren individuellen Suchagenten unter folgendem Link an. Wir schicken Ihnen passende Immobilien exklusiv vorab zu.
Suchagent anlegen - https://fermoso-immobilientreuhand.service.immo/registrieren/de
Hinweis gemäß Energieausweisvorlagegesetz: Ein Energieausweis wurde vom Eigentümer bzw. Verkäufer, nach unserer Aufklärung über die generell geltende Vorlagepflicht, sowie Aufforderung zu seiner Erstellung noch nicht vorgelegt. Daher gilt zumindest eine dem Alter und der Art des Gebäudes entsprechende Gesamtenergieeffizienz als vereinbart. Wir übernehmen keinerlei Gewähr oder Haftung für die tatsächliche Energieeffizienz der angebotenen Immobilie.
Wir weisen darauf hin, dass zwischen dem Vermittler und dem zu vermittelnden Dritten ein familiäres oder wirtschaftliches Naheverhältnis besteht.
Der Vermittler ist als Doppelmakler tätig.
Infrastruktur / Entfernungen
Gesundheit
Arzt <500m
Apotheke <500m
Klinik <2.000m
Krankenhaus <1.500m
Kinder & Schulen
Schule <1.000m
Kindergarten <500m
Universität <2.000m
Höhere Schule <2.500m
Nahversorgung
Supermarkt <500m
Bäckerei <1.000m
Einkaufszentrum <1.500m
Sonstige
Geldautomat <1.000m
Bank <1.000m
Post <1.500m
Polizei <1.500m
Verkehr
Bus <500m
Straßenbahn <1.000m
Autobahnanschluss <2.500m
Bahnhof <1.000m
Flughafen <7.500m
Angaben Entfernung Luftlinie / Quelle: OpenStreetMap
Eckdaten
| Kaufpreis: | auf Anfrage |
| Fläche: | 200,00 m² |
| Zimmer: | 4,50 |
Basisdaten zur Immobilie
| Objektnr: | 6848 |
| Art: | Wohnung - Dachgeschoß |
| Land: | Österreich |
| Zustand: | Neuwertig |
| Kaufpreis: | auf Anfrage |
| Provision: | 3% des Kaufpreises zzgl. 20% USt. |
| Wohnfläche: | 200,00 m² |
| Zimmer: | 4,50 |
| Bäder: | 2 |
| WC: | 1 |
| Terrassen: | 1 |
Ausstattung
Fliesen, Parkett, Personenaufzug, Dusche
Internet und TV
Information zur Internet und TV Versorgung hier
Ihre persönliche Beratung
Peter Gruber
Fermoso Immobilientreuhand GmbH
pg@fermoso.at
+43 1 997 4246
+43 660 7675 153
