Beschreibung der Immobilie
Das s REAL Bieterverfahren ist eine besondere Angebotsform. Bei dieser haben Sie die Möglichkeit, rasch zu Ihrer Traumimmobilie zu kommen, da die Entscheidungsfristen bereits von Beginn an fixiert sind, auch das Mindestgebot wurde bereits vom Verkäufer festgelegt. Beim Bieterverfahren handelt es sich um keine Versteigerung oder Auktion, es gibt insbesondere keinen Zuschlag. Es ermöglicht mehreren Interessenten – zu gleichen Bedingungen – verbindliche Angebote zu legen, über die Annahme entscheidet der Verkäufer.
Selbstverständlich genießen Sie auch bei dieser Form das von s REAL gewohnte Service. Umfangreiche Aufbereitung der Unterlagen, sämtliche Informationen rund um die Immobilie sowie persönliche Betreuung bis zur Schlüsselübergabe sind nur 3 der wesentlichen Inhalte.
Beschreibung der Immobilie:
In einer ruhigen, gepflegten Anlage im 22. Bezirk in Wien steht eine 2-Zimmer-Eigentumswohnung mit 72 m² inklusive Loggia zum Verkauf.
In unmittelbarer Umgebung des Rennbahnwegs finden Sie alles, was Sie für den täglichen Bedarf benötigen - von Ärzten und Apotheken bis hin zu Schulen, Kindergärten, Supermärkten und Einkaufszentren. Auch für Ihre Freizeitgestaltung gibt es hier zahlreiche Möglichkeiten, wie zum Beispiel Parks, Restaurants und Cafés.
Die Fakten Ihrer Immobilie:
- Die familienfreundliche Wohnhausanlage mit Baujahr 1974 wurde 1999 generalsaniert, 2005 wurden die Elektrosteigleitungen erneuert.
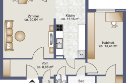
- Die Wohnung selbst befindet sich im 2ten Liftstock, alle Fenster sind in den begrünten Innenhof mit Gemeinschaftsgarten gerichtet.
- Die Zimmer sind zentral begehbar, im Badezimmer mit Dusche finden Sie eine Waschmaschine, ein separates WC ist vorhanden.
- Vom Wohnzimmer gelangen Sie auf die 10 m² große Loggia und in die halb offene, funktionelle Einbauküche älteren Baujahrs.
- Ein Abstellraum befindet sich im Vorzimmer, zusätzlichen ein praktischer Schrankraum im Schlafzimmer.
- Die Wohnung bedarf einiger Adaptierungs- und Renovierungsarbeiten, aber wurde gepflegt und ist komplett funktionsfähig.
Ein kleines Kellerabteil ist ebenfalls Teil des Angebots, geheizt wird mittels Fernwärme.
Machen Sie sich selbst ein Bild der Raumaufteilung und des Zustandes:
Hier geht´s zum 360° Rundgang:
https://app.immoviewer.com/portal/tour/3146506?accessKey=69f8
• Angebotsfrist : 21.05.2026
• Mindestgebot : EUR 250.000.-
Der Eigentümer behält sich vor, jederzeit ein zufriedenstellendes Angebot vor Ablauf der Bieterfrist anzunehmen!
Kaufvertragserrichtigung?
Für die Vertragserrichtung und Treuhandabwicklung können wir Ihnen die Sonderkondition bei RA Dr. Pacher und Partner in 1030 Wien mit 1 % des Kaufpreises + 20 % USt + Barauslagen anbieten.
Fremdfinanzierung?
Sollten Sie ein unverbindliches Beratungsgespräch mit unseren Finanzierungsexperten des Wohn² der Erste Bank oder Sparkasse wünschen, können Sie sich diesbezüglich gerne an mich wenden.
Persönlicher Besichtigungswunsch?
Senden Sie mir gerne eine Anfrage und Sie erfahren die nächstmöglichen Termine.
Infrastruktur / Entfernungen
Gesundheit
Arzt <500m
Apotheke <1.000m
Klinik <2.000m
Krankenhaus <4.000m
Kinder & Schulen
Schule <500m
Kindergarten <500m
Universität <2.000m
Höhere Schule <1.500m
Nahversorgung
Supermarkt <500m
Bäckerei <500m
Einkaufszentrum <1.000m
Sonstige
Geldautomat <1.000m
Bank <1.000m
Post <1.000m
Polizei <1.000m
Verkehr
Bus <500m
U-Bahn <1.000m
Straßenbahn <1.000m
Bahnhof <1.000m
Autobahnanschluss <1.500m
Angaben Entfernung Luftlinie / Quelle: OpenStreetMap
Eckdaten
| Kaufpreis: | 250.000,00 € |
| Fläche: | 62,40 m² |
| Zimmer: | 2 |
Basisdaten zur Immobilie
| Objektnr: | 960/74813 |
| Art: | Wohnung - Etage |
| Land: | Österreich |
| Baujahr: | 1974 |
| Zustand: | Teil_vollrenovierungsbed |
| Alter: | Neubau |
| Kaufpreis: | 250.000,00 € |
| Provision: | 3% des Kaufpreises zzgl. 20% USt. |
| Betriebskosten: | 135,58 € |
| Heizkosten: | 102,96 € |
| MwSt Gesamt: | 32,96 € |
| Wohnfläche: | 62,40 m² |
| Zimmer: | 2 |
| Bäder: | 1 |
| WC: | 1 |
| Heizwärmebedarf: | C 51,00 kWh/m²a |
| fGEE: | C 1,38 |
Ausstattung
Fliesen, Laminatboden, Teppichboden, Gas, Fernwärme, Einbauküche, Personenaufzug, Dusche
Internet und TV
Information zur Internet und TV Versorgung hier
Ihre persönliche Beratung
Philipp Schuldner
s REAL Immobilienvermittlung GmbH
philipp.schuldner@sreal.at
+43 (0)5 0100 - 26348
+43 664 88709535
