Charmante 2-Zimmer-Wohnung am Karmelitermarkt - Verkauf im digitalen Angebotsverfahren immo-live
Wohnung
,
1020
Wien,Leopoldstadt
Lage der Immobilie
KarmelitermarktBeschreibung der Immobilie
Bitte beachten Sie, dass dieses Objekt im Rahmen eines Angebotsverfahrens angeboten wird – weitere Informationen finden Sie nach der Beschreibung.
In einer der lebendigsten und zugleich charmantesten Gegenden Wiens gelangt diese großzügige Eigentumswohnung direkt am beliebten Karmelitermarkt zum Verkauf. Ein Ort, an dem urbanes Leben, kulinarische Vielfalt und entspannte Nachbarschaft eine ganz besondere Symbiose eingehen.
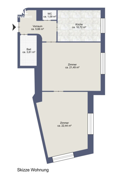
Das Wohnhaus wurde 1958 errichtet und präsentiert sich in gepflegtem Zustand. Die Wohnung befindet sich im 4. Liftstock und umfasst eine Fläche von ca. 66 m², die sich wie folgt aufteilen:
Ein Wohnzimmer, ein Schlafzimmer, eine getrennte Tageslichtküche, ein Badezimmer mit Dusche sowie ein getrenntes WC.
Die Wohnung befindet sich zwar nicht in einem neu sanierten Zustand, überzeugt jedoch durch ihren gepflegten Charakter. Klassische Parkettböden verleihen den Wohnräumen Wärme und Wohnlichkeit, die Nassräume sind zeitlos verfliest.
Hier geht´s zum 360° Rundgang: https://app.immoviewer.com/portal/tour/3146606?accessKey=69db
Sie verfügt über gut erhaltene Thermofenster sowie zusätzlich über eine außenliegende elektrische Beschattung. Zudem wird sie mittels einer Gasetagenheizung beheizt.
Ein Kellerabteil bietet zusätzlichen Stauraum.
Ein besonderes Highlight ist die Lage: Die Wohnung überblickt den Karmelitermarkt und genießt angenehme Nachmittagssonne. Der Markt selbst ist weit mehr als nur ein Nahversorger – er ist Treffpunkt, Lebensraum und Herzstück des Viertels. Regionale Produzenten, kleine Feinkoststände, Cafés und internationale Lokale prägen das Bild und verleihen der Gegend ihre unverwechselbare Atmosphäre. Der nahegelegene Augarten sowie der Donaukanal bieten zusätzlichen Erholungsraum im Grünen.
Sämtliche Geschäfte des täglichen Bedarfs befinden sich in unmittelbarer Nähe, ebenso eine hervorragende öffentliche Verkehrsanbindung: Die U-Bahn-Linien U1, U2 und U4 sind bequem fußläufig erreichbar.
Ein Zuhause für Menschen, die das echte Wiener Stadtleben schätzen – lebendig, vielfältig und voller Charakter.
Anlegerinfo: angemessener Mietzins
Vereinbaren Sie jetzt einen Besichtigungstermin und überzeugen Sie sich selbst von der Qualität dieser Immobilie!
immo-live – das digitale Angebotsverfahren der s REAL
Bei immo-live, dem digitalen Angebotsverfahren der s REAL, haben Sie die Möglichkeit, rasch zu Ihrer Traumimmobilie zu gelangen. Das Mindestgebot wurde bereits vom Verkäufer festgelegt. Es handelt sich nicht um eine Versteigerung oder Auktion, und es gibt keinen Zuschlag. Das Verfahren ermöglicht mehreren Interessenten, zu gleichen Bedingungen online und verbindlich Angebote zu legen.
Der Startpreis beträgt € 280.000,-
Laufzeit:
Start: 31.03.2026, 10:00 Uhr | Ende: 28.04.2026, 10:00 Uhr
Das bedeutet, der im digitalen Angebotsverfahren angezeigte Preis ist der Startpreis bzw. das aktuell gebotene Angebot und kann im Laufe des Prozesses weiter überboten werden. Sie haben somit stets eine aktuelle Übersicht über bereits gelegte Höchstangebote. Am Ende des digitalen Angebotsverfahrens entscheidet der Verkäufer über die Annahme; das heißt, der Eigentümer behält sich die Annahme von Angeboten vor.
Selbstverständlich genießen Sie auch bei dieser Form das von s REAL gewohnte Service. Die umfangreiche Aufbereitung der Unterlagen, sämtliche Informationen rund um die Immobilie sowie die persönliche Betreuung bis zur Schlüsselübergabe sind nur drei der wesentlichen Leistungen.
Über weitere Details informieren wir Sie gerne persönlich.
Infrastruktur / Entfernungen
Gesundheit
Arzt <500m
Apotheke <500m
Klinik <1.000m
Krankenhaus <500m
Kinder & Schulen
Schule <500m
Kindergarten <500m
Universität <1.000m
Höhere Schule <1.000m
Nahversorgung
Supermarkt <500m
Bäckerei <500m
Einkaufszentrum <1.500m
Sonstige
Geldautomat <500m
Bank <500m
Post <500m
Polizei <500m
Verkehr
Bus <500m
U-Bahn <500m
Straßenbahn <500m
Bahnhof <500m
Autobahnanschluss <3.000m
Angaben Entfernung Luftlinie / Quelle: OpenStreetMap
Eckdaten
| Kaufpreis: | 280.000,00 € |
| Fläche: | 66,02 m² |
| Zimmer: | 2 |
Basisdaten zur Immobilie
| Objektnr: | 960/74828 |
| Art: | Wohnung |
| Land: | Österreich |
| Baujahr: | 1958 |
| Zustand: | Gepflegt |
| Alter: | Neubau |
| Kaufpreis: | 280.000,00 € |
| Provision: | 3% des Kaufpreises zzgl. 20% USt. |
| Betriebskosten: | 124,19 € |
| MwSt Gesamt: | 12,42 € |
| Wohnfläche: | 66,02 m² |
| Nutzfläche: | 66,02 m² |
| Zimmer: | 2 |
| Bäder: | 1 |
| WC: | 1 |
| Heizwärmebedarf: | D 108,54 kWh/m²a |
| fGEE: | E 2,84 |
Ausstattung
Parkett, Fliesen, Gas, Etagenheizung, Personenaufzug, Dusche
Internet und TV
Information zur Internet und TV Versorgung hier
Ihre persönliche Beratung
Paul Tibaj
s REAL Immobilienvermittlung GmbH
paul.tibaj@sreal.at
+43 (0)5 0100 - 26260
+43 664 88998632
