Flexible Bürofläche im Erstbezug in Ottakringer Bestlage
Büro / Praxis
,
1160
Wien
,
Odoakergasse 25
Beschreibung der Immobilie
Flexible Bürofläche im Erstbezug in Ottakringer Bestlage
Mit dem ODO25 entsteht in der Odoakergasse 25 im 16. Wiener Gemeindebezirk, am Fuße des Wilhelminenbergs, ein modernes Bauprojekt, das zeitgemäße Architektur, kreatives Arbeiten und nachhaltige Bauweise miteinander verbindet. Das Hofhaus bildet dabei einen ruhigen, geschützten Rückzugsort im Innenbereich der Anlage und schafft ideale Voraussetzungen für konzentriertes Arbeiten, künstlerisches Schaffen oder flexible Büronutzungen.
Die Atelier- bzw. Büroeinheit richtet sich an Kreativschaffende, Selbstständige, kleine Unternehmen sowie alle, die einen inspirierenden Arbeitsraum mit urbaner Anbindung und gleichzeitig entspannter Atmosphäre suchen. Großzügige Raumhöhen, klare architektonische Linien und helle, offen gestaltete Flächen ermöglichen vielfältige Nutzungsmöglichkeiten und bieten Raum für individuelle Entfaltung.
Das Hofhaus umfasst eine hochwertige Atelier- bzw. Büroeinheit mit durchdachtem Grundriss und flexiblen Gestaltungsmöglichkeiten. Großzügige Fensterflächen sorgen für viel Tageslicht und schaffen eine angenehme Arbeitsatmosphäre. Die Verbindung aus moderner Architektur, ruhiger Hoflage und nachhaltigem Gebäudekonzept bietet ein Umfeld, das produktives Arbeiten ebenso unterstützt wie kreatives Denken.
ODO25 setzt auf ein zukunftsorientiertes, nachhaltiges Gesamtkonzept und strebt eine ÖGNI-/DGNB-Gold-Zertifizierung an.
Das Projekt im Überblick
-
Atelier- bzw. Büroeinheit im ruhigen Hofhaus
-
Flexible Nutzungsmöglichkeiten für Büro, Atelier oder Studio
-
Großzügige Fensterflächen für helle Arbeitsräume
-
Ruhige Innenhoflage abseits des Straßenverkehrs
-
Energieeffiziente Bauweise mit Wärmepumpe, Erdwärmesonden und Bauteilaktivierung
-
Begrünter Innenhof sowie Fassaden- und Dachbegrünung
-
Hauseigene Tiefgarage (optional anmietbar)
-
Fahrradabstellraum
Ausstattung im Überblick
-
Heizung und Kühlung über die Decke mittels Erdwärme
-
Bodenbeläge in moderner Optik
-
Fliesen bzw. Feinsteinzeug in den Sanitärräumen
-
Kunststoff-Alu-Fenster mit hoher Energieeffizienz
-
Moderne Elektroausstattung
-
Sicherheitstüren WK2/RC2
-
Glasfaseranschluss für schnelles Internet
Lage – Arbeiten zwischen Stadt und Natur
ODO25 liegt im Herzen von Ottakring und verbindet urbane Infrastruktur mit naturnaher Umgebung. Die ruhige Hofsituation ermöglicht konzentriertes Arbeiten, während gleichzeitig zahlreiche Grün- und Erholungsgebiete wie der Wilhelminenberg, die Steinhofgründe oder der Kongresspark in kurzer Distanz erreichbar sind.
Die hervorragende Anbindung an das öffentliche Verkehrsnetz sorgt für eine schnelle Erreichbarkeit aus allen Teilen Wiens. Die U3-Station „Ottakring“ befindet sich in fußläufiger Distanz und verbindet den Standort direkt mit der Wiener Innenstadt.
Zahlreiche Einkaufsmöglichkeiten, Gastronomiebetriebe sowie traditionelle Heurige befinden sich in unmittelbarer Umgebung und bieten vielfältige Angebote für den Arbeitsalltag.
Verkehrsanbindung
- Straßenbahn: 2, 10, 33, 44 & 46
- Bus: 45A, 46A, 46B & N46
- S-Bahn: S45
- U-Bahn: U3 Ottakring (ca. 10 Gehminuten)
Voraussichtliche Fertigstellung: 01.07.2026
Befristung: 5 Jahre, 1 Jahr Kündigungsverzicht, 3 Monate Kündigungsfrist
Nebenkosten: 3 BMM Kaution, 3 BMM zzgl. 20% Ust. Provision
Optional kann ein Tiefgaragenstellplatz um € 110,00 brutto/Monat angemietet werden.
Das Projekt befindet sich derzeit noch im Bau. Wir freuen uns über Ihre Kontaktaufnahme per E-Mail, um einen Besichtigungstermin zu vereinbaren!
Wir weisen darauf hin, dass zwischen dem Vermittler und dem zu vermittelnden Dritten ein familiäres oder wirtschaftliches Naheverhältnis besteht.
Infrastruktur / Entfernungen
Gesundheit
Arzt <200m
Apotheke <125m
Klinik <775m
Krankenhaus <275m
Kinder & Schulen
Schule <200m
Kindergarten <225m
Universität <1.600m
Höhere Schule <1.275m
Nahversorgung
Supermarkt <150m
Bäckerei <325m
Einkaufszentrum <325m
Sonstige
Geldautomat <150m
Bank <350m
Post <350m
Polizei <400m
Verkehr
Bus <100m
U-Bahn <550m
Straßenbahn <100m
Bahnhof <650m
Autobahnanschluss <4.725m
Angaben Entfernung Luftlinie / Quelle: OpenStreetMap
Eckdaten
| Kaltmiete (netto): | 1.444,65 € |
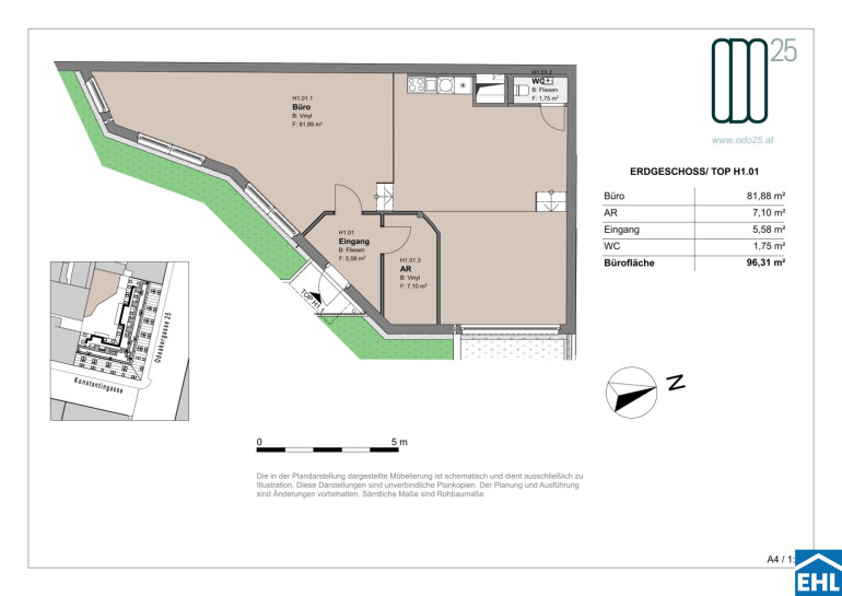
| Fläche: | 96,31 m² |
| Zimmer: | 1 |
Basisdaten zur Immobilie
| Objektnr: | 95929 |
| Art: | Büro / Praxis |
| Land: | Österreich |
| Baujahr: | 2026 |
| Zustand: | Erstbezug |
| Alter: | Neubau |
| Kaltmiete (netto): | 1.444,65 € |
| Kaltmiete: | 1.646,90 € |
| Provision: | 3 Bruttomonatsmieten zzgl. 20% USt. |
| Betriebskosten: | 202,25 € |
| MwSt Gesamt: | 329,38 € |
| Nutzfläche: | 96,31 m² |
| Bürofläche: | 96,31 m² |
| Zimmer: | 1 |
| Heizwärmebedarf: | B 26,20 kWh/m²a |
| fGEE: | A+ 0,66 |
Ausstattung
Parkett, Fliesen, Erdwärme, Wohnküche / offene Küche, Einbauküche, Personenaufzug, Tiefgarage
Internet und TV
Information zur Internet und TV Versorgung hier
Ihre persönliche Beratung
Helena Rohrauer
EHL Immobilien GmbH
h.rohrauer@ehl.at
+43 1 5127690-408
+43 (664) 88982237
