Immobilie merken

BESTE LAGE - Neubauwohnung mit großer TERRASSE

Wohnung - Erdgeschoß, 3100 St. Pölten

Lage der Immobilie

Autobahnnähe, Bahnhofsnähe, großer Balkon/Terrasse, hofseitig, öffentl. Verkehrsmittel, repräsentativ, sonnig, Zentrum-Nähe

Beschreibung der Immobilie

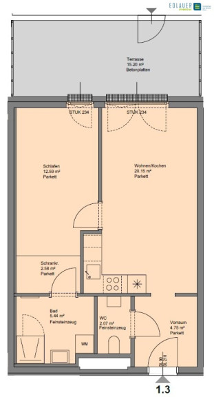
Mitten in der Landeshauptstadt St.Pölten, zwischen Bahnhof und Universitätsklinikum, kann Ihr Wohntraum wahr werden! Leben sie in einem neuen, hochwertigen Wohnhaus, in attraktiver Lage; Sie werden sich mit Sicherheit wohlfühlen. Die Wohnung ist mit einer attraktiven, funktionellen Küche samt E-Geräten, tollen Sanitäranlagen und weitgehend mit Parkettboden ausgestattet. Die Fußbodenheizung erfolgt über Fernwärme und ist daher besonders umweltfreundlich und bequem und verspricht ein höchstmaß an Wohlfühnqualität. In unmittelbarer Nähe zur Wohnungen finden Sie zahlreiche Geschäfte und Infrastruktureinrichtungen. Auch die Erreichbarkeit ist hervorragend, egal ob Individual- oder öffentlicher Verkehr. Die Wohnung Top 3 mit 47,58 m² liegt im EG – ein Lift der Sie hinunter in den Keller führt ist selbstverständlich vorhanden – und verfügt über folgendes Raumprogramm: Vorzimmer, Wohnküche, Schlafzimmer, Schrankraum, Badezimmer, WC Terrasse, Kellerabteil. Autoabstellplätze in der Tiefgarage können bei Bedarf angemietet werden. Die Kosten hierfür belaufen sich auf ca. EUR 80,-- zzgl. Umsatzsteuer. (Kaution: ca. 3 Bruttomonatsmieten, Vergebührungskosten: abhängig von der Mietdauer, Abwicklungskosten f. HV: EUR 199,00) Monatliche Kosten: Die angegebene monatliche Miete beinhaltet neben den Hauptmietzins die Betriebskosten und die gesetzliche Umsatzsteuer. Die verbrauchsabhängigen Kosten für den Strom, Heizung und Warmwasseraufbereitung werden direkt mit dem Energieversorgungsunternehmen verrechnet. Vertragskonditionen: Der Mietvertrag wird auf 5 Jahre befristet abgeschlossen. Der Mieter hat das gesetzliche Kündigungsrecht, den Mietvertrag frühestens nach Ablauf eines Jahres unter Einhaltung einer 3-monatigen Kündigungsfrist zum Monatsletzten aufzukündigen. Die frühestmögliche Kündigung durch den Mieter kann daher per Monatsletzten des 16. Mietmonates erfolgen. Nebenkosten: Kaution: 3 Brutto-Monatsmieten Mietvertragserrichtungsgebühr für Hausverwaltung: EUR 349,00 Verfügbarkeit: Das Objekt steht ab Mai 2026 zur Verfügung. Energieausweis: Ausstellungsdatum: 23.05.2017 Heizwärmebedarf (HWB) 32,01 kWh/m²/a. (Einstufung Energieklasse B) Gesamtenergieeffizienz-Faktor von 0,83. (Einstufung Energieklasse A) Hinweis auf Naheverhältnis: Wir weisen darauf hin, dass zum Vermieter ein wirtschaftliches Naheverhältnis besteht (wiederholte Beauftragungen). Gerne stehen wir Ihnen für weitere Auskünfte oder zur Vereinbarung eines Besichtigungstermins zu Verfügung. Objektnummer: 8176 Halten Sie bitte bei telefonischen Auskünften diese Objektnummer bereit. Um unsere Angebote noch besser Ihren Vorstellungen anpassen zu können bitten wir Sie im Zuge Ihrer Anfrage auch um die Bekanntgabe Ihrer Suchkriterien. Dies ermöglicht es uns schnell das für Sie passende Objekt zu finden. Wir ersuchen aus organisatorischen Gründen (Datenbankpflege) und aufgrund unserer Nachweispflicht gegenüber dem Abgeber um vollständige Angabe Ihrer Kontaktdaten einschließlich Vor- und Zuname, Adresse und Telefonnummer. Wir ersuchen um Verständnis, dass wir Anfragen mit unvollständigen Kontaktdaten nicht bearbeiten können. Der Schutz Ihrer personenbezogenen Daten ist uns ein großes Anliegen. Wir verwenden Ihre Daten für die Interessenten- und Kundenverwaltung im Rahmen der Immobilienvermittlung (z.B. für die Zusendung von Immobilienangeboten). Die Rechtsgrundlage dafür bildet – sofern nicht eine gesetzliche Grundlage vorliegt – ein abgeschlossener Vertrag bzw. eine Vertragsanbahnung (Vermittlungsvertrag). Die Weitergabe personenbezogener Daten erfolgt ohne ausdrückliche separate Einwilligung nur insoweit, wie es für Vertragsabwicklungen erforderlich ist. Keinesfalls werden Ihre Daten zu Werbezwecken o.ä. weitergegeben. Unsere Mitarbeiter und unsere Dienstleistungsunternehmen sind zur Verschwiegenheit und zur Einhaltung der Datenschutzbestimmungen verpflichtet. Lesen Sie mehr in unserer Datenschutzerklärung auf unserer Homepage.

Eckdaten

Gesamtmiete: 879,78 €
Fläche: 47,58 m²
Zimmer: 2

Basisdaten zur Immobilie

Objektnr: 202/08176
Art: Wohnung - Erdgeschoß
Land: Österreich
Baujahr: 2020
Alter: Neubau
Gesamtmiete: 879,78
Kaltmiete (netto): 657,54 €
Kaltmiete: 879,78 €
Wohnfläche: 47,58 m²
Zimmer: 2
Bäder: 1
WC: 1
Terrassen: 1
Heizwärmebedarf:  B  32,01 kWh/m²a
fGEE:  A  0,83

Ausstattung

Fernwärme, Zentralheizung



Internet und TV

Information zur Internet und TV Versorgung hier




Immobilie anfragen




Ihre persönliche Beratung

Realkanzlei Edlauer Immobilientreuhänder

René HOMMEN

Realkanzlei Edlauer Immobilientreuhänder

r.hommen@edlauer.com

+43 (0) 2742 35243889

+43 (0) 660 245 22 18

F +43 (0) 2742 352438 - 3


Realkanzlei Edlauer Immobilientreuhänder - Immobilen Makler

Josefstraße 19, 3100 St. Pölten

+43/2742/352438-0

https://www.edlauer.com