Grüne Werte. Goldene Rendite.
Wohnung
,
1190
Wien
,
Agnesgasse
Beschreibung der Immobilie
CLOUD 9 – Exklusives Investment in einer der begehrtesten Wohnlagen Wiens
Agnesgasse 9 – Investieren über den Dächern der Stadt
Im grünen Herzen von Sievering, dem noblen 19. Wiener Gemeindebezirk, entsteht mit CLOUD 9 ein einzigartiges Wohnbauprojekt für anspruchsvolle Anleger:innen. In erhöhter Ruhelage, umgeben von Weingärten, Villen und dem Wienerwald, treffen Nachhaltigkeit, Luxus und Werthaltigkeit aufeinander. Die exzellente Mikrolage und die Nähe zur Wiener Innenstadt (15 Fahrminuten) machen dieses Projekt zu einer attraktiven Kapitalanlage.
Investment-Highlights auf einen Blick
- 11 exklusive Eigentumswohnungen mit 2,5 bis 5 Zimmern
- Wohnflächen von ca. 65 m² bis 169 m²
- Jede Einheit mit großzügigen Freiflächen: Gärten, Balkone oder Terrassen
- 11 Tiefgaragenplätze, optional mit E-Ladestation
- Photovoltaikanlage, Luftwärmepumpe, Deckenkühlung
- Regenwasserzisterne zur Gartenbewässerung
Attraktives Anlageobjekt mit nachhaltiger Perspektive
CLOUD 9 kombiniert hochwertige Bauweise mit energieeffizienten Technologien – von der Photovoltaik bis zur Bauteilaktivierung zur Kühlung. Dadurch profitieren Anleger:innen nicht nur von niedrigen Betriebskosten, sondern auch von einer gesteigerten Nachfrage bei zukünftiger Vermietung oder Verwertung.
Premium-Ausstattung für höchste Ansprüche
- Fußbodenheizung mit Luftwärmepumpe
- 3-fach verglaste Holz-Alu-Fenster, Außenraffstores
- Edle Landhausdielen (Eiche), Feinsteinzeug in Nassräumen
- Hochwertige Sanitärmarken
- Einbruchshemmende Türen, Videosprechanlage
- Stilvolles, barrierefreies Entree
- Gemeinschaftsbereiche inkl. Yoga- & Fitnessraum, Wellnesszone mit Infrarotkabine und Kneippbecken
Standort mit nachhaltiger Wertentwicklung
Sievering zählt zu den stabilsten und exklusivsten Wohngegenden Wiens. Die Kombination aus hoher Lebensqualität, Nahversorgung, Natur und Stadtnähe bietet ideale Voraussetzungen für langfristige Mietrenditen oder wertgesicherte Eigennutzung.
- Nähe zu American International School, Dominikanerinnen-Schule
- Vielfältiges Angebot an Heurigen, Gastronomie & Nahversorgern
- Hoher Freizeitwert: Cobenzl, Himmel, Stadtwanderweg 2
- Gute medizinische Versorgung (Rudolfinerhaus, Göttlicher Heiland)
Optimale Anbindung – hohe Lebensqualität
- Buslinie 39A (Haltestelle Agnesgasse) direkt vor der Tür
- Direkte Verbindung zu U4, S-Bahn, Regionalzügen (Bahnhof Heiligenstadt)
- Wiener Innenstadt in 15–20 Min. mit dem Auto, 30 Min. öffentlich
- Flughafen Wien-Schwechat in ca. 30–35 Min. erreichbar
Ihr Investmentvorteil in einer raren Toplage
Mit CLOUD 9 investieren Sie in ein hochwertiges Immobilienprojekt in einer selten verfügbaren Wohnlage Wiens. Die Kombination aus stilvoller Architektur, nachhaltiger Technik und exzellenter Mikrolage schafft die Grundlage für langfristige Wertstabilität
Besuchen Sie unsere Projektseite für weiterführende Informationen, Grundrisse und Preisspiegel.
Kaufpreise der Vorsorgewohnungen
von EUR 600.100,- bis EUR 1.945.000,- netto zzgl. 20% USt.
Zu erwartender Mietertrag
von ca. EUR 17,50 bis EUR 20,00 netto/m²
Provisionsfrei für den Käufer!
Fertigstellung voraussichtlich Q4/2027
Bei diesem Angebot handelt es sich um eine Vorsorgewohnung, die zu Vermietungszwecken erworben wird. Der angegebene Kaufpreis versteht sich daher zzgl. 20% USt. Diese Daten sind vorbehaltlich möglicher Änderungen.
Wir weisen darauf hin, dass zwischen dem Vermittler und dem zu vermittelnden Dritten ein familiäres oder wirtschaftliches Naheverhältnis besteht.
Der Vermittler ist als Doppelmakler tätig.
Infrastruktur / Entfernungen
Gesundheit
Arzt <1.000m
Apotheke <1.000m
Klinik <2.500m
Krankenhaus <2.750m
Kinder & Schulen
Schule <1.000m
Kindergarten <750m
Universität <2.250m
Höhere Schule <2.250m
Nahversorgung
Supermarkt <750m
Bäckerei <1.250m
Einkaufszentrum <4.000m
Sonstige
Geldautomat <1.250m
Bank <1.250m
Post <1.000m
Polizei <1.750m
Verkehr
Bus <250m
Straßenbahn <1.500m
U-Bahn <3.500m
Bahnhof <2.500m
Autobahnanschluss <4.000m
Angaben Entfernung Luftlinie / Quelle: OpenStreetMap
Eckdaten
| Kaufpreis: | 600.100,00 € |
| Fläche: | 65,12 m² |
| Zimmer: | 3 |
Basisdaten zur Immobilie
| Objektnr: | 86326 |
| Art: | Wohnung |
| Land: | Österreich |
| Zustand: | Erstbezug |
| Alter: | Neubau |
| Kaufpreis: | 600.100,00 € |
| Kaufpreis / m²: | auf Anfrage |
| Provision: | Provision bezahlt der Abgeber |
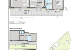
| Wohnfläche: | 65,12 m² |
| Zimmer: | 3 |
| Bäder: | 1 |
| WC: | 1 |
| Terrassen: | 1 |
| Garten: | 53,09 m² |
| Keller: | 11,23 m² |
| Heizwärmebedarf: | B 27,90 kWh/m²a |
| fGEE: | A+ 0,61 |
Ausstattung
Fliesen, Parkett, Personenaufzug, Bad mit Fenster, Badewanne, Dusche
Internet und TV
Information zur Internet und TV Versorgung hier
Ihre persönliche Beratung
Andrea PÖCHHACKER; MSc
EHL Immobilien GmbH
a.poechhacker@ehl.at
+4315127690 DW 411
+43664 83 73 481
