Generalsanierte Jahrhundertwendevilla - Ideal für eine Kombination Wohnen & Arbeiten
Haus
- Mehrfamilienhaus,
4600
Wels
,
Alois-Auer-Straße 10
Lage der Immobilie
Diese Liegenschaft befindet sich in ausgezeichneter und sehr begehrter Lage im Villenviertel von Wels. Von hier sind sowohl das Stadtzentrum mit der gesamten Infrastruktur der Stadt Wels als auch der Bahnhof in wenigen Minuten fußläufig erreichbar.Beschreibung der Immobilie
Diese Villa stammt vermutlich aus dem Jahr 1896 und begeistert durch ihre wunderschöne Renaissance-Fassade, auf deren Erhaltung auch bei der Generalsanierung 2018 großer Wert gelegt wurde.
Durch die Aufteilung des Gebäudes in 3 getrennte Wohneinheiten stehen den neuen Eigentümern mehrere Optionen offen:
- Wohnen: hier finden große Familien z.B. auch generationenübergreifend ausreichend Platz
- Wohnen & Arbeiten: die beiden Wohnungen im Erdgeschoss eignen sich auch hervorragend für die Nutzung als Büro
- Wohnen & Vermieten: bei weniger Eigenbedarf wäre auch das eine gute Möglichkeit
Erweiterungspotenzial vorhanden: Da das Grundstück aus 2 Parzellen besteht, wurden in der Vergangenheit bereits Überlegungen angestellt, auch das zweite Grundstück zu bebauen. Studien dazu liegen vor.
Raumaufteilung:
Top 1 EG: Küche, 3 Zimmer, Bad mit Wanne und Dusche, WC, Vorraum, Garten
Top 2 EG: Küche, 2 Zimmer, Bad mit Wanne / WC, Garten
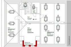
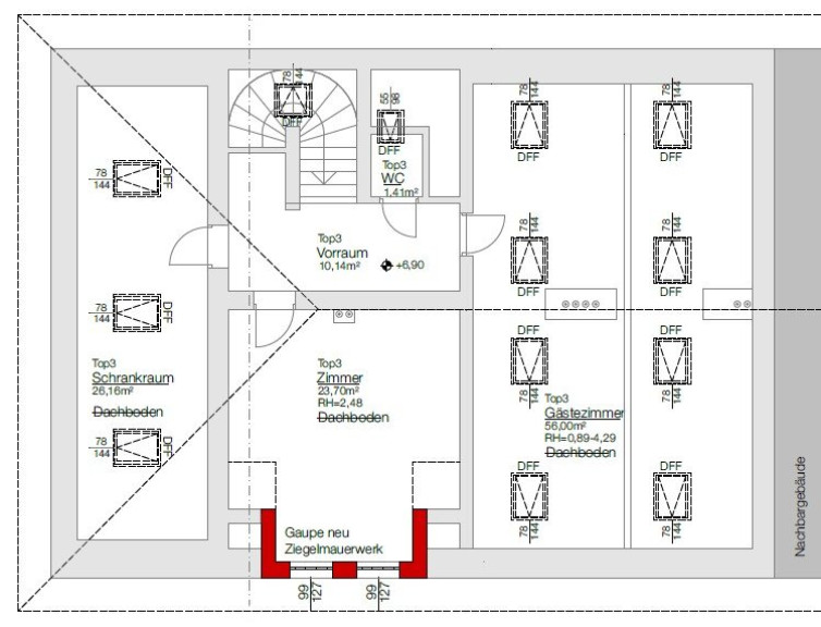
Top 3 OG: Küche, 4 Zimmer, Bad mit Wanne und Dusche, WC, Vorraum, Terrasse im Halbstock, Garten
DG: 3 Zimmer, WC, Vorraum
Speziell die Wohnung in den beiden oberen Geschossen bietet höchsten Wohnkomfort und lässt kaum Wünsche offen. Die Großzügigkeit der Räume, die Verarbeitung hochwertiger Materialien sowie die beiden Kaminöfen sorgen für ein ausgesprochen angenehmes Raumklima.
Ein besonderes Highlight wartet im Dachgeschoss: Fast die Hälfte der Fläche wurde mit Sichtdachstuhl ausgebaut! Ein unglaublich schöner und heller Raum, der im Eingangsbereich über eine Glasplatte betreten wird, die den Blick auf die Deckenziegel ermöglicht. Ein Detail, das so wie die wiederverwendeten alten Eisentüren davon zeugt, dass bei der Sanierung mit viel Geschick und Bedacht vorgegangen wurde.
Der Garten zu Top 3 liegt zur Gänze hinter dem Haus und hinter den Garagen, ist also von der Straße nicht einsehbar. Ein Paradies für Kinder und für Erwachsene, die hier viel Platz zum Spielen und Entspannen haben.
Der Vermittler ist als Doppelmakler tätig.
Eckdaten
| Kaufpreis: | 1.700.000,00 € |
| Fläche: | 364,00 m² |
| Zimmer: | 12 |
Basisdaten zur Immobilie
| Objektnr: | 160897 |
| Art: | Haus - Mehrfamilienhaus |
| Land: | Österreich |
| Baujahr: | 1896 |
| Kaufpreis: | 1.700.000,00 € |
| Provision: | 3% des Kaufpreises zzgl. 20% USt. |
| Wohnfläche: | 364,00 m² |
| Nutzfläche: | 520,00 m² |
| Grundstücksfl.: | 1.117,00 m² |
| Zimmer: | 12 |
| Bäder: | 3 |
| WC: | 4 |
| Terrassen: | 1 |
| Stellplätze: | 3 |
| Garten: | 579,00 m² |
| Heizwärmebedarf: | E 185,00 kWh/m²a |
| fGEE: | E 2,92 |
Internet und TV
Information zur Internet und TV Versorgung hier
Ihre persönliche Beratung
Maria Wimmer
Wimmer Realitäten GmbH
maria.wimmer@wimmer-real.at
+43 7242 219 003
+43 664 844 2002
F +43 7242 219 003-33
