Ansprechende, geräumige Praxis-/Büroräumlichkeiten Nähe Krankenhaus
Büro / Praxis
- Praxis,
4600
Wels
,
Grieskirchner Straße 15
Lage der Immobilie
Zentrale Lage in der Welser Neustadt in unmittelbarer Nähe zum Klinikum Wels-Grieskirchen. Hervorragende Infrastruktur: Zahlreiche Nahversorger, Dienstleister, Kinderbetreuung, Schulen, Ärzte und eine Apotheke befinden sich im näheren Umkreis. Den Welser Hauptbahnhof erreicht man zu Fuß in rund 7 Minuten und das Stadtzentrum in ca. 15 Minuten.Beschreibung der Immobilie
Diese Praxis-/Bürofläche befindet sich in sehr guter Lage in der Grieskirchnerstraße - nur 450 m vom Klinikum Wels entfernt.
Zuletzt wurden die Räumlichkeiten von einem Hautarzt genutzt und würden sich aufgrund der Raumaufteilung und der vorhandenen Ausstattung - Behandlungszeilen mit Waschbecken in allen Räumen, pflegeleichte Böden, Empfang mit Schrankelementen, klimatisierter Warteraum usw. - wieder ideal als Praxis eignen.
Selbstverständlich ist aber auch die Nutzung als Büro problemlos möglich.
Die Praxis liegt im 1. Obergeschoss und ist mit einem Personenaufzug erreichbar, allerdings nicht ganz barrierefrei, da dieser Lift im Halbstock startet.
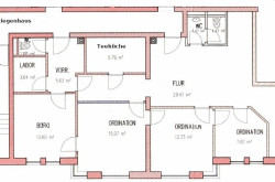
Raumaufteilung: 4 Ordinations-/Büroräume, Wartebereich, Labor, Teeküche, 2 WCs, Empfang und Flur
Es gibt 2 Eingänge, es wäre daher auch möglich, die Fläche intern in 2 Bereiche zu teilen.
Wir weisen darauf hin, dass zwischen dem Vermittler und dem zu vermittelnden Dritten ein familiäres oder wirtschaftliches Naheverhältnis besteht.
Der Vermittler ist als Doppelmakler tätig.
Eckdaten
| Kaltmiete (netto): | 1.350,00 € |
| Fläche: | 110,35 m² |
| Zimmer: | 5 |
Basisdaten zur Immobilie
| Objektnr: | 160919 |
| Art: | Büro / Praxis - Praxis |
| Land: | Österreich |
| Baujahr: | 1995 |
| Möbliert: | Teil |
| Kaltmiete (netto): | 1.350,00 € |
| Kaltmiete: | 1.677,70 € |
| Provision: | 3 Bruttomonatsmieten zzgl. 20% USt. |
| Betriebskosten: | 327,70 € |
| Heizkosten: | 92,72 € |
| MwSt Gesamt: | 84,08 € |
| Nutzfläche: | 110,35 m² |
| Zimmer: | 5 |
| WC: | 2 |
| Heizwärmebedarf: | C 54,00 kWh/m²a |
| fGEE: | C 1,49 |
Ausstattung
Personenaufzug
Internet und TV
Information zur Internet und TV Versorgung hier
Ihre persönliche Beratung
Bettina Gruber
Wimmer Realitäten GmbH
bettina.gruber@wimmer-real.at
+43 7242 219003 12
+43 664 1051455
