Schnäppchen! Altes Haus, 5 Zi, teilweise renoviert, Fenster & Türen erneuert, Dach neu eingedeckt, Carport
Haus
- Einfamilienhaus,
7344
Stoob
,
Ponhut
Lage der Immobilie
ruhige Lage in Stoob, Nähe OberpullendorfBeschreibung der Immobilie
Das ist die Gelegenheit für schmale Brieftaschen!!
Häuserzeile mit insgesamt 3 Häuser
Baujahr ist unbekannt - Wände 50 cm !!!!
bestehend aus:
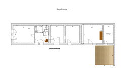
Erdgeschoss
Wohn-Esszimmer mit Küchenzeile
Badezimmer mit WC
2 weitere Räume
Diese könnte man mit dem nächsten Haus verbinden und dadurch einen weiteren Raum mit Dachbodenstiege gewinnen.
Dachgeschoss:
über eine schmale Wendeltreppe gelangt man ins Obergeschoss
wo sich zwei weitere Räume befinden über dem mittleren Haus
beidseitig davon gibt es noch den unverbauten Dachstuhl
Abschluss mit Holzlager
Carport
Teilweise renoviert - Fenster & Türen erneuert - mit Rollos ausgestattet - Ziegel-Dach neu eingedeckt
Holzheizung
elektrisches Tor
Die feuchte Mauer befindet sich direkt am Übergang zum nächsten angebauten Haus. Hier könnte man einen Durchgang machen und somit die Wohnfläche des Haupthauses vergrößern.
Keller:
10,80 m²
nur das straßenseitig gelegen Haus ist unterkellert
E-Befund ist vorhanden!! Energieausweis in Ausarbeitung!
Dies ist wirklich eine besondere Gelegenheit, in einer ruhigen Gegend mit ein bisschen Geschick ein Eigenheim so zu gestalten, dass sich die ganze Familie wohlfühlen kann.
Gerne zeige ich Ihnen diese Liegenschaft persönlich ab dem 27.4.2026
Mitten im Herzen des Burgenlandes liegt die Marktgemeinde Stoob.
Als Töpfergemeinde kann Stoob auf eine lange Tradition zurückblicken. Eine Zunfttruhe beurkundet Stoob als Mittelpunkt des Töpfer- und Hafnergewerbes.
Heute sind die Stoober Keramikbetriebe, Hafner (Ofensetzer) und Fliesenleger ebenso wie die österreichweit einzige Landesfachschule für Keramik und Ofenbau weit über die Grenzen des Burgenlandes und Österreichs hinaus bekannt.
Zahlreiche Rad- und Wanderwege erfreuen sich in der idyllischen Umgebung von Stoob großer Beliebtheit. Diverse Sportstätten sorgen für Ihre Fitness. Hohe Gastfreundlichkeit und kulinarische Gaumenfreuden laden zum Verweilen ein.
In 3 Autominuten ist man in der Bezirkshauptstadt Oberpullendorf:
Als Bezirkshauptstadt ist Oberpullendorf nicht nur das Verwaltungszentrum des Bezirkes, sondern bietet außerdem:
* ein modernes Krankenhaus * mehr als 30 niedergelassene Ärzte aller Fachrichtungen
* zahlreiche Schulen (Gymnasium, HAK, HASCH, NMS etc.) und Ausbildungsstätten
* vielseitige Gastronomie
* Sportstätten
* Tolle Einkaufsmöglichkeiten diverser Branchen
Gerne zeige ich Ihnen diese Liegenschaft persönlich ab dem 27.4.2026 Aufgrund unserer Nachweispflicht können nur Anfragen mit Namen, Adresse, Tel. Nr berücksichtigt werden.
Liebe Grüße
Susanne Geldner /Geldner Immobilien
Der Vermittler ist als Doppelmakler tätig.
Infrastruktur / Entfernungen
Gesundheit
Arzt <3.250m
Apotheke <3.250m
Krankenhaus <3.250m
Kinder & Schulen
Schule <500m
Kindergarten <6.000m
Nahversorgung
Supermarkt <1.500m
Bäckerei <4.250m
Einkaufszentrum <1.750m
Sonstige
Bank <3.500m
Geldautomat <3.500m
Post <750m
Polizei <3.500m
Verkehr
Bus <250m
Bahnhof <1.000m
Autobahnanschluss <2.250m
Angaben Entfernung Luftlinie / Quelle: OpenStreetMap
Eckdaten
| Kaufpreis: | 110.000,00 € |
| Fläche: | 122,00 m² |
| Zimmer: | 5 |
Basisdaten zur Immobilie
| Objektnr: | 5414/180 |
| Art: | Haus - Einfamilienhaus |
| Land: | Österreich |
| Alter: | Altbau |
| Kaufpreis: | 110.000,00 € |
| Provision: | 3% des Kaufpreises zzgl. 20% USt. |
| Wohnfläche: | 122,00 m² |
| Nutzfläche: | 12,00 m² |
| Grundstücksfl.: | 317,00 m² |
| Zimmer: | 5 |
| Bäder: | 1 |
| WC: | 1 |
Internet und TV
Information zur Internet und TV Versorgung hier
Ihre persönliche Beratung
Susanne Geldner
Geldner Susanne
office@geldner.at
+43 664 542 84 38
