Neubau, Exklusive 3 Zimmer Wohnung+ Küche , Kinskygasse 3 im 23. Bezirk
Wohnung
,
1230
Wien,Liesing
Beschreibung der Immobilie
1. Pärchenhit im 23. Bezirk, BEZIEHBAR: SOFORT Mai 2026
Zur Vermietung gelangt diese sehr gut geplante 3-Zimmer Wohnung, Neubau im 23. Bezirk.
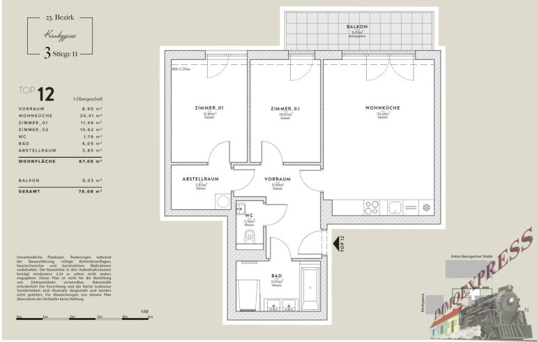
Die Wohnung überzeugt neben der perfekten Lage durch eine sehr stilvolle Ausstattung, einem tollen Grundriss und einer Wohnfläche von 67,05 m² und einem Balkon mit 8,03 m² + Komplettküche Nolte inkl. Markengeräte.
Sie überzeugt durch eine sehr gute Raumaufteilung (Zentral begehbar), zwei Schlafzimmern, Abstellraum, Badezimmer mit Dusche und extra Badewanne + Doppelwaschbecken, das WC + Waschbecken ist separat, eine neuen Nolte Küche inkl. allen brauchbaren Geräten sowie eine großzügige Wohnküche mit Zugang auf den Balkon.
2. LAGE
Die Wohnung befindet sich im 23. Bezirk in der Kinskygasse 3.
Geschäfte des täglichen Gebrauchs sind zu Fuß oder durch die sehr gute Verkehrsanbindung sehr schnell zu erreichen.
Diverse Freizeitmöglichkeiten befinden sich in unmittelbarer Nähe. Der Steinsee in Alt-Erlaa oder der nahgelegene Inzersdorfer Schubertpark bieten sich zur Entspannung an.
Nur 20 Minuten öffentlich bei Karlplatz!
Die Anbindung an die öffentlichen Verkehrsmittel ist durch die Nähe zur Triesterstraße (5 Gehminuten entfernt) sehr gut gegeben.
Auch mit dem Auto haben Sie eine sehr gute Anbindung, da die Südostanggente, Laxenburger Straße sowie der Bahnhof Wien Blumental (S60, R) in nur 10 Fahrminuten erreicht sind.
Bus:
66A, 67B, N66, 67A, 65A, 16A
Straßenbahn:
WLB
Bahnhof Blumental:
S60, R
3. Architektur und Ausstattung
Eine ansprechend moderne Architektur mit Balkonen, Terrassen oder Gärten sprechen klar für das Wohnen und Leben in dem hier angebotenen Neubauprojekt.
Überlegte, lichtdurchflutete Grundrisse, gehobene Ausstattung sowie Barrierefreiheit sorgen für ein angenehmes Wohnraumsgefühl.
Die Wohnung verfügt über eine Fußbodenheizung, besteht aus hochwertigen Materialen, liebevoller Detailarbeit und einem exklusiven Designkonzept.
4. Raumaufteilung
Nutzfläche: 67,05 m² Wohnfläche + 8,03 m² Balkone + 3,26 m² Kellerabteil
- Vorraum
- 2x Schlafzimmer
- Wohnbereich mit Zugang zum hofseitigen Balkon
- Offene Komplettküche Nolte inkl. Markengeräte
- Wohlfühl-Badezimmer mit Badewanne + Extra-Dusche , Doppelwaschbecken
- WC + Waschbecken
- Abstellraum
5. Highlights
- Hochwertiger Parkett (Weitzer) inkl. Leisten in allen Wohn- und Schlafräumen
- Großformatige Fliesen in den Sanitärbereichen 30*60
- Kunststoff-Alu-Fenster 3-fach-Verglasung
- Energieeffiziente Fenster mit elektrischer Beschattung
- Hochwertige Waschbecken Duravit Vero, Armaturen Grohe , bodenbündige Duschen, Einbauwanne
- Fußbodenheizung (zusätzlicher Sprossen-Heizkörper in den Badezimmern)
- Sicherheit und Brandschutz Wohnungseingangstür WK3
- Vollholzinnentüren
- Flachstahlgeländer feuerverzinkt und beschichtet
- Betonplatten auf den Balkon
- Personenaufzug
6. Energieeffizientes Wohnen
HBW: 30,31 kWh/m²a (Klasse B)
Kosten:
EUR 1.490,- inkl. BK und gesetzl. MwSt. ohne HK
Kaution: 3 BMM
BEZIEHBAR: SOFORT
KONTAKT/ Ihr Ansprechpartner:
Herr Ehsan Karimian Tel.: 0676 46 46 646 || e.karimian@immo.express || Deutsch, English, Farsi
IMMO EXPRESS KG
Es wird darauf hingewiesen, dass zwischen Abgeber und Immobilienmakler ein wirtschaftliches Naheverhältnis besteht.
Gerne unterstützen wir Sie auch bei der Finanzierung bei diesem oder einem anderen Objekt. Sprechen Sie uns darauf an, wir beraten Sie gerne.
Wir weisen darauf hin, dass wir, mit Ausnahme von Wohnungssuchenden für Mietwohnungen, als DoppelmaklerIn tätig sind. Nähere Informationen zum DoppelmaklerIn auf Anfrage gerne.
Eckdaten
| Gesamtmiete: | 1.490,00 € |
| Fläche: | 67,05 m² |
| Zimmer: | 3 |
Basisdaten zur Immobilie
| Objektnr: | O2100144620 |
| Art: | Wohnung |
| Land: | Österreich |
| Baujahr: | 2020 |
| Zustand: | Erstbezug |
| Alter: | Neubau |
| Gesamtmiete: | 1.490,00 € |
| Kaltmiete: | 1.490,00 € |
| Provision: | provisionsfrei |
| Wohnfläche: | 67,05 m² |
| Gesamtfläche: | 67,05 m² |
| Zimmer: | 3 |
| Bäder: | 1 |
| WC: | 1 |
| Balkone: | 1 |
| Keller: | 3,26 m² |
| Heizwärmebedarf: | B 30,31 kWh/m²a |
Ausstattung
Parkett, Zentralheizung, Einbauküche, Personenaufzug, Badewanne, Dusche, Kabel/Satelliten-TV
Internet und TV
Information zur Internet und TV Versorgung hier
Ihre persönliche Beratung
Ehsan Karimian
Immoexpress KG
e.karimian@immo.express
+43 676 46 46 646
F +43 (1) 688 02 74
