Lage der Immobilie
Die Liegenschaft befindet sich in ausgezeichneter Lage des 3. Wiener Gemeindebezirks, nur wenige Gehminuten vom Stadtzentrum entfernt. Die Umgebung rund um die Marxergasse zeichnet sich durch eine ideale Mischung aus urbanem Leben, hervorragender Infrastruktur und angenehmer Ruhe aus. Die öffentliche Verkehrsanbindung ist hervorragend: U-Bahn: U3 Rochusgasse sowie U4 Stadtpark in kurzer Distanz Schnellbahn: Wien Mitte / Landstraße (U3, U4, CAT, S-Bahn) Straßenbahn und Buslinien fußläufig erreichbar Dadurch ist sowohl die Wiener Innenstadt als auch der Flughafen Wien schnell und bequem erreichbar. In unmittelbarer Umgebung finden sich zahlreiche Nahversorger, Restaurants, Cafés sowie Dienstleistungsangebote. Die Nähe zum Stadtpark sowie zum Donaukanal bietet zusätzliche Freizeit- und Erholungsmöglichkeiten und unterstreicht die hohe Standortqualität. Die Lage vereint somit beste Erreichbarkeit mit urbaner Lebensqualität und stellt einen idealen Standort für repräsentative Büro- oder Praxisnutzung dar.Beschreibung der Immobilie
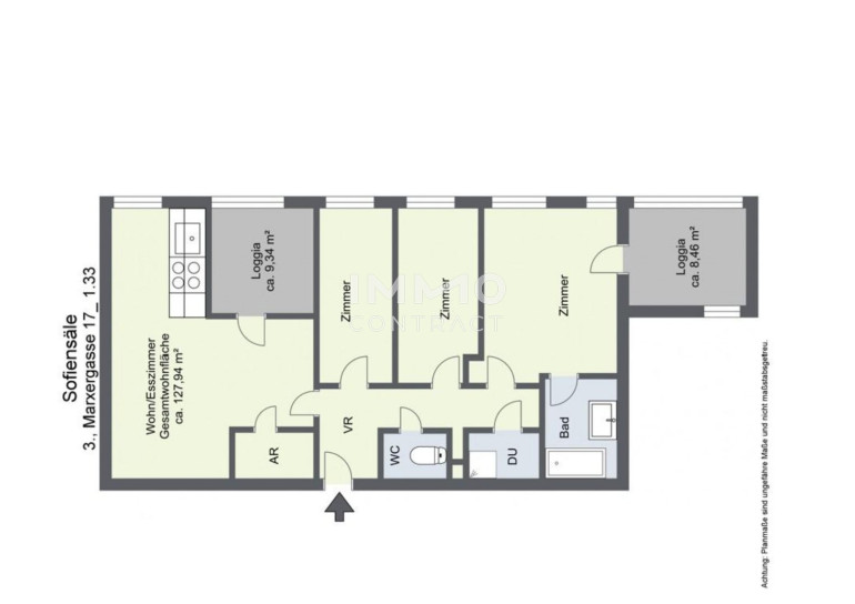
In einem der architektonisch spannendsten Gebäude Wiens – den revitalisierten Sofiensälen – gelangt eine außergewöhnliche Büro- bzw. Praxisfläche im Dachgeschoss zur Vermietung.
Die Einheit verfügt über eine großzügige Nutzfläche von ca. 148 m² sowie eine ca. 18 m² große Loggia und überzeugt durch ihre offene, moderne Struktur. Aktuell präsentiert sich die Fläche als weitläufiges Open-Space-Konzept. Eine individuelle Raumaufteilung kann bei Bedarf auf eigene Kosten an die jeweiligen Anforderungen auf eigene Kosten angepasst werden – ideal für Praxisgemeinschaften, Agenturen oder moderne Bürokonzepte.
Große Fensterflächen sorgen für eine hervorragende natürliche Belichtung und schaffen eine helle, angenehme Arbeitsatmosphäre. Trotz der zentralen Lage bietet die Einheit eine bemerkenswerte Ruhe.
Ausstattung & Highlights:
- ca. 148 m² Nutzfläche
- ca. 18 m² Loggia im Dachgeschoss
- Offene Raumgestaltung – flexibel adaptierbar
- Einbauküche vorhanden
- Badezimmer sowie separates WC
- Helle, freundliche Arbeitsräume
- Ruhige Lage im Innenbereich des Gebäudes
- Repräsentatives, modernes Umfeld
Das Gebäude der ehemaligen Sofiensäle vereint historischen Charme mit zeitgemäßer Architektur und wird heute von modernen Büros, Dienstleistungsunternehmen sowie einem attraktiven Fitnesscenter und Gastronomiebetrieben genutzt. Diese Kombination schafft ein lebendiges und zugleich professionelles Arbeitsumfeld.
Für Fragen zur Liegenschaft sowie zur Vereinbarung eines Besichtigungstermins stehe ich Ihnen jederzeit gerne zur Verfügung.
Infrastruktur / Entfernungen
Gesundheit
Arzt <500m
Apotheke <500m
Klinik <1.000m
Krankenhaus <500m
Kinder & Schulen
Schule <500m
Kindergarten <500m
Universität <1.000m
Höhere Schule <1.000m
Nahversorgung
Supermarkt <500m
Bäckerei <500m
Einkaufszentrum <500m
Sonstige
Geldautomat <500m
Bank <500m
Post <500m
Polizei <500m
Verkehr
Bus <500m
U-Bahn <500m
Straßenbahn <500m
Bahnhof <500m
Autobahnanschluss <2.000m
Angaben Entfernung Luftlinie / Quelle: OpenStreetMap
Eckdaten
| Kaltmiete (netto): | 2.100,94 € |
| Fläche: | 146,00 m² |
Basisdaten zur Immobilie
| Objektnr: | 1939/132147 |
| Art: | Büro / Praxis |
| Land: | Österreich |
| Kaltmiete (netto): | 2.100,94 € |
| Kaltmiete: | 2.492,76 € |
| Miete / m²: | 17,34 € |
| Provision: | 3 Bruttomonatsmieten zzgl. 20% USt. |
| Betriebskosten: | 391,82 € |
| MwSt Gesamt: | 249,27 € |
| Wohnfläche: | 146,00 m² |
| Heizwärmebedarf: | B 38,80 kWh/m²a |
| fGEE: | C 1,02 |
Internet und TV
Information zur Internet und TV Versorgung hier
Ihre persönliche Beratung
Heidi Danninger
IMMOcontract Immobilien Vermittlung GmbH
H.Danninger@IMMOcontract.at
+43 664 9639404
+43 664 9639404
