Urbanes Wohnen an der Alten Donau – Ihr neues Zuhause in Wien!
Wohnung
,
1220
Wien
,
Wagramer Straße
Beschreibung der Immobilie
Wohnen nahe der Alten Donau!
In unmittelbarer Nähe zum Donauzentrum, dem größten Einkaufszentrum Wiens, und der idyllischen Alten Donau, einem der beliebtesten Erholungsgebiete der Stadt, steht ein moderner Neubau mit insgesamt 53 Wohnungen. In den Verkauf gelangen 11 Wohnungen mit Wohnungsgrößen zwischen 47 und 93m². Jede Wohnung verfügt über eine Freifläche, welche dazu einlädt laue Sommerabende darauf zu verbringen.
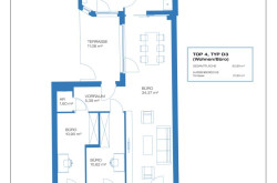
Top 4 befindet sich im Erdgeschoss, ist rein hofseitig orientiert und eignet sich perfekt als Büro in Kombination mit Wohnen. Es handelt sich um ein schlüsselfertiges Top inkl. Küchenanschlüsse.
Das Objekt
- 11 Wohnungen verfügbar (2-4-Zimmer)
- Wohnungsgrößen zwischen 47 und 93 m²
- PKW-Stellplätze in der Tiefgarage
- Geräumiger Fahrradabstellraum im Keller
- Energieausweis:
- HWB: 19,80 kWh/m²a; Klasse A
- fGEE: 0,74, Klasse A
Die Ausstattung
- Fernwärme, Steuerung mittels witterungsgeführter Vorlauftemperaturregelung
- Fußbodenheizung
- Vorbereitung zur nachträglichen Installation von Klimaanlagen im 1. und 2. DG
- 2-Schicht-Fertigparkett, 1-Stab-Dielen in Eichenholz Natur lackiert
- Hochwertige, einfarbige Wand- und Bodenfliesen in den Nassräumen (Format 60x30)
- Marken Sanitär-Keramik und Marken Armaturen
- Hochwertige Marken-Kunststofffenster
- Einbruchshemmende Vollbautüre mit Stahl- oder Holzumfassungszarge (RC2)
- Teilweise inklusive Einbauküche
Die Lage:
Der Gemeindebezirk Donaustadt ist weit über die Grenzen der österreichischen Bundeshauptstadt hinaus für sein modernes Zentrum bekannt. Berühmte Gebäude wie die UNO-City oder das höchste Gebäude Österreichs, der DC-Tower, befinden sich in der Donaustadt und verleihen dem Standort einen internationalen und modernen Charakter.
- U-Bahn: U1 Kagraner Platz
- Straßenbahn: 26
- Autobus: 22A, 27A, 93A, 94A
Fertigstellung: Bereits fertiggestellt!
3% Kundenprovision
Wir weisen darauf hin, dass zwischen dem Vermittler und dem zu vermittelnden Dritten ein familiäres oder wirtschaftliches Naheverhältnis besteht.
Der Vermittler ist als Doppelmakler tätig.
Infrastruktur / Entfernungen
Gesundheit
Arzt <250m
Apotheke <500m
Klinik <2.250m
Krankenhaus <3.500m
Kinder & Schulen
Schule <250m
Kindergarten <250m
Universität <1.250m
Höhere Schule <500m
Nahversorgung
Supermarkt <250m
Bäckerei <250m
Einkaufszentrum <500m
Sonstige
Geldautomat <250m
Bank <250m
Post <750m
Polizei <500m
Verkehr
Bus <250m
U-Bahn <250m
Straßenbahn <500m
Bahnhof <500m
Autobahnanschluss <1.750m
Angaben Entfernung Luftlinie / Quelle: OpenStreetMap
Eckdaten
| Kaufpreis: | 580.713,00 € |
| Fläche: | 92,89 m² |
| Zimmer: | 4 |
Basisdaten zur Immobilie
| Objektnr: | 51217 |
| Art: | Wohnung |
| Land: | Österreich |
| Baujahr: | 2022 |
| Zustand: | Erstbezug |
| Alter: | Neubau |
| Kaufpreis: | 580.713,00 € |
| Provision: | 3% des Kaufpreises zzgl. 20% USt. |
| Wohnfläche: | 92,89 m² |
| Zimmer: | 4 |
| Bäder: | 1 |
| WC: | 1 |
| Terrassen: | 1 |
| Heizwärmebedarf: | A 19,80 kWh/m²a |
| fGEE: | A 0,74 |
Ausstattung
Fliesen, Parkett, Fußbodenheizung, Personenaufzug, Badewanne, Dusche, Kabel/Satelliten-TV
Internet und TV
Information zur Internet und TV Versorgung hier
Ihre persönliche Beratung
DI Birgita EHRENBERGER
EHL Immobilien GmbH
b.ehrenberger@ehl.at
+43-1-512 76 90-422
+43 664 88160139
