Wohnraum selbst gestalten, so individuell wie Sie – Einzigartige Wohnung im Wildgarten
Wohnung
,
1120
Wien,Meidling
,
Lore-Kutschera-Weg
Beschreibung der Immobilie
Wohntraum nach Maß - eine außergewöhnliche Wohnung, die Ihnen maximale Freiheit bei der Gestaltung und höchste Wohnqualität bietet.
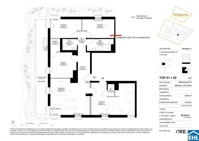
Die ca. 124m² große Erdgeschosswohnung im beliebten Wildgarten befindet sich im Rohbau-Zustand und eröffnet Ihnen die Möglichkeit, Wände, Böden sowie Türen ganz nach Ihren persönlichen Vorstellungen auszubauen. So schaffen Sie sich ein Zuhause, das exakt Ihrem Stil und Ihren Bedürfnissen entspricht. Die Wohnung eignet sich ideal für Individualisten, Familien oder all jene, die ihren Wohntraum selbst verwirklichen möchten.
Technisch ist bereits bestens vorgesorgt: Eine Fußbodenheizung ist fixfertig eingebaut, zudem ist der Anschluss für eine Klimaanlage bereits vorbereitet. Damit sind die wichtigsten Grundlagen für modernen Wohnkomfort schon geschaffen. Außerdem ist ein Badezimmer mit WC und Walk-in Dusche sowie eine separate Toilette bereits ausgebaut.
Die Wohnung verfügt über bis zu sechs helle Zimmer mit außergewöhnlicher Raumhöhe und überzeugt durch einen flächigen Grundriss der von drei Seiten natürlich belichtet wird. In außenliegender Sonnenschutz, bodentiefe Fenster teils französiche Fenster, sowie die Nordwestterrasse laden dazu ein, entspannte Stunden im Freien zu genießen – ob beim morgendlichen Kaffee oder zum Ausklang des Tages.
Auch die Lage lässt keine Wünsche offen: Dank sehr guter öffentlicher Verkehrsanbindung (Bus) erreichen Sie rasch die Innenstadt und andere zentrale Punkte Wiens. In unmittelbarer Umgebung befinden sich Apotheken, Krankenhaus, Schulen, Kindergärten, Supermärkte und Bäckereien – alles, was Sie für den täglichen Bedarf benötigen, ist bequem fußläufig erreichbar.
Lage und Infrastruktur
Vom und zum Wildgarten fährt man mit dem Bus (63A, zukünftig auch 63B) der eigens für den Wildgarten eine neue Haltestelle bekommen wird. Der Bus bringt Sie zum Bahnhof Hetzendorf oder Bahnhof Atzgersdorf mit den Schnellverbindungen der S-Bahn. Mit dem Fahrrad benötigen Sie ca. 20 Minuten in den Wienerwald bzw. Lainzer Tiergarten, oder Sie sind zu Fuß in ca. 15 Minuten im Hietzinger Bad. Den Flughafen erreicht man mit dem Auto in ca. 25 Minuten. Das Zentrum Wiens ist in ca. 30 Minuten erreicht und doch sind Grünflächen und Freizeitangebote in unmittelbarer Umgebung. Das bietet die Lage des WILDGARTENs.
Angebote des täglichen Bedarfs und der sozialen Infrastruktur – wie etwa Nahversorgung, zwei Kindergärten und Gastronomie – werden direkt am Areal geschaffen.
Nutzen Sie die Chance, Ihre Wohnträume von Grund auf zu realisieren.
Fotos: ©Lukas Schaller | © EHL Wohnen GmbH
Provisionsfrei für den Käufer!
Wir weisen darauf hin, dass zwischen dem Vermittler und dem zu vermittelnden Dritten ein familiäres oder wirtschaftliches Naheverhältnis besteht.
Der Vermittler ist als Doppelmakler tätig.
Infrastruktur / Entfernungen
Gesundheit
Arzt <1.250m
Apotheke <1.000m
Klinik <1.500m
Krankenhaus <1.000m
Kinder & Schulen
Schule <750m
Kindergarten <250m
Universität <3.750m
Höhere Schule <3.750m
Nahversorgung
Supermarkt <500m
Bäckerei <500m
Einkaufszentrum <1.750m
Sonstige
Geldautomat <1.250m
Bank <1.500m
Post <1.500m
Polizei <1.750m
Verkehr
Bus <250m
U-Bahn <1.750m
Straßenbahn <1.500m
Bahnhof <1.500m
Autobahnanschluss <1.750m
Angaben Entfernung Luftlinie / Quelle: OpenStreetMap
Eckdaten
| Kaufpreis: | 459.000,00 € |
| Fläche: | 123,62 m² |
| Zimmer: | 6 |
Basisdaten zur Immobilie
| Objektnr: | 68448 |
| Art: | Wohnung |
| Land: | Österreich |
| Baujahr: | 2023 |
| Zustand: | Erstbezug |
| Alter: | Neubau |
| Kaufpreis: | 459.000,00 € |
| Provision: | Provision bezahlt der Abgeber. |
| Betriebskosten: | 385,70 € |
| MwSt Gesamt: | 38,57 € |
| Wohnfläche: | 123,62 m² |
| Zimmer: | 6 |
| Bäder: | 1 |
| WC: | 2 |
| Terrassen: | 1 |
| Heizwärmebedarf: | B 23,72 kWh/m²a |
| fGEE: | A+ 0,66 |
Ausstattung
Parkett, Fliesen, Fußbodenheizung, Personenaufzug, Dusche
Internet und TV
Information zur Internet und TV Versorgung hier
Ihre persönliche Beratung
Mag. (FH) Ingrid Neugebauer
EHL Immobilien GmbH
i.neugebauer@ehl.at
+43-1-512 76 90-418
+43 699 15212532
