7350 Oberpullendorf - Geschäftslokal und Büroflächen im Stadtzentrum von Oberpullendorf
Halle / Lager / Produktion
,
7350
Oberpullendorf
Beschreibung der Immobilie
Die Lage und die damit verbundene Erreichbarkeit der Immobilie in unmittelbarer Nähe des Zentrums der Bezirkshauptstadt ist wirklich großartig!
Hierdurch werden selbstverständlich zielgerichtete Kunden, als auch Laufkundschaften angesprochen!
Zur Vermietung gelangen ca. 190 m² Nutzfläche, welche sich auf die Geschäftsfläche im Erdgeschoss, die Büroflächen im Obergeschoss und die Lagerfläche im Kellergeschoß wie folgt aufteilen:
Erdgeschoss
44,28 m² Empfang
1,88 m² Windfang
2,40 m² WC
13,36 m² Büro
15,63 m² Stiegenhaus
77,55 m² + 1,5 m² Podest Kellerabgang = 79,05 m²
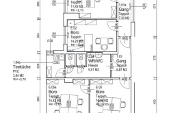
Obergeschoss
11,83 m² Büro 1
14,20 m² Büro 2
7,50 m² Gang
5,97 m² Gang
15,42 m² Büro 3
16,38 m² Büro 4
9,51 m² Nassraum/WC
3,84 m² Teeküche
84,65 m²
Kellergeschoss
Heiz- und Lagerraum
Lagerraum
ca. 27 m²
Die Miete beträgt € 1.500,- plus € 380,31 Betriebskosten (netto).
Der Eigentümer ist bereit ein entsprechendes Budget für die Umgestaltung bzw. Instandsetzung zu investieren!
Im Keller ist eine Gasheizung etabliert.
Infrastruktur / Entfernungen
Gesundheit
Arzt <500m
Krankenhaus <1.000m
Apotheke <500m
Kinder & Schulen
Schule <1.000m
Kindergarten <8.000m
Nahversorgung
Supermarkt <500m
Bäckerei <1.000m
Einkaufszentrum <1.000m
Sonstige
Geldautomat <500m
Bank <500m
Post <500m
Polizei <500m
Verkehr
Bus <500m
Bahnhof <500m
Autobahnanschluss <3.500m
Angaben Entfernung Luftlinie / Quelle: OpenStreetMap
Eckdaten
| Kaltmiete (netto): | 1.500,00 € |
| Fläche: | 189,78 m² |
| Zimmer: | 6 |
Basisdaten zur Immobilie
| Objektnr: | 960/68788 |
| Art: | Halle / Lager / Produktion |
| Land: | Österreich |
| Kaltmiete (netto): | 1.500,00 € |
| Kaltmiete: | 1.880,31 € |
| Provision: | Gemäß Erstauftraggeberprinzip bezahlt der Abgeber die Provision. |
| Betriebskosten: | 380,31 € |
| Nutzfläche: | 189,78 m² |
| Zimmer: | 6 |
| Keller: | 27,00 m² |
| Heizwärmebedarf: | G 282,70 kWh/m²a |
| fGEE: | F 3,61 |
Ausstattung
Gas, Zentralheizung
Internet und TV
Information zur Internet und TV Versorgung hier
Ihre persönliche Beratung
Marco Antonio Stipsits
s REAL Immobilienvermittlung GmbH
marco.stipsits@sreal.at
+43 (0)5 0100 - 26331
+43 664 8183713
