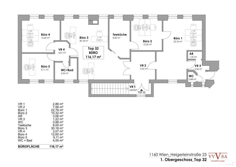
325 m² Büro/Ordination + 123 m² Parkmöglichkeit im Innenhof, Nähe Wilhelminenstraße
Büro / Praxis
,
1160
Wien,Ottakring
,
Heigerleinstraße 23
Beschreibung der Immobilie
Die Immobilie befindet sich in unmittelbarer Nähe zur Ottakringer Straße und Wilhelminenstraße. Zahlreiche Nahversorger wie Billa, Bipa, Apotheken und Banken sind innerhalb weniger Minuten erreichbar.
Parken:
Direkt im hauseigenen Hof stehen Ihnen Parkmöglichkeiten auf einer Fläche von 123 m² zur Verfügung.
Kosten:
EUR 4.990,- inkl. BK und gesetzl. MwSt. ohne HK
Kaution: 3 BMM
Provision: 3 BMM zzgl. 20% USt.
Befristung: Nach persönlicher Absprache
Ihr Ansprechpartner:
Herr Ehsan Karimian Tel.: 0676 46 46 646 || e.karimian@immo.express || Deutsch, English, Farsi
IMMO EXPRESS KG
Es wird darauf hingewiesen, dass zwischen Abgeber und Immobilienmakler ein wirtschaftliches Naheverhältnis besteht.
Gerne unterstützen wir Sie auch bei der Finanzierung bei diesem oder einem anderen Objekt. Sprechen Sie uns darauf an, wir beraten Sie gerne.
Wir weisen darauf hin, dass wir, mit Ausnahme von Wohnungssuchenden für Mietwohnungen, als DoppelmaklerIn tätig sind. Nähere Informationen zum DoppelmaklerIn auf Anfrage gerne.
Eckdaten
| Gesamtmiete: | 4.990,00 € |
| Fläche: | 325,16 m² |
| Zimmer: | 10 |
Basisdaten zur Immobilie
| Objektnr: | O2100118941 |
| Art: | Büro / Praxis |
| Land: | Österreich |
| Gesamtmiete: | 4.990,00 € |
| Kaltmiete: | 4.990,00 € |
| Provision: | 3 BMM zzgl. 20% MwSt. |
| Gesamtfläche: | 325,16 m² |
| Bürofläche: | 325,16 m² |
| Zimmer: | 10 |
| Bäder: | 1 |
| WC: | 2 |
| Stellplätze: | 1 |
| Heizwärmebedarf: | D 130,60 kWh/m²a |
| fGEE: | D 1,85 |
Ausstattung
Einbauküche, Badewanne, Dusche, Kabel/Satelliten-TV, Parkplatz
Internet und TV
Information zur Internet und TV Versorgung hier
Ihre persönliche Beratung
Ehsan Karimian
Immoexpress KG
e.karimian@immo.express
+43 676 46 46 646
F +43 (1) 688 02 74
