Lage der Immobilie
Nähe LandstraßeBeschreibung der Immobilie
Willkommen in dieser einzigartigen Loft-Wohnung in der Nähe des Musiktheaters!
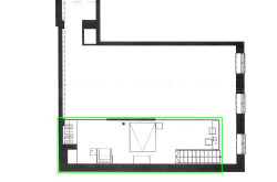
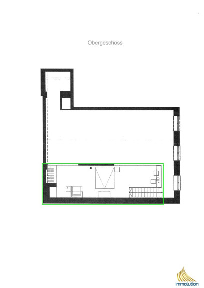
Diese geräumige Wohnung bietet nicht nur eine unschlagbare Lage, sondern auch ein unvergleichliches Wohngefühl. Mit einer großzügigen Fläche von 104m2 können Sie hier den urbanen Lebensstil in vollen Zügen genießen. Die Wohnung verfügt über eine kleine Terrasse am eigenen Eingang und einen praktischen Tiefgaragenstellplatz, der Ihnen das Leben in der Stadt noch komfortabler macht.
Das herausragende Merkmal dieser Loft-Wohnung sind die beeindruckenden 4,5 Meter hohen Räume, die Ihnen ein luxuriöses Wohngefühl vermitteln. Eine Galerie direkt unter der Decke sorgt für zusätzlichen Charme und vielfältige Gestaltungsmöglichkeiten.
Der großzügige Wohnbereich ist mit einer hochwertigen Küche ausgestattet. Ein gemütliches Schlafzimmer, ein stilvolles Badezimmer und ein separates WC bieten ausreichend Privatsphäre und Komfort.
Was diese Immobilie noch attraktiver macht, ist die Tatsache, dass das gesamte Mobiliar im Kaufpreis bereits enthalten ist. Sie müssen nur noch Ihre Koffer packen und können sofort einziehen, ohne sich um die Einrichtung kümmern zu müssen.
Diese einzigartige Loft-Wohnung ist eine Gelegenheit, die Sie nicht verpassen sollten. Kontaktieren Sie uns noch heute, um eine Besichtigung zu vereinbaren und sich selbst von diesem exklusiven Angebot zu überzeugen!
Sie wollen dieses Objekt erwerben und benötigen eine Finanzierung?
Alleingänge beim Ansuchen um Kredit können teuer werden - gerade in der jetzigen Phase. Wir garantieren Ihnen - aufgrund von Erfahrung und
Verhandlungsgeschick - günstigere Konditionen, als wenn Sie selbst mit der Bank verhandeln.
Testen Sie gleich jetzt unseren Kreditrechner, um sich einen ersten Überblick zu verschaffen.
Sie wollen Ihr Eigenheim verkaufen?
Sie haben bereits eine Wohnung oder ein Haus in Ihrem Eigentum und möchten
diese(s) aufgrund eines Umzugs verkaufen? Kein Problem, wir finden den richtigen
Käufer für Ihre Immobile. Berechnen Sie jetzt kostenlos den Wert Ihres Eigenheims in
nur wenigen Schritten.
Infrastruktur / Entfernungen
Gesundheit
Arzt <500m
Apotheke <500m
Klinik <1.000m
Krankenhaus <500m
Kinder & Schulen
Schule <500m
Kindergarten <500m
Universität <1.000m
Höhere Schule <500m
Nahversorgung
Supermarkt <500m
Bäckerei <500m
Einkaufszentrum <500m
Sonstige
Bank <500m
Geldautomat <500m
Post <500m
Polizei <500m
Verkehr
Bus <500m
Straßenbahn <500m
Bahnhof <1.000m
Autobahnanschluss <2.000m
Flughafen <3.000m
Angaben Entfernung Luftlinie / Quelle: OpenStreetMap
Eckdaten
| Kaufpreis: | 480.000,00 € |
| Fläche: | 104,00 m² |
| Zimmer: | 2 |
Basisdaten zur Immobilie
| Objektnr: | 827 |
| Art: | Wohnung - Loft-Studio-Atelier |
| Land: | Österreich |
| Baujahr: | 2010 |
| Zustand: | Neuwertig |
| Möbliert: | Voll |
| Alter: | Neubau |
| Kaufpreis: | 480.000,00 € |
| Provision: | 3% des Kaufpreises zzgl. 20% USt. |
| Betriebskosten: | 334,00 € |
| Wohnfläche: | 104,00 m² |
| Zimmer: | 2 |
| Bäder: | 1 |
| WC: | 1 |
| Terrassen: | 1 |
| Keller: | 6,00 m² |
Ausstattung
Parkett, Fliesen, Fußbodenheizung, Wohnküche / offene Küche, Personenaufzug, Tiefgarage
Internet und TV
Information zur Internet und TV Versorgung hier
Ihre persönliche Beratung
Wolfgang Lichtenberger
Immolution GmbH
wol@immolution.at
0676/88680886
