Tolle Doppelhaushälfte in Ebenfurth
Haus
- Doppelhaushälfte,
2490
Ebenfurth
Beschreibung der Immobilie
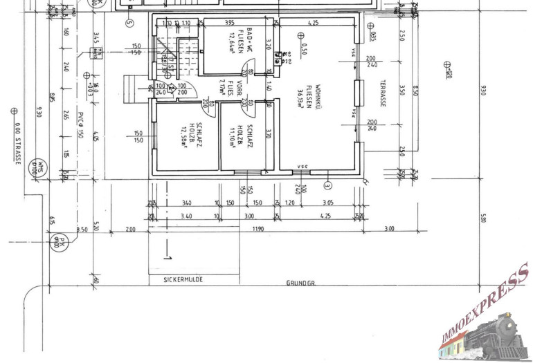
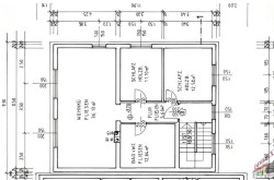
Im Erdgeschoß und 1.Stock gibt es jeweils ein Badezimmer mit WC.
Das Gebäude verfügt über ein Erdgeschoß mit ca. 88m² und ein Stockwerk mit ca. 86m².
Der Garten hat ca. 200m² Fläche.
Umgebung: Nahversorger und öffentliche Einrichtungen (KiGa, Schule, Post, Arzt, Apotheke) in wenigen Minuten erreichbar.
KAUFPREIS € 570.000,--
Nebenkosten:
3,5% Grunderwerbsteuer
3% + 20% Ust. Maklerkosten
1,1% Eintrag im Grundbuch
ca. 1- 2% + 20% Ust. Vertragserrichtungsgebühr beim Vertragserrichter Ihrer Wahl.
Bemessungsgrundlage ist der Kaufpreis.
Für weitere Fragen oder eine Besichtigung stehe ich Ihnen gerne zur Verfügung.
Hr. Hans Peter Kebhart
+ 43 6504909592
hp.kebhart@immo.express
Gerne unterstützen wir Sie auch bei der Finanzierung bei diesem oder einem anderen Objekt. Sprechen Sie uns darauf an, wir beraten Sie gerne.
Wir weisen darauf hin, dass wir, mit Ausnahme von Wohnungssuchenden für Mietwohnungen, als DoppelmaklerIn tätig sind. Nähere Informationen zum DoppelmaklerIn auf Anfrage gerne.
Eckdaten
| Kaufpreis: | 570.000,00 € |
| Fläche: | 176,00 m² |
| Zimmer: | 6 |
Basisdaten zur Immobilie
| Objektnr: | O2100162742 |
| Art: | Haus - Doppelhaushälfte |
| Land: | Österreich |
| Kaufpreis: | 570.000,00 € |
| Provision: | 3 % zzgl. 20% MwSt. vom Gesamtkaufpreis |
| Wohnfläche: | 176,00 m² |
| Gesamtfläche: | 400,00 m² |
| Zimmer: | 6 |
| Garten: | 200,00 m² |
| Heizwärmebedarf: | C 100,00 kWh/m²a |
| fGEE: | C 1,50 |
Ausstattung
Kabel/Satelliten-TV
Internet und TV
Information zur Internet und TV Versorgung hier
Ihre persönliche Beratung
Hans-Peter Kebhart
Immoexpress KG
hp.kebhart@immo.express
+43 650 49 09 592
F +43 (1) 688 02 74
