Traumhaft - Altbauflair - 5 Zimmer 166m² Wohnung mit kleiner Loggia in Steyr - nahe Zentrum

Wohnung - Etage, 4400 Steyr

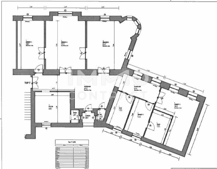
Beschreibung der Immobilie

Traumhaft - Altbauflair - 5 Zimmer - 166m² Wohnung mit Loggia in Steyr * großzügige 165,9 m² Wohnung im 2. Stock mit toller Aussicht im Altbau (ohne Lift) * diese Wohnung mit großen hellen Räumen und Doppeltüren hat einen besonderen Reiz * Stadtzentrum / Bahnhof in wenigen Gehminuten erreichbar * Entree / Vorraum mit Zugang zu einer kleinen Loggia * Küche ohne Möblierung + kleinen Abstellraum * Wohnzimmer mit Kaminofen * 3 große Schlafzimmer * Kabinett mit Schrankraum * WC * Bad mit Wanne und Dusche * Zentralheizung/Gas / Warmwasser-Elektroboiler * allgemeiner Außenbereich Kaution: € 4.500,-- BMM: € 1.498,73 (inkl. BK) Heizung und Strom extra

Eckdaten

Objektnr: 127843
Art: Wohnung - Etage
Land: Österreich
Zustand: Gepflegt
Gesamtmiete: 1.498,73
Kaltmiete (netto): 1.078,35 €
Kaltmiete: 1.186,19 €
Provision: Gemäß Erstauftraggeberprinzip bezahlt der Abgeber die Provision.
Betriebskosten: 222,33 €
Wohnfläche: 165,90 m²
Zimmer: 5
Bäder: 1
WC: 1
Heizwärmebedarf:  E  152,00 kWh/m²a
fGEE: 2,46
Immobilie merken Exposé

Ausstattung

Gas, Zentralheizung, Badewanne, Dusche


Internet und TV

Information zur Internet und TV Versorgung hier


Immobilie anfragen


Ihre persönliche Beratung

IMMOcontract Immobilien Vermittlung GmbH

Hermine Brunner

IMMOcontract Immobilien Vermittlung GmbH

E H.Brunner@IMMOcontract.at

T 00436648191814

H 00436648191814