Einzigartiges Penthouse mit Dachterrasse, Pool und phantastischem Wienblick
Wohnung
- Penthouse,
1190
Wien
Lage der Immobilie
Wunderschöne begehrte Aussichtslage in SalmannsdorfBeschreibung der Immobilie
LAGE
Dieses luxuriöse Penthouse befindet sich in einem eleganten, neu errichteten Haus mit nur wenigen Apartments in außergewöhnlich schöner Aussichtslage direkt am Waldesrand. Es erstreckt sich über zwei Etagen, verfügt über einen sensationellen Dachgarten mit Pool und ist südwestseitig ausgerichtet.
Das Ensemble besticht durch seine besondere Architektur sowie die hochwertige Ausstattung. Eine weitere Besonderheit stellt der große Garten zur gemeinschaftlichen Nutzung mit Holz-Salettl und Swimmingpool dar, sowie das top ausgestattete Inhouse-Gym. Die großzügige Garage mit überbreiten Stellplätzen mit E-Anschlüssen rundet dieses Immobilienangebot ab.
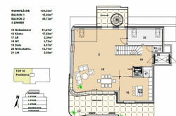
RAUMAUFTEILUNG
Die beiden Wohnebenen dieses einzigartigen Penthouses können komfortabel entweder über den direkten Lift oder über das elegante Stiegenhaus erreicht werden und sind außerdem mit einem weiteren internen Privatlift barrierefrei verbunden.
Das Wohngeschoss besteht aus einem weitläufigen Wohn-Essbereich mit offener Küche und vorgelagerter, großzügiger Süd-Terrasse mit traumhaftem Blick über Wien, einer Diele mit Gäste-Toilette und Wirtschaftsraum. Auf der gartenseitigen N/W-Terrasse befindet sich auch der Aufgang zum Dachgarten.
In der darunter liegenden Ebene, die ebenfalls einen separaten Eingang mit direktem Liftausstieg hat, befinden sich eine weitere elegante Diele, das Master-Schlafzimmer mit Bad und Toilette en-suite, großes Ankleidezimmer mit Tageslicht und einer Süd-Terrasse mit Fernblick, sowie drei weitere Schlafzimmer, jeweils mit eigenem Bad, zwei davon mit gartenseitiger Terrasse.
Ein besonderes Highlight ist der uneinsehbare begrünte Dachgarten mit Infinitypool und sensationellem Ausblick über die Stadt und den Wienerwald.
AUSSTATTUNG
Die hochwertige Ausstattung umfasst:
- Dachgarten mit Infinity-Pool
- Energiesparende Raumheizung, Klimatisierung und Warmwasseraufbereitung
- Hochwertige Holz-Alu Fenster mit 3-fach Verglasung
- Raffstore Sonnenschutz für Fenster und Fenstertüren
- Jedes Schlafzimmer verfügt über ein luxuriös ausgestattetes Badezimmer
- Große, gepflegte Gartenanlage mit Pool, Außendusche und Holz-Salettl zur gemeinsamen Nutzung
- Fitnessraum mit modernsten Fitnessgeräten von Technogym
- Raumhöhen mit bis zu 2,80 m
- Smart Living System für Temperaturregelung, Sonnenschutz, Gegensprechanlage und Alarm
- Intelligente Liftanlage mit RFID-Chip für Aufzugsruf und Steuerung
- Terrassen und Balkone mit Glasbrüstungen und Alu-Holzverkleidung
- Landhausdielen und edles, großformatiges Feinsteinzeug, sowie Armaturen von Dornbracht und Hansgrohe
- Große Tiefgarage mit E-Ladestationen
INFRASTRUKTUR
Die hervorragende Lage am Stadtrand direkt beim Wienerwald und den Weinbergen bietet eine erstklassige Lebensqualität und zahlreiche Sport- und Freizeitmöglichkeiten. Im Nahbereich befinden sich Heurigenlokale, Restaurants, Einkaufsmöglichkeiten für den täglichen Bedarf, schulische Einrichtungen (insbesondere die AIS American International School) und öffentliche Verkehrsmittel (Autobuslinie 35A, 43A). Das Stadtzentrum, der Flughafen sowie die Westautobahn sind gut erreichbar.
INFORMATION
Bei Interesse können 3 (Nr. 20, 21, 15) Stellplätze in der Tiefgarage um je € 40.000,-- erworben werden. Die Garagen-Betriebskosten belaufen sich derzeit pro Monat und Stellplatz auf € 6,68 + 20% USt.
Die monatlichen Heizkosten betragen derzeit € 179,01 + 20% USt,
Provision: 3% + 20% USt.
Oben angeführte Angaben basieren auf Informationen und Unterlagen des Eigentümers/der Eigentümerin und sind unsererseits ohne Gewähr.
Hinweis: Im Rahmen unserer Offenlegungspflichten weisen wir darauf hin, dass unsere Fotos mittels KI-Technologien optisch verschönert und bearbeitet werden, sowie leere Räume mittels KI-Technologien virtuell möbliert und dekoriert werden. Betreffende Visualisierungen tragen als Bildunterschrift Bezeichnungen wie "KI-generierter Einrichtungsvorschlag"
Wir weisen darauf hin, dass zwischen dem Vermittler und dem zu vermittelnden Dritten ein familiäres oder wirtschaftliches Naheverhältnis besteht.
Der Vermittler ist als Doppelmakler tätig.
Infrastruktur / Entfernungen
Gesundheit
Arzt <2.000m
Apotheke <1.500m
Klinik <3.500m
Krankenhaus <3.500m
Kinder & Schulen
Schule <500m
Kindergarten <1.500m
Universität <4.000m
Höhere Schule <4.000m
Nahversorgung
Supermarkt <1.500m
Bäckerei <2.000m
Einkaufszentrum <4.500m
Sonstige
Geldautomat <3.000m
Bank <3.000m
Post <1.500m
Polizei <3.500m
Verkehr
Bus <500m
U-Bahn <4.500m
Straßenbahn <2.500m
Bahnhof <4.000m
Autobahnanschluss <6.000m
Angaben Entfernung Luftlinie / Quelle: OpenStreetMap
Eckdaten
| Kaufpreis: | 4.480.000,00 € |
| Fläche: | 263,00 m² |
| Zimmer: | 5 |
Basisdaten zur Immobilie
| Objektnr: | 2718 |
| Art: | Wohnung - Penthouse |
| Land: | Österreich |
| Baujahr: | 2021 |
| Zustand: | Erstbezug |
| Alter: | Neubau |
| Kaufpreis: | 4.480.000,00 € |
| Provision: | 3% des Kaufpreises zzgl. 20% USt. |
| Betriebskosten: | 768,14 € |
| MwSt Gesamt: | 122,33 € |
| Wohnfläche: | 263,00 m² |
| Nutzfläche: | 479,00 m² |
| Zimmer: | 5 |
| Bäder: | 4 |
| WC: | 5 |
| Terrassen: | 6 |
| Keller: | 9,00 m² |
| Heizwärmebedarf: | B 31,30 kWh/m²a |
| fGEE: | A 0,75 |
Ausstattung
Steinboden, Parkett, Erdwärme, Fußbodenheizung, Wohnküche / offene Küche, Personenaufzug, Südbalkon, Bad mit Fenster, Badewanne, Dusche, Kabel/Satelliten-TV, Tiefgarage, Alarmanlage, Swimmingpool
Internet und TV
Information zur Internet und TV Versorgung hier
Ihre persönliche Beratung
Eva Marschall
Marschall Immobilien GmbH
e.marschall@marschall.at
+43 664 10 10 618
+43 664 10 10 618
