Geförderte Genossenschaftswohnung! Miete mit Kaufrecht! Top 2/5!
Wohnung
- Etage,
2852
Hochneukirchen
Beschreibung der Immobilie
Die Marktgemeinde Hochneukirchen-Gschaidt liegt in der buckligen Welt, umgeben von der malerischen Hügellandschaft des Wechselgebietes.
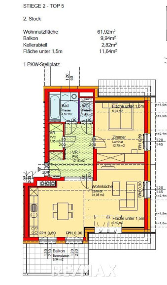
Die Stiege 2 umfasst 5 Einheiten.
Ein Kinderspielplatz und ein Fahrrad- und Kinderwagenraum gehören zur Anlage.
Provisionsfrei für den Mieter!
Miete mit Kaufoption!
Mit Bezahlung des Finanzierungsbeitrages erwerben Sie das Optionsrecht zum Kauf der gemieteten Wohnung!
Wohnung 2/5:
> Stiege 2
> 2. Stock
> Balkon
> Monatl. Kosten inkl. 1 Stellplatz und BK, exkl. Energiekosten: € 653,14
> PKW-Autoabstellplatz
> Kellerabateil
> Niedrigenergiebauweise
> Finanzierungsbeitrag: € 15.209,41
> Nachträgliche Eigentumsübertragung möglich!
In der Nähe:
> Stadtgrenze von Wien - ca. 55 Minuten
> Schule, Kindergarten, Nahversorger, Ärzte, etc.
> Schi- und Wandergebiet Wechsel
> Naturerholungsgebiet vor der Haustüre
Die Wohnhausanlage wird vom Land Niederösterreich gefördert!
Die Mieter müssen hier ihren Hauptwohnsitz begründen und den Förderkriterien entsprechen!
Die Angaben zum Objekt basieren auf uns zur Verfügung gestellten Informationen.
Eine Haftung unsererseits ist hierfür ausgeschlossen. Detailfragen werden im Zuge von Besichtigungen besprochen, geklärt oder nachgereicht.
Wir bitten um Verständnis, dass wir aufgrund der Nachweispflicht gegenüber dem Eigentümer, nur Anfragen mit vollständigen Kontaktdaten (Name, Anschrift, Tel.-Nr., E-Mail) beantworten können.
Der Immobilienmakler erklärt, dass er - entgegen dem in der Immobilienwirtschaft üblichen Geschäftsgebrauch des Doppelmaklers - einseitig nur für den Vermieter tätig ist.
Dieses Angebot ist unverbindlich und einer Zwischenverwertung vorbehalten.
| Angaben gemäß gesetzlichem Erfordernis: | |||
| Miete | € | 593,64 | zzgl 10% USt. |
| Umsatzsteuer | € | 59,36 | |
| ------------------------------------------------------------------ | |||
| Gesamtbetrag | € | 653 | |
| ------------------------------------------------------------------ | |||
| Heizwärmebedarf: | 27.74 kWh/(m²a) | ||
| Klasse Heizwärmebedarf: | A | ||
Eckdaten
| Objektnr: | 3827_284 |
| Art: | Wohnung - Etage |
| Land: | Österreich |
| Baujahr: | ca. 2011 |
| Zustand: | Erstbezug |
| Gesamtmiete: | 653,00 € |
| Kaltmiete (netto): | 593,64 € |
| Kaltmiete: | 653,00 € |
| Wohnfläche: | 61,92 m² |
| Zimmer: | 2 |
| Bäder: | 1 |
| WC: | 1 |
| Balkone: | 1 |
| Stellplätze: | 1 |
| Heizwärmebedarf: | A 27,70 kWh/m²a |
Ausstattung
Parkplatz
Internet und TV
Information zur Internet und TV Versorgung hier
Ihre persönliche Beratung
Michael Wukovits
RE/MAX Harmony
E michael.wukovits@remax-harmony.at
T +43 2635 66 461
H +43 664 4016302