Top Geschäftslokal in der Mariahilfer Straße

Einzelhandel - Ladenlokal, 1150 Wien

Beschreibung der Immobilie

Top Geschäftslokal in der Mariahilfer Straße!
In der belebten Mariahilfer Straße in Wien steht eine hochwertig sanierte Geschäftsfläche zur Vermietung. Das Ecklokal bietet eine ideale Fläche von etwa 220 Quadratmetern und ist bestens für Einzelhandelsgeschäfte oder Büros geeignet. Im Jahr 2016 renoviert, bietet das Geschäft eine hochwertige Ausstattung mit Massivholzböden und großen Schaufenstern zur Straße hin. Derzeit verfügt das Geschäftslokal über zwei Bürobereiche, zwei Besprechungsräume, ein separates Manager-Büro, drei separate Telefonräume, Gästetoiletten sowie eine voll ausgestattete Küche, und jedes Zimmer ist klimatisiert. Die Räumlichkeiten sind in einem guten Zustand und können den Bedürfnissen des zukünftigen Mieters entsprechend umgestaltet werden.

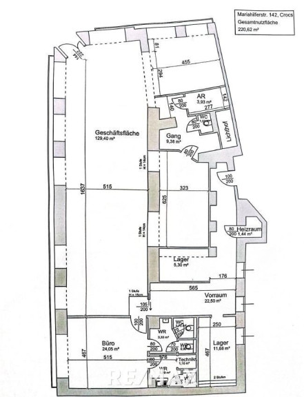
Der Grundriss wurde schon etwas angepasst (ein zusätzliches Besprechungszimmer und ein Büro eingebaut, der Toilettenzugang geändert) und entspricht somit nicht vollständig den aktuellen Stand.

Die Lage:
Das Geschäft befindet sich an der stark frequentierten Mariahilfer Straße in Wien und bietet eine hervorragende geografische Lage sowie eine ausgezeichnete Verkehrsanbindung. Das Lokal liegt in unmittelbarer Nähe des Westbahnhofs Wien, dem Verkehrsknotenpunkt der Stadt, wo sich die U-Bahn-Linien U3 und U6 kreuzen. Eine Straßenbahnhaltestelle der Linien 52 und 60 befindet sich direkt vor der Tür. In der Nähe gibt es auch große Einkaufszentren wie IKEA, Intersport und Bahnhof City Wien West sowie viele andere Geschäfte, Restaurants und Cafés.

Bitte beachten Sie, dass keine Gastronomie möglich ist.

Wir weisen darauf hin, dass wir als Doppelmakler tätig sind und der Makler aufgrund früherer Vermittlungen ein wirtschaftliches Naheverhältnis zum Auftraggeber hat.

Finanzierung:
Gerne unterstützen wir Sie auch bei der Finanzierung! Unsere Makler können eine unverbindliche Erstüberprüfung Ihres Finanzierungsbedarfs für dieses Objekt durchführen. Sprechen Sie Ihren Makler oder Ihre Maklerin aktiv an, wenn Sie noch keine Finanzierungszusage haben!

Nutzen Sie diese großartige Gelegenheit und beginnen Sie sofort Ihr Geschäft in diesem Gebiet!Angaben gemäß gesetzlichem Erfordernis: Miete €7000 zzgl 20% USt.Betriebskosten €329,21 zzgl 20% USt.Reparaturfonds €326,09 Umsatzsteuer €1465,84------------------------------------------------------------------Gesamtbetrag €9121,14

Eckdaten

Objektnr: 3801_742
Art: Einzelhandel - Ladenlokal
Land: Österreich
Baujahr: ca. 1906
Zustand: Gepflegt
Gesamtmiete: 9.121,14
Kaltmiete (netto): 7.000,00 €
Kaltmiete: 7.655,30 €
Provision: 3.00 MM
Nutzfläche: 220,00 m²
Verkaufsfläche: 220,00 m²
WC: 2
Immobilie merken Exposé

Ausstattung

Gas, Zentralheizung, Teeküche


Internet und TV

Information zur Internet und TV Versorgung hier


Immobilie anfragen


Ihre persönliche Beratung

RE/MAX Together

Amber Lai

RE/MAX Together

E Amber.Lai@remax-together.at

H +43 660 1150 055