Büro zu mieten
Büro / Praxis
- Bürofläche,
1230
Wien
Beschreibung der Immobilie
Lage:
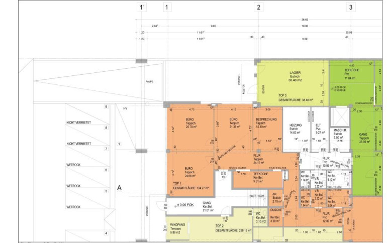
Gewerbegebiet Inzersdorf
Fläche: ca.116,87 m²
Nettomiete € 10.00/m²
Nettomiete gesamt: € 1.168,70 zzgl. 20 % MwSt.
Betriebskosten derzeit geschätzt: € 222,05 zzgl. 20 % MwSt.
Reparatur Kostenbeitrag: € 29,22
Heizung geschätzt: € 116,87 zzgl. 20 % MwSt.
Stellplatz möglich, 100 m entfernt: € 100,- netto monatlich.
Im selben Gebäude befinden sich noch weitere Flächen zu vermieten.
Kündigungsverzicht: 5 Jahre
Kaution: 6 Bruttomonatsmieten
Mieterprovision: 3 Bruttomonatsmieten zzgl. 20 % MwSt.
| Angaben gemäß gesetzlichem Erfordernis: | |||
| Miete | € | 1168,7 | zzgl 20% USt. |
| Betriebskosten | € | 222,05 | zzgl 20% USt. |
| Heizkosten | € | 116,87 | zzgl 20% USt. |
| Reparaturfonds | € | 29,22 | |
| Umsatzsteuer | € | 301,52 | |
| ------------------------------------------------------------------ | |||
| Gesamtbetrag | € | 1838,36 | |
| ------------------------------------------------------------------ | |||
| Heizwärmebedarf: | 40.94 kWh/(m²a) | ||
| Klasse Heizwärmebedarf: | B | ||
Eckdaten
| Objektnr: | 2603_13980 |
| Art: | Büro / Praxis - Bürofläche |
| Land: | Österreich |
| Gesamtmiete: | 1.838,36 € |
| Kaltmiete (netto): | 1.168,70 € |
| Kaltmiete: | 1.419,97 € |
| Provision: | 3.00 MM |
| Nutzfläche: | 116,87 m² |
| Bürofläche: | 116,87 m² |
| Heizwärmebedarf: | B 40,90 kWh/m²a |
Internet und TV
Information zur Internet und TV Versorgung hier
Ihre persönliche Beratung
Anton Putz
RE/MAX Commercial Group
E a.putz@remax-commercial.at
T 1238612