Büroflächen zu mieten - ab 380 m²
Büro / Praxis
- Bürofläche,
2331
Vösendorf
Beschreibung der Immobilie
Raumhöhe: 3m
Klimaanlage
Lift
Variante 1:
1. OG
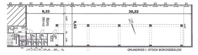
Fläche: ca. 380 m²
2 Toiletten
Küche
Variante 2:
2. OG.
Fläche: ca. 380 m²
1 Toilette
Variante 3:
1+2. OG.
Fläche: ca. 760 m²
Nettomiete: € 9,50 /m²
Betriebskosten: € 1,40 /m²
Heizkosten: € 0,60 /m²
Lagermöglichkeit im Haus (ab 165 m² bis ca. 4000 m²) - über Personenlift erreichbar!
Ausreichend Park- bzw. Garagenplätze können dazu gemietet werden!
Vermittlungshonorar: 3 Bruttomonatsmieten zzgl. 20 % MwSt.
Kaution: 3 Bruttomonatsmieten
| Angaben gemäß gesetzlichem Erfordernis: | |||
| Miete | € | 3610 | zzgl 20% USt. |
| Betriebskosten | € | 532 | zzgl 20% USt. |
| Heizkosten | € | 228 | zzgl 20% USt. |
| Umsatzsteuer | € | 874 | |
| ------------------------------------------------------------------ | |||
| Gesamtbetrag | € | 5244 | |
| ------------------------------------------------------------------ | |||
| Heizwärmebedarf: | 65.0 kWh/(m²a) | ||
Eckdaten
| Objektnr: | 2603_14040 |
| Art: | Büro / Praxis - Bürofläche |
| Land: | Österreich |
| Zustand: | Gepflegt |
| Gesamtmiete: | 5.244,00 € |
| Kaltmiete (netto): | 3.610,00 € |
| Kaltmiete: | 4.142,00 € |
| Provision: | 3.00 MM |
| Nutzfläche: | 380,00 m² |
| Bürofläche: | 380,00 m² |
| WC: | 1 |
| Heizwärmebedarf: | 65,00 kWh/m²a |
Ausstattung
Gas, Etagenheizung, Personenaufzug
Internet und TV
Information zur Internet und TV Versorgung hier
Ihre persönliche Beratung
Anton Putz
RE/MAX Commercial Group
E a.putz@remax-commercial.at
T 1238612
